Prodej rodinného domu, Praha - Čakovice, 181 m2 (ID: 2463918)

Praha, Čakovice

18 538 000 Kč /za nemovitost HYPOTÉKA od 82 854 Kč /za měsíc

(včetně DPH)

Doporučené firmy v Praze 9

Stěhovací služby

Výkup a prodej starého nábytku

Informace k domu

Prodám nízkoenergetický rodinný dům v Čakovicích o velikosti 6+1+garáž s podlahovou plochou 181 m2.

Jeho hlavní předností je půdorysné řešení do tvaru L s integrovanou garáží. Dům zaujme čistými liniemi a rovnou střechou, které podtrhují jeho současný vzhled a nadčasový charakter. Nabízí nadstandardní prostor i pro vícečlennou rodinu. Výrazným prvkem je studio nad garáží, které může sloužit jako ateliér, pracovna nebo samostatná bytová jednotka.

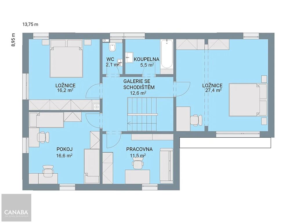
V 1.NP se nachází zádveří, ze kterého vstupujete do garáže, šatny a haly. Z haly pak do hobby místnosti, samostatné toalety, prostorného obývacího pokoje s jídelnou a do kuchyně. Po schodišti se dále dostanete do 2.NP na galerii se vstupem do prosvětlené ložnice, dvou pokojů, pracovny, koupelny a na samostatnou toaletu.

Za uvedenou cenu bude dům kompletně stavebně dokončen včetně vytápění, obkladů, sanitárního vybavení, podlahových krytin a vnitřních dveří.

V celkové ceně je zahrnuta i spodní stavba a pozemek o rozloze 821 m2 v hodnotě 12.100.000 Kč. V ceně pozemku je zahrnutý přívod inženýrských sítí na hranici pozemku (plynovod, rozvody NN, vodovod a splašková kanalizace).

Pozemek s ideální orientací je situován na velmi klidném místě s výbornou dopravní dostupností do centra Prahy. Veškerá občanská vybavenost v místě.

Doba výstavby 4 - 5 měsíců od vydání stavebního povolení.

Parametry domu

Cena
18 538 000 Kč /za nemovitost Spočítat hypotéku
Poznámka k ceně
včetně DPH
Aktualizováno
4. 12. 2025
Adresa
Praha, Čakovice
ID
01338
Stavba
Cihlová
Stav objektu
Novostavba
Druh objektu
Samostatný
Užitná plocha
181 m2
Plocha pozemku
821 m2
Třída energetické náročnosti
B - Velmi úsporná
Ukazatel energetické náročnosti
102 kWh/m2 za rok

Kontaktovat makléře

Máte zájem o tento dům?

Tímto, v souladu s nařízením Evropského parlamentu a Rady (EU) 2016/679, v platném znění, prohlašuji, že mi je alespoň 16 let a uděluji tak svůj souhlas se zpracováním zadaných údajů (jméno, telefon, e-mail, ip adresa) společnosti B3 Technology, s.r.o., IČ: 07330600, se sídlem Novostavby 126/23, 435 11 Lom (správce dat), za účelem předání dotazu z tohoto formuláře Vámi vybranému inzerentovi a zpětného kontaktování mé osoby. Osobní údaje bude správce zpracovávat manuálně i automaticky přímo prostřednictvím svých zaměstnanců. Informace předané tímto formulářem budou uloženy v databázi správce maximálně po dobu 10 let. Odvolání souhlasu s uložením a zpracováním poskytnutých dat lze e-mailem na info@bydlisnami.cz. V případě podezření na neoprávněné použití Vámi poskytnutých údajů máte právo předat podnět k šetření Úřadu pro ochranu osobních údajů. Více informací
Chystáte se prodat nemovitost?
Pomůžeme Vám!

Inzerát si prohlédlo 4 lidí

Prodejce

Mgr. Karel Křížek

Mgr. Karel Křížek

Hlídací pes

Chcete dostávat emailem podobné nabídky prodeje rodinných domů v Praze 9?

Podobné nemovitosti