Pronájem kanceláře, Praha - Chodov, Chilská, 200 m2 (ID: 2466570)

Chilská, Praha, Chodov

Cena na vyžádání /za měsíc Získejte výhodnou HYPOTÉKU
Doporučené firmy v Praze 4

Stěhovací služby

Výkup a prodej starého nábytku

Informace k nemovitosti

Reprezentativní kanceláře na metru Nový Opatov k pronájmu – energeticky efektivní, ESG ready (EPC B)
Lokalita: Chilská ulice, Praha 11 přímo u stanice metra C Opatov
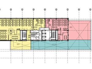
Plocha: od 200 m² - do 8.637 m².

Základní parametry budovy:
8 nadzemních podlaží (NLA 8.637 m²)
3 podzemní podlaží (parkování 193 PS)

Budova připravena na rok 2030 – bez kompromisů:
Energetický štítek EPC třída B – splňuje budoucí evropské standardy EPBD.

Nízké provozní náklady díky moderním technologiím (rekuperace, LED osvětlení).

Zelené technologie – chytré řízení spotřeby, nulové emise CO₂ během provozu.

Vysoký ESG rating – ideální pro firmy zaměřené na udržitelnost a společenskou odpovědnost.

Klíčové výhody projektu:
Přímý vstup ze stanice metra C Opatov.
Rychlý nájezd na dálnici D1 Praha/Brno.
V budoucnu plánované zavedení tramvajové dopravy v okolí.
Moderní udržitelný projekt, ekologické technologie, zelená střecha, optimalizace energetického provozu.

Vybavení a dispozice:
Moderní open-space + samostatné kanceláře, zasedací místnosti, kuchyňka, relax zóna.
Je možné pronajmout více jednotek, celé podlaží, nebo kombinaci více pater.
Klimatizace, optický internet, 24/7 přístup.
Možnost parkování i dobíjecích stanic pro elektromobily.
Kvalitní veřejný prostor jako jsou parky, relaxační zóny, vodní prvky.

Termín dokončení:
Dokončení výstavby a možnost nastěhování je plánováno na 4. čtvrtletí roku 2028.

Budoucí jistota:
Prostor je již v souladu s novými normami EPBD 2030.
Žádné riziko sankcí, omezení provozu ani nutnosti renovací.

Vhodné pro firmy, které myslí dopředu a chtějí se vyhnout rostoucím nákladům na energie a uhlíkovou daň.

Developer:
Projekt realizuje společnost REFLECTA Development a.s., český developer působící na trhu od roku 2007.

Máte zájem o více informací, zaslání půdorysů, cenové podmínky nebo sjednání schůzky?
Neváhejte nás kontaktovat, rádi Vám projekt osobně představíme a najdeme řešení na míru Vašim potřebám.

Parametry nemovitosti

Cena
Cena na vyžádání
Aktualizováno
6. 11. 2025
Adresa
Chilská, Praha, Chodov
Stavba
Skeletová
Stav objektu
Projekt
Vybaveno
Ne
Užitná plocha
200 m2
Podlahová plocha
8637 m2
Třída energetické náročnosti
A - Mimořádně úsporná
Doprava
Dálnice, Silnice, MHD, Autobus
Výtah
Bezbarierový přístup
Parkování

Kontaktovat makléře

Máte zájem o tuto nemovistost?

Tímto, v souladu s nařízením Evropského parlamentu a Rady (EU) 2016/679, v platném znění, prohlašuji, že mi je alespoň 16 let a uděluji tak svůj souhlas se zpracováním zadaných údajů (jméno, telefon, e-mail, ip adresa) společnosti B3 Technology, s.r.o., IČ: 07330600, se sídlem Novostavby 126/23, 435 11 Lom (správce dat), za účelem předání dotazu z tohoto formuláře Vámi vybranému inzerentovi a zpětného kontaktování mé osoby. Osobní údaje bude správce zpracovávat manuálně i automaticky přímo prostřednictvím svých zaměstnanců. Informace předané tímto formulářem budou uloženy v databázi správce maximálně po dobu 10 let. Odvolání souhlasu s uložením a zpracováním poskytnutých dat lze e-mailem na info@bydlisnami.cz. V případě podezření na neoprávněné použití Vámi poskytnutých údajů máte právo předat podnět k šetření Úřadu pro ochranu osobních údajů. Více informací
Chystáte se prodat nemovitost?
Pomůžeme Vám!

Inzerát si prohlédlo 1 lidí

Prodejce

Kateřina Bartoňová

Kateřina Bartoňová

Hlídací pes

Chcete dostávat emailem podobné nabídky pronájmu kanceláří v Praze 4?

Podobné nemovitosti