Pronájem bytu 1+1, Chrastava, Žitavská, 44 m2

Žitavská, Chrastava

10 300 Kč /za měsíc Získejte výhodnou HYPOTÉKU

(+ spotřeby + 1x jistina + 1x provize pro RK.)

Doporučené firmy v Chrastavě

Rekonstrukce

Úklidové služby

Informace k bytu

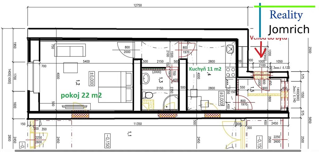
Pronájem přízemního bytu 1+1, ca 44 m2, v centru Chrastavy, Žitavská ul. č.p. 150. Jedná se o dlouhodobý pronájem nezařízeného bytu (kromě kuchyně a koupelny) se samostatným vchodem, vinylovými podlahami, plastovými okny a kvalitní izolací, který se nachází v podsklepeném přízemí bytového domu. V ceně nájmu je zahrnuto i užívání společné zahrady za domem s venkovním posezením, grilem, bazénkem a travnatou plochou: Bytový dům je po kompletní rekonstrukci, má vlastní kotelnu na plyn a je situován ca 100 m od náměstí v Chrastavě, autobusového nádraží a v blízkosti se nachází veškerá občanská vybavenost. K nastěhování bude od 1.12. 2025, po dohodě s nájemníkem možnost i dříve. Nájemné 10.300,- Kč + 4.500,- Kč (tj. zúčtovatelná záloha na vytápění, ohřev vody, vodu, elektřinu spotřebovanou v bytě, údržbu společných prostor včetně kotelny) + 1x jistina 14.800,- Kč + 1 x 10.300,- Kč provize pro RK. Foto je pouze ilustrační. PENb zatím neurčen a proto uvádím třídu „G“.

Parametry bytu

Cena
10 300 Kč /za měsíc
Poznámka k ceně
+ spotřeby + 1x jistina + 1x provize pro RK.
Aktualizováno
6. 11. 2025
Adresa
Žitavská, Chrastava
ID
00289
Stavba
Cihlová
Stav objektu
Velmi dobrý
Patro
1. z 2
Lokalita objektu
Centrum obce
Vlastnictví
Osobní
Užitná plocha
44 m2
Třída energetické náročnosti
G - Mimořádně nehospodárná
Elektřina
230V
Odpad
Veřejná kanalizace
Komunikace
Asfaltová
Doprava
Vlak, Dálnice, Silnice, MHD, Autobus
Voda
Vodovod
Topné těleso
Radiátory
Zdroj teplé vody
Plynový kotel
Výtah

Kontaktovat makléře

Realitní kancelář

Reality Jomrich

Blankytná 1143/14, Liberec

Chystáte se prodat nemovitost?
Pomůžeme Vám!

Máte zájem o tento byt?

Tímto, v souladu s nařízením Evropského parlamentu a Rady (EU) 2016/679, v platném znění, prohlašuji, že mi je alespoň 16 let a uděluji tak svůj souhlas se zpracováním zadaných údajů (jméno, telefon, e-mail, ip adresa) společnosti B3 Technology, s.r.o., IČ: 07330600, se sídlem Novostavby 126/23, 435 11 Lom (správce dat), za účelem předání dotazu z tohoto formuláře Vámi vybranému inzerentovi a zpětného kontaktování mé osoby. Osobní údaje bude správce zpracovávat manuálně i automaticky přímo prostřednictvím svých zaměstnanců. Informace předané tímto formulářem budou uloženy v databázi správce maximálně po dobu 10 let. Odvolání souhlasu s uložením a zpracováním poskytnutých dat lze e-mailem na info@bydlisnami.cz. V případě podezření na neoprávněné použití Vámi poskytnutých údajů máte právo předat podnět k šetření Úřadu pro ochranu osobních údajů. Více informací
Chystáte se prodat nemovitost?
Pomůžeme Vám!

Inzerát si prohlédlo 1 lidí

Prodejce

Roman Jomrich

Roman Jomrich

Hlídací pes

Chcete dostávat emailem podobné nabídky pronájmu bytů 1+1 v Chrastavě?

Podobné nemovitosti