Prodej rodinného domu, Brandýs nad Labem-Stará Boleslav, 97 m2

Brandýs nad Labem-Stará Boleslav

7 950 000 Kč /za nemovitost HYPOTÉKA od 35 532 Kč /za měsíc

(včetně DPH)

Doporučené firmy v Brandýse nad Labem

Informace k domu

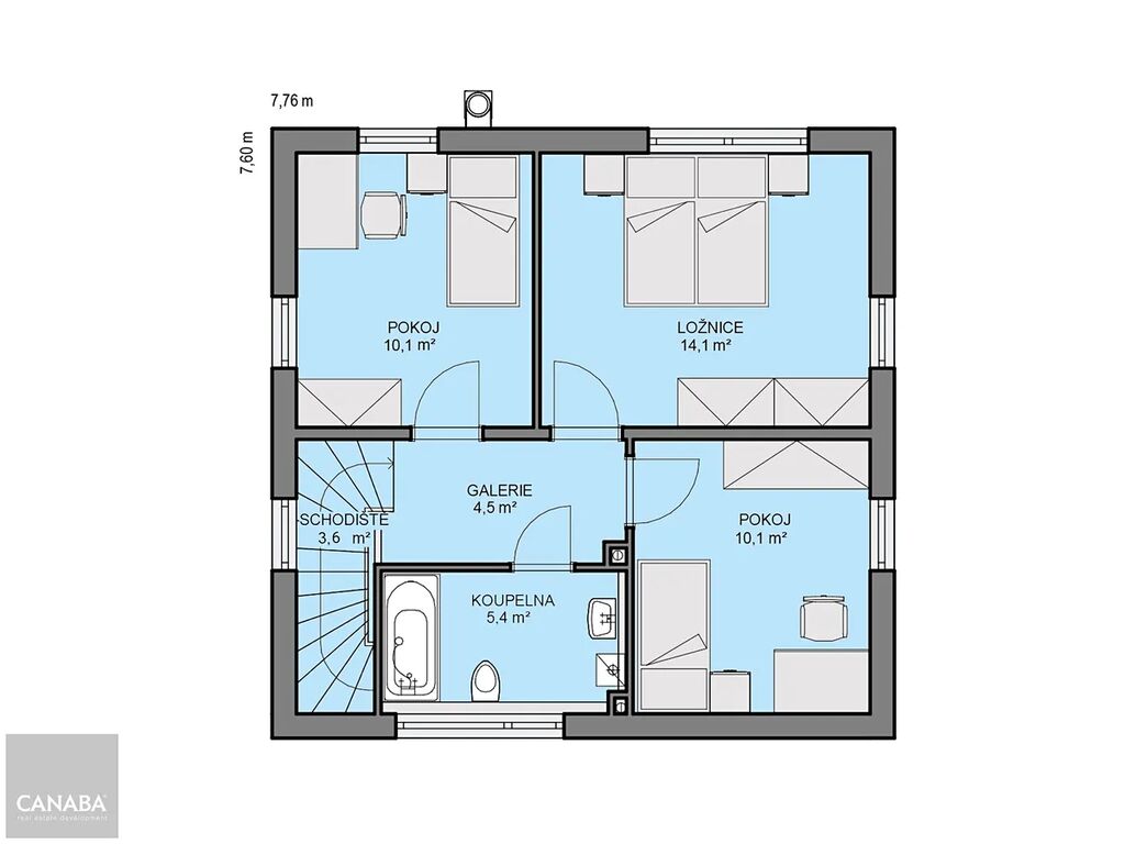
Prodám nízkoenergetický rodinný dům o dispozici 4+1 s podlahovou plochu 96,7 m².

Bohatý vnitřní prostor zahrnuje v přízemí obývací pokoj s prakticky odděleným kuchyňským koutem a v patře ložnici a 2 dětské pokoje. Součástí rodinného domu je technická místnost, samostatná toaleta a samostatná koupelna.

Dům bude za uvedenou cenu kompletně stavebně dokončen (včetně krbového komínu) a připraven k okamžitému nastěhování. Vnější i vnitřní provedení domu provedeme dle Vašeho individuálního výběru.

K patě pozemku jsou přivedeny tyto inženýrské sítě: rozvody NN, kanalizace, vodovod, plyn.

Uvedená cena je včetně pozemku, typové základové desky, přípojek a DPH. Doba výstavby 3 - 4 měsíce.

Vytápění bude řešeno plynovým kotlem.

Rovinatý slunný pozemek o výměře 444 m² se nachází v klidné části Staré Boleslavi. V okolí je nádherná příroda (Proboštské jezero, les, golfové hřiště) a nachází se zde mnoho možností volnočasového vyžití. Ve Staré Boleslavi se nachází kompletní občanská vybavenost. Nedaleký nájezd na dálnici zajišťuje rychlé spojení s Prahou.

Parametry domu

Cena
7 950 000 Kč /za nemovitost Spočítat hypotéku
Poznámka k ceně
včetně DPH
Aktualizováno
7. 11. 2025
Adresa
Brandýs nad Labem-Stará Boleslav
ID
01508
Stavba
Cihlová
Stav objektu
Projekt
Druh objektu
Samostatný
Užitná plocha
97 m2
Plocha pozemku
444 m2
Třída energetické náročnosti
B - Velmi úsporná
Ukazatel energetické náročnosti
117 kWh/m2 za rok

Kontaktovat makléře

Realitní kancelář

CANABA a.s.

Štětkova 1001/5, Praha

Chystáte se prodat nemovitost?
Pomůžeme Vám!

Máte zájem o tento dům?

Tímto, v souladu s nařízením Evropského parlamentu a Rady (EU) 2016/679, v platném znění, prohlašuji, že mi je alespoň 16 let a uděluji tak svůj souhlas se zpracováním zadaných údajů (jméno, telefon, e-mail, ip adresa) společnosti B3 Technology, s.r.o., IČ: 07330600, se sídlem Novostavby 126/23, 435 11 Lom (správce dat), za účelem předání dotazu z tohoto formuláře Vámi vybranému inzerentovi a zpětného kontaktování mé osoby. Osobní údaje bude správce zpracovávat manuálně i automaticky přímo prostřednictvím svých zaměstnanců. Informace předané tímto formulářem budou uloženy v databázi správce maximálně po dobu 10 let. Odvolání souhlasu s uložením a zpracováním poskytnutých dat lze e-mailem na info@bydlisnami.cz. V případě podezření na neoprávněné použití Vámi poskytnutých údajů máte právo předat podnět k šetření Úřadu pro ochranu osobních údajů. Více informací
Chystáte se prodat nemovitost?
Pomůžeme Vám!

Inzerát si prohlédlo 0 lidí

Prodejce

Václav Kohout

Václav Kohout

Hlídací pes

Chcete dostávat emailem podobné nabídky prodeje rodinných domů v Brandýse nad Labem?

Podobné nemovitosti