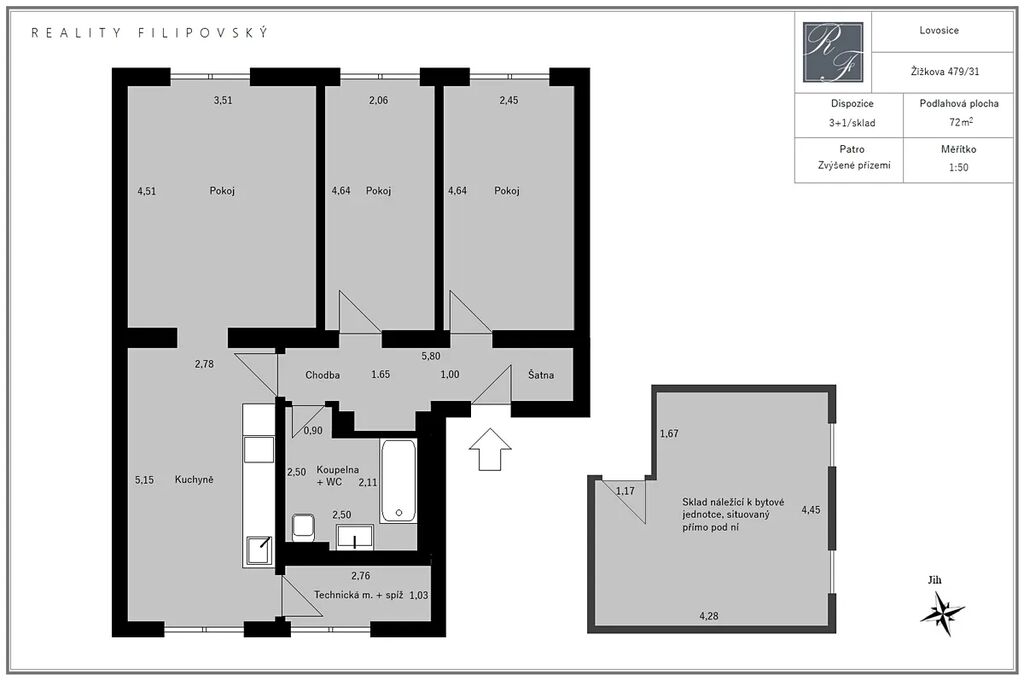
Prodej bytu 3+1, Lovosice, Žižkova, 72 m2

Žižkova, Lovosice

4 490 000 Kč /za nemovitost HYPOTÉKA od 20 068 Kč /za měsíc

(Včetně provize a právních služeb)

Doporučené firmy v Lovosicích

Okna a dveře

Rekonstrukce

Zámečnické práce

Informace k bytu

Dovoluji si Vám nabídnout výjimečný byt, který prošel kompletní nákladnou a promyšlenou rekonstrukcí. Jejím výsledkem je maximálně využitý prostor s logickým uspořádáním. To Vám bude každodenně usnadňovat život i péči o domácnost. Například spíž kombinovaná s technickou místností, ve které je umístěn bojler na ohřev vody, pračka i sušička, zaručuje svou polohou ničím nerušený odpočinek v každém z pokojů. Určitě také oceníte podlahové vytápění v celám bytě, pro jehož instalaci bylo nutné kompletně odstranit a nově vybudovat podlahy, včetně jejich podloží, které je nyní složeno z několika vrstev zaručujících vysokou míru stability a termoizolace. Samozřejmostí je pak chytrá regulace topení, individuálně v každé místnosti, k níž můžete využívat i aplikaci v mobilním telefonu. Díky tomuto systému budete mít náklady na vytápění zcela pod Vaší kontrolou. Ty jsou ostatně velmi příznivé i díky tepelné izolaci stropů o síle cca 15 cm mezi původní konstrukcí a sádrokartonovým podhledem. Elektroinstalace, voda i odpady, to vše je samozřejmě rovněž nové.
Naprosto skvělá je pak místnost o výměře 17 m2, nacházející se v suterénu domu přímo pod bytem, která náleží výhradně k této jednotce a je její neoddělitelnou součástí. Kromě ukládání objemnějších věcí je možné ji využívat např. i jako pracovnu, dílničku apod.. V této místnosti je také instalován elektrokotel, zajišťující ohřev vody pro topný systém podlahového vytápění. Do tohoto prostoru je samozřejmě přivedena elektřina přímo z bytového elektroměru. Další využitelný prostor náležící k bytu se pak nachází v půdních prostorách domu.

Veškerá občanská vybavenost se nachází v místě, v Praze jste za 35 minut, v Drážďanech za 50 min..

V rámci své činnosti se setkávám spíše ojediněle s bytovými jednotkami, které za sebou mají takto rozsáhlou a poctivě provedenou rekonstrukci. Pokud k tomu přičtu žádanou lokalitu a stabilně stoupající hodnotu nemovitostí v této oblasti, vnímám její koupi i jako využitou investiční příležitost.

Budu se těšit na setkání s Vámi.

Průkaz energetické náročnosti budovy není aktuálně k dispozici, proto je uvedena třída G.

Parametry bytu

Cena
4 490 000 Kč /za nemovitost Spočítat hypotéku
Poznámka k ceně
Včetně provize a právních služeb
Aktualizováno
9. 11. 2025
Adresa
Žižkova, Lovosice
ID
623
Stavba
Cihlová
Stav objektu
Po rekonstrukci
Patro
1.
Vlastnictví
Osobní
Užitná plocha
72 m2
Třída energetické náročnosti
G - Mimořádně nehospodárná
Elektřina
230V
Odpad
Veřejná kanalizace
Voda
Vodovod
Topné těleso
Podlahové vytápění
Zdroj topení
Elektrokotel
Zdroj teplé vody
Bojler - elektro
Sklep

Kontaktovat makléře

Máte zájem o tento byt?

Tímto, v souladu s nařízením Evropského parlamentu a Rady (EU) 2016/679, v platném znění, prohlašuji, že mi je alespoň 16 let a uděluji tak svůj souhlas se zpracováním zadaných údajů (jméno, telefon, e-mail, ip adresa) společnosti B3 Technology, s.r.o., IČ: 07330600, se sídlem Novostavby 126/23, 435 11 Lom (správce dat), za účelem předání dotazu z tohoto formuláře Vámi vybranému inzerentovi a zpětného kontaktování mé osoby. Osobní údaje bude správce zpracovávat manuálně i automaticky přímo prostřednictvím svých zaměstnanců. Informace předané tímto formulářem budou uloženy v databázi správce maximálně po dobu 10 let. Odvolání souhlasu s uložením a zpracováním poskytnutých dat lze e-mailem na info@bydlisnami.cz. V případě podezření na neoprávněné použití Vámi poskytnutých údajů máte právo předat podnět k šetření Úřadu pro ochranu osobních údajů. Více informací
Chystáte se prodat nemovitost?
Pomůžeme Vám!

Inzerát si prohlédlo 9 lidí

Prodejce

Marek Filipovský - certifikovaný obchodník s nemovitostmi

Marek Filipovský - certifikovaný obchodník s nemovitostmi

Hlídací pes

Chcete dostávat emailem podobné nabídky prodeje bytů 3+1 v Lovosicích?

Podobné nemovitosti