Prodej komerční nemovitosti, Bělotín, 437 m2

Bělotín

6 350 000 Kč /za nemovitost HYPOTÉKA od 28 381 Kč /za měsíc

(včetně provize, včetně právního servisu)

Doporučené firmy v Bělotíně

Informace k nemovitosti

Jedinečná investiční příležitost – Komerční i obytná nemovitost v Bělotíně.

Hledáte kombinaci komerčních prostor a rodinného bydlení v jednom?
Tato multifunkční nemovitost v klidné obci Bělotín (okres Přerov) Vám nabízí široké možnosti využití – podnikání, skladování, sídlo firmy i pohodlné bydlení na jednom místě.

Lokalita:
Vynikající dopravní dostupnost: dálnice D1 do 5 minut autem, Přerov 28 km, Olomouc 38 km, Ostrava 57 km.
Veškerá občanská vybavenost v dosahu: ZŠ, MŠ, pošta, obecní úřad, vlak, autobus – vše do 12 minut chůze

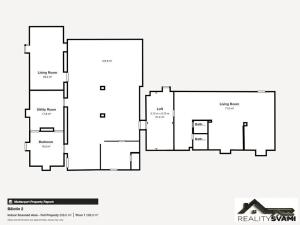
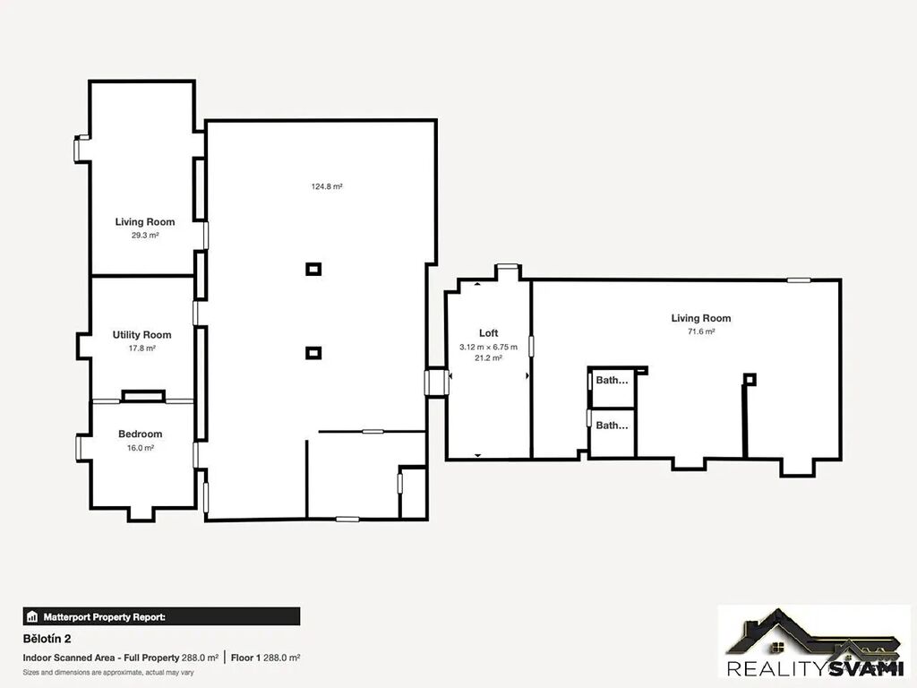
Dispozice nemovitosti:
Přízemí – komerční prostory (288 m²)
Velkorysá hala s možností dispozičních úprav (vstup dveřmi nebo el. vraty)
Oddělené místnosti: sklady, kanceláře, čekárna, šatny, technické zázemí
Navazující část: bar, krbová kamna, posezení, 2x WC – vhodné pro kavárnu, vinárnu, kadeřnictví, masáže, wellness, jednací místnost apod.
Přístup na zahradu (možnost letní/zimní zahrádky, hřiště, bazénu, parkování, altánu)

Voda, elektřina, WC, příprava na topení
Parkování pro dodávky i více vozidel, rozměr vrat šířka 2,997m, výška 4,904m, zaparkujete zde i dlouhý přívěs.
Vhodné pro autoservis, výrobu, sklady, autodopravu

2. nadzemní podlaží – bytová jednotka 5+1 (149 m²)
- Samostatný vstup venkovním schodištěm
- Velká kuchyně s technickým prostorem a přístupem na střechu
- Obývací pokoj s krbovými kamny
- 2 pokoje, koupelna s vanou i sprchou, 2 WC
- Ložnice s lodžií

Technické informace:
Elektřina, vodovod, vlastní studna
Kanalizace: septik s trativodem (obecní kanalizace plánována – cca 50 m)
Plyn zaveden (nevyužíván)
Topení: krbová kamna na dřevo

- Možnost čerpání dotací (např. NZÚ)
- Potenciál pro solární panely či větrnou elektrárnu
- Nízké měsíční náklady

Stav a možnosti:
- Dům po rozsáhlé rekonstrukci – kolaudace 09/2023
- Probíhají dokončovací práce a úpravy pozemku
- Výborná investiční příležitost (možnost pronájmu komerčních prostor a bytové jednotky 5+1)

Neváhejte mě kontaktovat pro více informací nebo domluvení prohlídky.
S financováním, dotacemi i dokončovacími pracemi Vám rád pomohu.

Těším se na osobní setkání.

Parametry nemovitosti

Cena
6 350 000 Kč /za nemovitost Spočítat hypotéku
Poznámka k ceně
včetně provize, včetně právního servisu
Aktualizováno
9. 11. 2025
Adresa
Bělotín
ID
00504
Stavba
Smíšená
Stav objektu
V rekonstrukci
Vybaveno
Částečně
Lokalita objektu
Klidná část obce
Užitná plocha
437 m2
Zastavěná plocha
342 m2
Třída energetické náročnosti
G - Mimořádně nehospodárná
Elektřina
230V, 400V
Plyn
Plynovod
Odpad
Veřejná kanalizace, Jímka, Trativod
Komunikace
Betonová, Asfaltová
Telekomunikace
Internet, Kabelové rozvody
Doprava
Vlak, Dálnice, Silnice, MHD, Autobus
Voda
Vodovod, Studna
Topné těleso
Radiátory, Krbová kamna, Krb, Kotel na tuhá paliva
Zdroj topení
Krbová kamna, Krb, Kotel na tuhá paliva
Zdroj teplé vody
Kotel na tuhá paliva
Garáž
Výtah
Parkování

Kontaktovat makléře

Máte zájem o tuto nemovistost?

Tímto, v souladu s nařízením Evropského parlamentu a Rady (EU) 2016/679, v platném znění, prohlašuji, že mi je alespoň 16 let a uděluji tak svůj souhlas se zpracováním zadaných údajů (jméno, telefon, e-mail, ip adresa) společnosti B3 Technology, s.r.o., IČ: 07330600, se sídlem Novostavby 126/23, 435 11 Lom (správce dat), za účelem předání dotazu z tohoto formuláře Vámi vybranému inzerentovi a zpětného kontaktování mé osoby. Osobní údaje bude správce zpracovávat manuálně i automaticky přímo prostřednictvím svých zaměstnanců. Informace předané tímto formulářem budou uloženy v databázi správce maximálně po dobu 10 let. Odvolání souhlasu s uložením a zpracováním poskytnutých dat lze e-mailem na info@bydlisnami.cz. V případě podezření na neoprávněné použití Vámi poskytnutých údajů máte právo předat podnět k šetření Úřadu pro ochranu osobních údajů. Více informací
Chystáte se prodat nemovitost?
Pomůžeme Vám!

Inzerát si prohlédlo 0 lidí

Prodejce

František Bula

František Bula

Hlídací pes

Chcete dostávat emailem podobné nabídky prodeje komerčních nemovitostí v Bělotíně?

Podobné nemovitosti