Prodej rodinného domu, Hamry, 200 m2 (ID: 2470526)

Hamry

7 690 000 Kč /za nemovitost HYPOTÉKA od 34 370 Kč /za měsíc
Doporučené firmy v Hamrech

Informace k domu

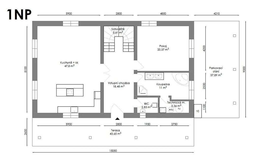
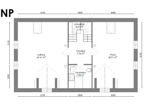
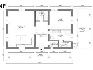
Exkluzivně vám nabízíme ke koupi rodinný dům v Hamrech u Hlinska. Novostavba o dispozici 4+kk má užitnou plochu 200 m² + dvě zastřešená parkovací stání a pozemek 321 m². V 1. NP domu se nachází velká vstupní hala, technická místnost, kuchyň s kuchyňským koutem a obývacím pokojem, ložnice, samostatné WC a koupelna s vanou. Ve 2. NP jsou dva prostorné dětské pokoje a koupelna s WC. Celý dům má podlahové vytápění, které je řízené tepelným čerpadlem. V domě jsou plovoucí podlahy a dlažba. Světlé, velké místnosti a kvalitní použité materiály zajistí komfortní bydlení pro celou rodinu. Dům je volný ihned.

Hamry jsou malá obec vzdálená pouhých 5 km od Hlinska a 13 km od Ždírce nad Doubravou. Ideální místo pro klidné rodinné bydlení. Dominantou této lokality je čistý vzduch, lesy a nádherná příroda. V Hamrech najdete lesní mateřskou školku, dětská hřiště, sportoviště a spousta zeleně. Ostatní občanskou vybavenost najdete v Hlinsku, kam se dostanete pohodlně autobusem nebo autem za 5 minut.

Samozřejmostí je rychlé vyřízení hypotéky za velmi příznivých podmínek.

Parametry domu

Cena
7 690 000 Kč /za nemovitost Spočítat hypotéku
Aktualizováno
9. 11. 2025
Adresa
Hamry
ID
9
Stavba
Cihlová
Stav objektu
Novostavba
Užitná plocha
200 m2
Plocha pozemku
321 m2
Parkování

Kontaktovat makléře

Máte zájem o tento dům?

Tímto, v souladu s nařízením Evropského parlamentu a Rady (EU) 2016/679, v platném znění, prohlašuji, že mi je alespoň 16 let a uděluji tak svůj souhlas se zpracováním zadaných údajů (jméno, telefon, e-mail, ip adresa) společnosti B3 Technology, s.r.o., IČ: 07330600, se sídlem Novostavby 126/23, 435 11 Lom (správce dat), za účelem předání dotazu z tohoto formuláře Vámi vybranému inzerentovi a zpětného kontaktování mé osoby. Osobní údaje bude správce zpracovávat manuálně i automaticky přímo prostřednictvím svých zaměstnanců. Informace předané tímto formulářem budou uloženy v databázi správce maximálně po dobu 10 let. Odvolání souhlasu s uložením a zpracováním poskytnutých dat lze e-mailem na info@bydlisnami.cz. V případě podezření na neoprávněné použití Vámi poskytnutých údajů máte právo předat podnět k šetření Úřadu pro ochranu osobních údajů. Více informací
Chystáte se prodat nemovitost?
Pomůžeme Vám!

Inzerát si prohlédlo 0 lidí

Prodejce

Iveta Uhrová

Iveta Uhrová

Hlídací pes

Chcete dostávat emailem podobné nabídky prodeje rodinných domů v Hamrech (okr. Chrudim)?

Top nabídky

Podobné nemovitosti