Pronájem bytu 2+1, Brno, Terezy Novákové, 58 m2

Terezy Novákové, Brno, Řečkovice

19 000 Kč /za měsíc Získejte výhodnou HYPOTÉKU
Doporučené firmy v Brně

Informace k bytu

Vážení klienti,

nabízíme k pronájmu krásný, nově zrekonstruovaný byt 2+1, umístěný v rodinném domě. Budete první uživatelé tohoto bytu.

V těsné blízkosti se nachází konečná zastávku tramvaje Řečkovice, s přímým spojením do centra města. V okolí je řada možností sportovního vyžití, včetně cyklostezky a několika sportovišť. Supermarket jen pár kroků od bytu a další občanská vybavenost v okolí.

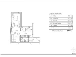
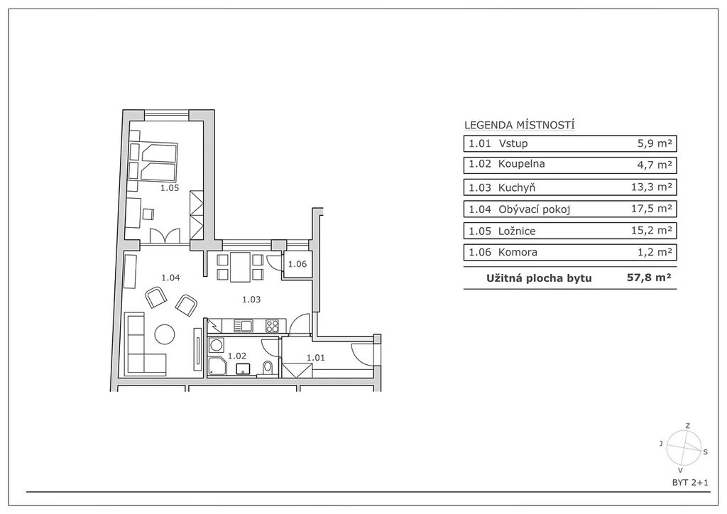
Byt k pronájmu má užitnou plochu 57,8 m², nachází se v přízemí a je orientován na jihozápad. Vstup do bytu je z uzavřeného průjezdu domem.

Dispozice nabízí prostornou vstupní chodbu s možností umístit zde šatní skříně. Z chodby se vchází do koupelny, součástí které je sprchový kout, umyvadlo a toaleta. Vedle sprchového koutu je prostor na pračku a sušičku šířky 60cm. Z chodby je dále vstup do kuchyně, která je průchozí do obývacího pokoje a dále pak do ložnice. V kuchyni je i praktická komora/spíž, která je větraná oknem. Kuchyňská linka obsahuje indukční varnou desku, elektrickou troubu, myčku, cirkulační digestoř a lednici. Obývací pokoj nemá okno, ale je prosvětlen otevřeným otvorem přes kuchyň a prosklenou stěnou přes ložnici.

V bytě jsou deskové radiátory. Ohřev vody zajišťuje plynový kotel umístěný ve sklepě domu. Na oknech jsou nové vnitřní žaluzie.

K nastěhování od 1.12.2025. Kuchyňská linka se bude instalovat v druhé polovině listopadu. Na fotografii je vizualizace kuchyňské linky, jak bude vypadat. Majitel preferuje dlouhodobý pronájem pro nekuřáky.

Podmínky pronájmu:
Nájemné 19.000 Kč/měsíc,
Zálohy na energie 3.000 Kč/měsíc (plyn 1400 Kč, elektřina 1000 Kč, voda 600 Kč) Záloha na plyn je paušální.
Vratná kauce 38.000 Kč
Provize RK 19.000 Kč + DPH

V případě zájmu či pro více informací kontaktujte realitního makléře Jiřího Jaška.

Parametry bytu

Cena
19 000 Kč /za měsíc
Náklady na bydlení
3000
Aktualizováno
11. 11. 2025
Adresa
Terezy Novákové, Brno, Řečkovice
ID
00159
Stavba
Cihlová
Stav objektu
Velmi dobrý
Patro
1.
Vybaveno
Ne
Lokalita objektu
Klidná část obce
Vlastnictví
Osobní
Užitná plocha
58 m2
Třída energetické náročnosti
G - Mimořádně nehospodárná
Elektřina
230V
Plyn
Plynovod
Odpad
Veřejná kanalizace
Komunikace
Asfaltová
Telekomunikace
Internet
Doprava
MHD
Voda
Vodovod
Topné těleso
Radiátory
Zdroj topení
Plynový kondenzační kotel
Zdroj teplé vody
Plynový kondenzační kotel
Výtah

Kontaktovat makléře

Máte zájem o tento byt?

Tímto, v souladu s nařízením Evropského parlamentu a Rady (EU) 2016/679, v platném znění, prohlašuji, že mi je alespoň 16 let a uděluji tak svůj souhlas se zpracováním zadaných údajů (jméno, telefon, e-mail, ip adresa) společnosti B3 Technology, s.r.o., IČ: 07330600, se sídlem Novostavby 126/23, 435 11 Lom (správce dat), za účelem předání dotazu z tohoto formuláře Vámi vybranému inzerentovi a zpětného kontaktování mé osoby. Osobní údaje bude správce zpracovávat manuálně i automaticky přímo prostřednictvím svých zaměstnanců. Informace předané tímto formulářem budou uloženy v databázi správce maximálně po dobu 10 let. Odvolání souhlasu s uložením a zpracováním poskytnutých dat lze e-mailem na info@bydlisnami.cz. V případě podezření na neoprávněné použití Vámi poskytnutých údajů máte právo předat podnět k šetření Úřadu pro ochranu osobních údajů. Více informací
Chystáte se prodat nemovitost?
Pomůžeme Vám!

Inzerát si prohlédlo 7 lidí

Prodejce

Ing. arch. Jiří Jašek

Ing. arch. Jiří Jašek

Hlídací pes

Chcete dostávat emailem podobné nabídky pronájmu bytů 2+1 v Brně?

Podobné nemovitosti