Soccer reality

Prodej rodinného domu, Praha - Horní Počernice, Krotitelů, 147 m2 (ID: 2471858)

Krotitelů, Praha, Horní Počernice

17 990 000 Kč /za nemovitost HYPOTÉKA od 80 404 Kč /za měsíc
Doporučené firmy v Praze 9

Stěhovací služby

Výkup a prodej starého nábytku

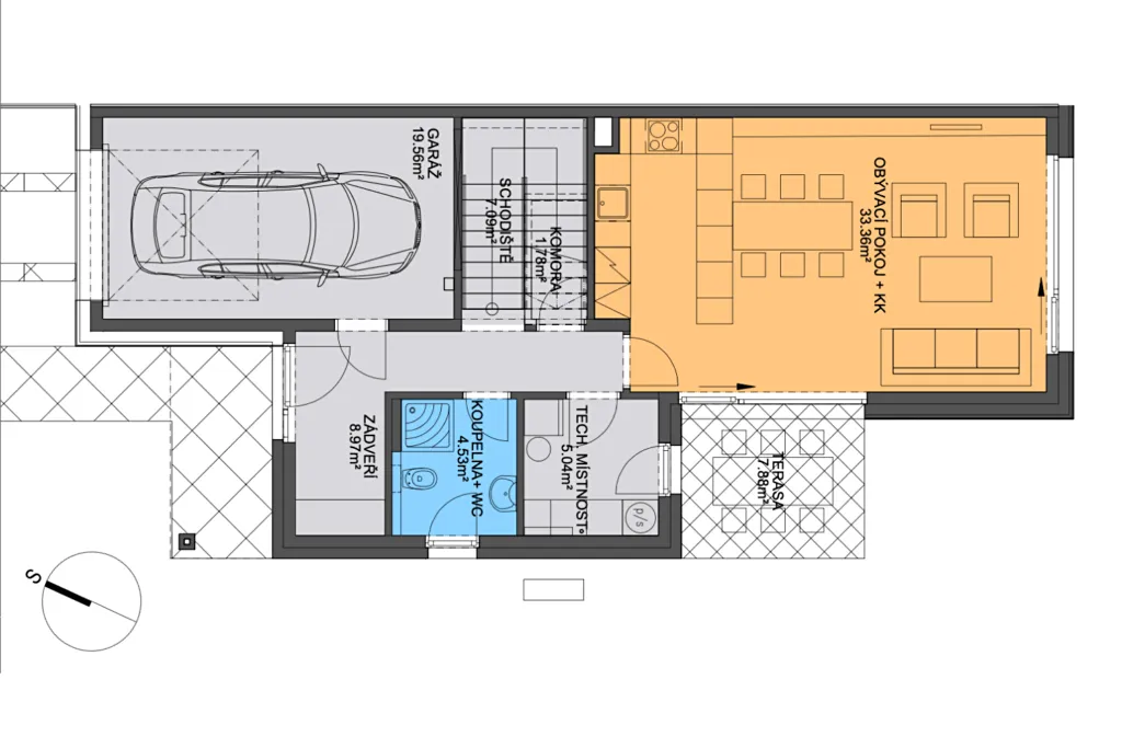
Informace k domu

Moderní rodinný dům v projektu Domy Bílý vrch nabízí chytrou dispozici 5+kk, garáž a zahradu o velikosti 470 m². Díky nadstandardnímu vybavení a moderním technologiím spojuje komfort rodinného života s nízkými provozními náklady.

V přízemí se nachází velkorysý obývací pokoj s kuchyní (33,5 m²) a vstupem na terasu (17,2 m²), technická místnost, koupelna se sprchou a WC a garáž pro jeden vůz. Parkování je zajištěno i před domem. V patře je hlavní ložnice (16,8 m²), dvě dětské ložnice (10,8 a 10,7 m²), pracovna (10 m²) a dvě koupelny – jedna se sprchovým koutem a WC, druhá s vanou a WC.

Dům je vybaven technologiemi, které zajišťují zdravé a úsporné bydlení: tepelné čerpadlo (v zimě topí, v létě chladí), rekuperace vzduchu, inteligentní řízení domácnosti, příprava na předokenní stínění a dřevěná okna s trojskly. Orientační měsíční náklady čtyřčlenné rodiny činí přibližně 5 700 Kč včetně energií, pojištění, vody, odpadu i internetu.

Tento dům bude zároveň sloužit jako vzorový dům, který si budete moci prohlédnout od poloviny září 2025.

Horní Počernice patří mezi vyhledávané pražské lokality – nabízí klidné bydlení, kompletní občanskou vybavenost i výborné spojení do centra a na dálnice.

Za projektem Domy Bílý vrch stojí Jan Konhefr – člověk, který domy nejen staví, ale i prodává. Díky tomu jednáte přímo s ním, bez zdlouhavého schvalování, a můžete se spolehnout na férový přístup i možnost domluvit se na individuálních úpravách. Navíc zůstává na místě i po dokončení stavby, takže máte jistotu podpory i do budoucna.

Parametry domu

Cena
17 990 000 Kč /za nemovitost Spočítat hypotéku
Aktualizováno
19. 11. 2025
Adresa
Krotitelů, Praha, Horní Počernice
Stavba
Cihlová
Stav objektu
Ve výstavbě
Druh objektu
V bloku
Lokalita objektu
Klidná část obce
Užitná plocha
147 m2
Plocha pozemku
470 m2
Třída energetické náročnosti
A - Mimořádně úsporná
Odpad
Veřejná kanalizace
Komunikace
Dlážděná, Asfaltová
Telekomunikace
Internet
Doprava
Vlak, Dálnice, Silnice, MHD
Voda
Vodovod
Topné těleso
Podlahové vytápění
Zdroj topení
Tepelné čerpadlo
Zdroj teplé vody
Tepelné čerpadlo
Garáž
Parkování

Kontaktovat makléře

Máte zájem o tento dům?

Tímto, v souladu s nařízením Evropského parlamentu a Rady (EU) 2016/679, v platném znění, prohlašuji, že mi je alespoň 16 let a uděluji tak svůj souhlas se zpracováním zadaných údajů (jméno, telefon, e-mail, ip adresa) společnosti B3 Technology, s.r.o., IČ: 07330600, se sídlem Novostavby 126/23, 435 11 Lom (správce dat), za účelem předání dotazu z tohoto formuláře Vámi vybranému inzerentovi a zpětného kontaktování mé osoby. Osobní údaje bude správce zpracovávat manuálně i automaticky přímo prostřednictvím svých zaměstnanců. Informace předané tímto formulářem budou uloženy v databázi správce maximálně po dobu 10 let. Odvolání souhlasu s uložením a zpracováním poskytnutých dat lze e-mailem na info@bydlisnami.cz. V případě podezření na neoprávněné použití Vámi poskytnutých údajů máte právo předat podnět k šetření Úřadu pro ochranu osobních údajů. Více informací
Chystáte se prodat nemovitost?
Pomůžeme Vám!

Inzerát si prohlédlo 20 lidí

Prodejce

Jan Konhefr

Jan Konhefr

Hlídací pes

Chcete dostávat emailem podobné nabídky prodeje rodinných domů v Praze 9?

Podobné nemovitosti