Pronájem ubytování, Dalovice, Botanická, 1400 m2 (ID: 2473357)

Botanická, Dalovice

200 000 Kč /za měsíc Získejte výhodnou HYPOTÉKU

(bez DPH)

Doporučené firmy v Dalovicích

Informace k nemovitosti

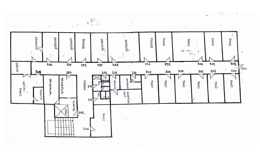
Společnost Marent Reality Vám nabízí k dlouhodobému pronájmu dlouhodobě zběhnutou ubytovnu se stálými nájemníky v Karlových Varech. Víceúčelový objekt nalezneme v rozsáhlém areálu Office park Dalovice, který již několik let provozujeme a řádně spravujeme. Objekt má celkem 3 podlaží, přičemž ubytovna určená k pronájmu je situována do dvou podlaží. Každé z podlaží má plochu 700 m². Kolem budovy je zřízeno vlastní parkoviště pro dostatečné množství automobilů. V objektu je nainstalovaný kamerový systém a je zde rovněž ostraha. K objektu přiléhá také rozsáhlá betonová venkovní manipulační a skladová plocha, která je uzpůsobena pro pohyb manipulační techniky i kamionů a také pro případné skladování či parkování.
Objekt je napojen kompletně na inženýrské sítě – voda, kanalizace, elektřina a plyn. V rámci sjednaného nájmu pro Vás provedeme také řádnou kompletní rekonstrukci prostor dle Vašich představ. V tomto objektu je mnoho prostor ze kterých je možno vybírat.
V případě zájmu neváhejte kontaktovat našeho vedoucího správy nemovitostí, který Vám poskytne kompletní informace a zajistí prohlídku nemovitosti. Veškeré nabízení nemovitosti zároveň vlastníme.

Parametry nemovitosti

Cena
200 000 Kč /za měsíc
Poznámka k ceně
bez DPH
Aktualizováno
12. 11. 2025
Adresa
Botanická, Dalovice
Stavba
Cihlová
Stav objektu
Dobrý
Vybaveno
Ano
Užitná plocha
1400 m2
Elektřina
230V, 400V
Odpad
Veřejná kanalizace
Topení
Ústřední plynové
Komunikace
Betonová, Asfaltová
Telekomunikace
Internet
Doprava
Vlak, Silnice, MHD, Autobus
Voda
Vodovod
Zdroj topení
Plynový kondenzační kotel
Garáž
Parkování

Kontaktovat makléře

Máte zájem o tuto nemovistost?

Tímto, v souladu s nařízením Evropského parlamentu a Rady (EU) 2016/679, v platném znění, prohlašuji, že mi je alespoň 16 let a uděluji tak svůj souhlas se zpracováním zadaných údajů (jméno, telefon, e-mail, ip adresa) společnosti B3 Technology, s.r.o., IČ: 07330600, se sídlem Novostavby 126/23, 435 11 Lom (správce dat), za účelem předání dotazu z tohoto formuláře Vámi vybranému inzerentovi a zpětného kontaktování mé osoby. Osobní údaje bude správce zpracovávat manuálně i automaticky přímo prostřednictvím svých zaměstnanců. Informace předané tímto formulářem budou uloženy v databázi správce maximálně po dobu 10 let. Odvolání souhlasu s uložením a zpracováním poskytnutých dat lze e-mailem na info@bydlisnami.cz. V případě podezření na neoprávněné použití Vámi poskytnutých údajů máte právo předat podnět k šetření Úřadu pro ochranu osobních údajů. Více informací
Chystáte se prodat nemovitost?
Pomůžeme Vám!

Inzerát si prohlédlo 6 lidí

Prodejce

Bc. Roman Štěrba, DiS.

Bc. Roman Štěrba, DiS.

Hlídací pes

Chcete dostávat emailem podobné nabídky pronájmu ubytování v Dalovicích (okr. Karlovy Vary)?

Podobné nemovitosti