Prodej rodinného domu, Brno, Velatická, 103 m2

Velatická, Brno, Líšeň

6 400 000 Kč /za nemovitost HYPOTÉKA od 28 604 Kč /za měsíc

(včetně poplatků, + provize RK, včetně právního servisu)

Doporučené firmy v Brně

Informace k domu

Vážení klienti,

nabízíme Vám nevšední rodinný dům v Brně-Líšni, na ulici Velatická.

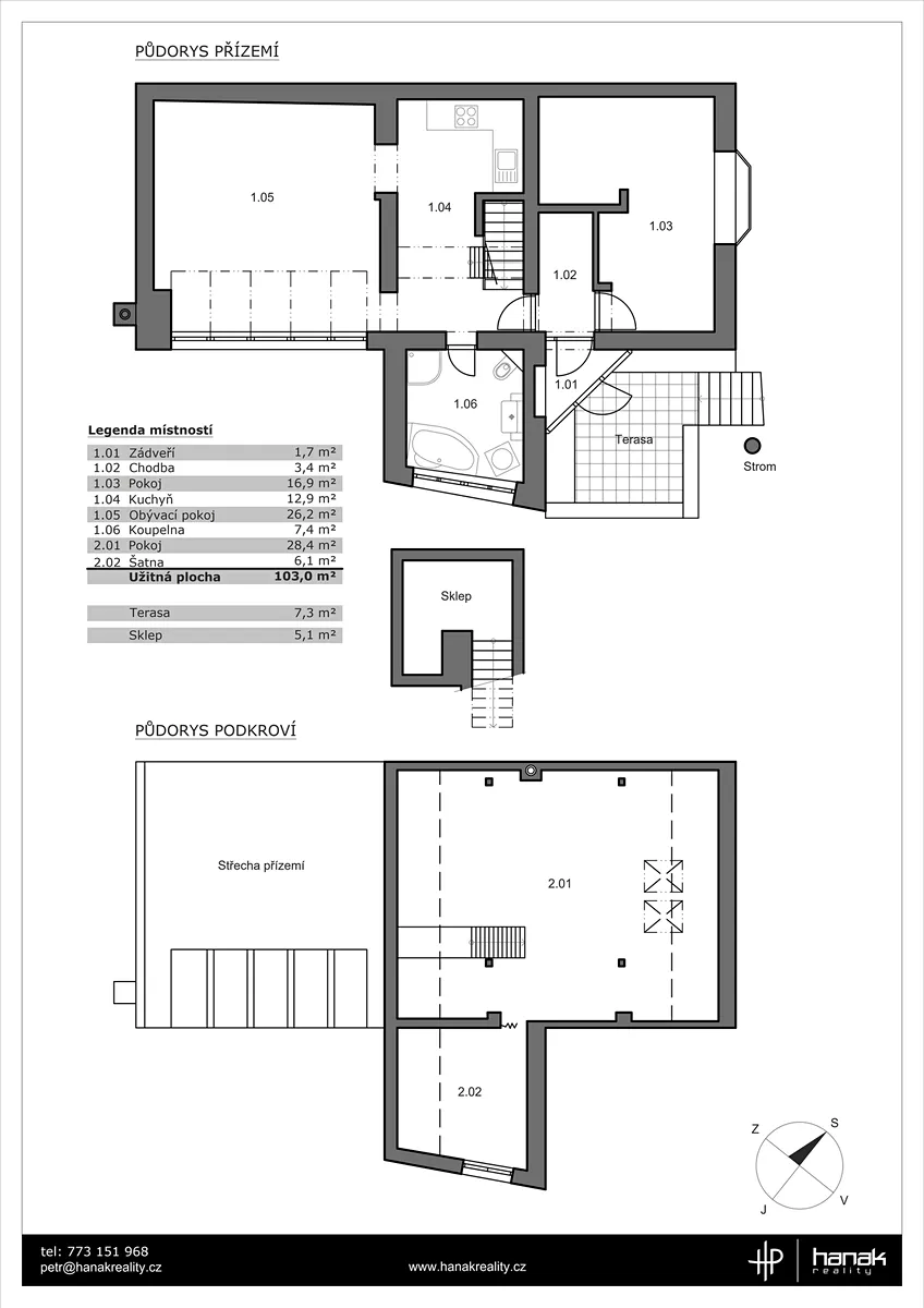
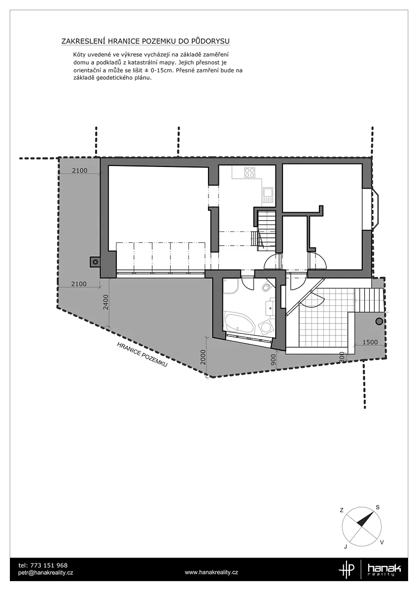
Jedná se o atypický, dvoupodlažní, částečně podsklepený dům o dispozici 3+kk s nevyužívaným půdním prostorem a venkovní terasou. Dům se nachází na pozemku o výměře 156 m².

Užitná plocha domu činí 103 m², sklep má výměru 5 m².
V přízemí se nachází vstupní zádveří, ze kterého je vstup do jednoho pokoje a kuchyně s komunikačním prostorem, odkud se dále vchází do obývacího pokoje a koupelny. V přízemí se rovněž nachází schodiště do sklepa a do podkroví.

Koupelna je vybavena vanou, sprchovým koutem, toaletou, umyvadlem a prostorem pro pračku.
V podkroví se nachází jedna velká místnost vhodná například jako ložnice a menší místnost, kterou lze využít jako pracovnu. Schodiště do podkroví je ocelové se strmějším sklonem.

Venkovní terasa nabízí příjemné posezení s výhledem do zeleně. Zahrada je menší, o výměře cca 60 m², a je přístupná pouze z terasy před vstupem do domu.

Dům je situován ve svažitém terénu, bez možnosti přímého příjezdu autem. Parkování je zajištěno na nedalekém parkovišti.

Tato nemovitost je ideální pro milovníky klidu a přírody – v ulici se nachází jen několik rodinných domů, obklopených vzrostlým lesem.

Dům je napojen na všechny inženýrské sítě: dešťovou a splaškovou kanalizaci, vodovod, plyn a elektřinu. Ohřev teplé vody zajišťuje plynový kotel umístěný ve sklepě. Vytápění je řešeno deskovými radiátory v každé místnosti, v koupelně je navíc otopný žebřík napojený na stejný rozvod.
Elektroinstalace je v celém domě nová.

Nemovitost vyžaduje určité opravy – ty však nebrání okamžitému užívání domu a přispěly by k většímu komfortu bydlení.

Prohlídky budou probíhat ve středu 19.11. od 15. hodiny. Bližší informace Vám budou zaslány emailem.

Parametry domu

Cena
6 400 000 Kč /za nemovitost Spočítat hypotéku
Poznámka k ceně
včetně poplatků, + provize RK, včetně právního servisu
Náklady na bydlení
5000
Aktualizováno
12. 11. 2025
Adresa
Velatická, Brno, Líšeň
ID
00162
Stavba
Cihlová
Stav objektu
Dobrý
Vybaveno
Ne
Druh objektu
V bloku
Lokalita objektu
Klidná část obce
Užitná plocha
103 m2
Zastavěná plocha
95 m2
Plocha pozemku
156 m2
Třída energetické náročnosti
G - Mimořádně nehospodárná
Elektřina
230V
Plyn
Plynovod
Odpad
Veřejná kanalizace
Komunikace
Dlážděná
Telekomunikace
Telefon, Internet
Voda
Vodovod
Topné těleso
Radiátory
Zdroj topení
Plynový kondenzační kotel
Zdroj teplé vody
Plynový kotel
Sklep
Výtah

Kontaktovat makléře

Realitní kancelář

hanakreality.cz

tř. Kosmonautů 1288/1, Olomouc

Chystáte se prodat nemovitost?
Pomůžeme Vám!

Máte zájem o tento dům?

Tímto, v souladu s nařízením Evropského parlamentu a Rady (EU) 2016/679, v platném znění, prohlašuji, že mi je alespoň 16 let a uděluji tak svůj souhlas se zpracováním zadaných údajů (jméno, telefon, e-mail, ip adresa) společnosti B3 Technology, s.r.o., IČ: 07330600, se sídlem Novostavby 126/23, 435 11 Lom (správce dat), za účelem předání dotazu z tohoto formuláře Vámi vybranému inzerentovi a zpětného kontaktování mé osoby. Osobní údaje bude správce zpracovávat manuálně i automaticky přímo prostřednictvím svých zaměstnanců. Informace předané tímto formulářem budou uloženy v databázi správce maximálně po dobu 10 let. Odvolání souhlasu s uložením a zpracováním poskytnutých dat lze e-mailem na info@bydlisnami.cz. V případě podezření na neoprávněné použití Vámi poskytnutých údajů máte právo předat podnět k šetření Úřadu pro ochranu osobních údajů. Více informací
Chystáte se prodat nemovitost?
Pomůžeme Vám!

Inzerát si prohlédlo 5 lidí

Prodejce

Call centrum

Call centrum

Hlídací pes

Chcete dostávat emailem podobné nabídky prodeje rodinných domů v Brně?

Podobné nemovitosti