Pronájem bytu 3+kk, Praha - Krč, Hurbanova, 66 m2

Hurbanova, Krč - Praha 4

23 900 Kč /za měsíc Získejte výhodnou HYPOTÉKU

(vratná jistota, náklady na bydlení včetně pojištění 6 000 Kč, poplatek za podnájem)

Doporučené firmy v Praze 4

Stěhovací služby

Výkup a prodej starého nábytku

Informace k bytu

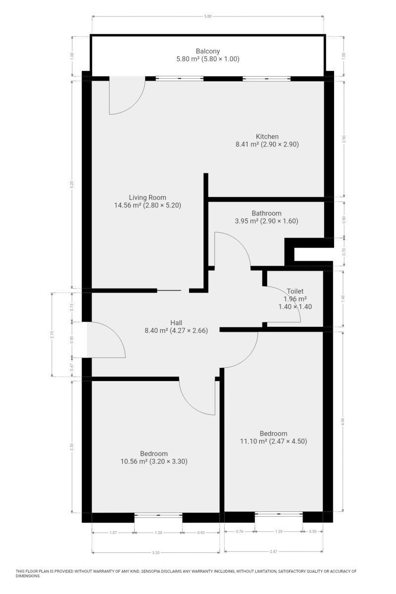
K dlouhodobému podnájmu nabízíme krásný byt o dispozici 3+kk s lodžií, který se nachází v nejvyšším patře panelového domu v žádané lokalitě Sídliště Krč. Byt o celkové výměře 66 m2 je částečně zařízený, v ceně je komora na patře. Celý byt letos prošel nákladnou a pečlivou rekonstrukcí.

Obývací pokoj je spojený s novou kuchyní na míru, kde naleznete indukční varnou desku, elektrickou troubu, mikrovlnnou troubu, lednici s mrazákem, myčku a dostatek úložného prostoru. Z obývacího pokoje je vstup přímo na prostornou prosklenou lodžii. Obě ložnice jsou neprůchozí. Okna bytu jsou orientovaná na dvě světové strany, ze všech oken je výhled do zeleně.

Sídliště Krč je oblíbené pro své klidné prostředí, dobrou dopravní dostupnost, ale i výborné možnosti vyžití. V pěší vzdálenosti od domu začíná Kunratický les, přímo před domem je dětské hřiště, další se nacházejí jen pár minut chůze, stejně jako Městská knihovna, řada bister a restaurací, kavárna, JYSK, Lidl, nemocnice Krč a další. Na nákupy můžete vyrazit do nedalekého OC Novo Plaza. Za šest minut se dostanete autobusem přímo na stanici metra Kačerov. Velmi rychle se odtud dostanete i na městský okruh.

Byt je k nastěhování ihned. Majitel preferuje zájemce bez domácích mazlíčků.

Byt pronajímá Ideální nájemce - profesionální správce nemovitostí. S námi budete mít po ruce klientskou podporu 24/7, spolehlivé pojištění a díky klientskému portálu můžete mít kdykoli přehled o platbách a najdete zde i praktický formulář pro řešení požadavků. Pojďte bydlet s námi!

Parametry bytu

Cena
23 900 Kč /za měsíc
Poznámka k ceně
vratná jistota, náklady na bydlení včetně pojištění 6 000 Kč, poplatek za podnájem
Aktualizováno
12. 11. 2025
Adresa
Hurbanova, Krč - Praha 4
ID
N6937
Stavba
Panelová
Stav objektu
Velmi dobrý
Patro
10. z 10
Vybaveno
Částečně
Typ objektu
Patrový
Lokalita objektu
Klidná část obce
Vlastnictví
Osobní
Užitná plocha
66 m2
Podlahová plocha
66 m2
Třída energetické náročnosti
B - Velmi úsporná
Ukazatel energetické náročnosti
86.8 kWh/m2 za rok
Elektřina
230V
Topení
Ústřední dálkové
Telekomunikace
Telefon, Internet
Doprava
Vlak, Dálnice, Silnice, MHD, Autobus
Voda
Vodovod
Balkon
Sklep
Lodžie
Výtah

Kontaktovat makléře

Máte zájem o tento byt?

Tímto, v souladu s nařízením Evropského parlamentu a Rady (EU) 2016/679, v platném znění, prohlašuji, že mi je alespoň 16 let a uděluji tak svůj souhlas se zpracováním zadaných údajů (jméno, telefon, e-mail, ip adresa) společnosti B3 Technology, s.r.o., IČ: 07330600, se sídlem Novostavby 126/23, 435 11 Lom (správce dat), za účelem předání dotazu z tohoto formuláře Vámi vybranému inzerentovi a zpětného kontaktování mé osoby. Osobní údaje bude správce zpracovávat manuálně i automaticky přímo prostřednictvím svých zaměstnanců. Informace předané tímto formulářem budou uloženy v databázi správce maximálně po dobu 10 let. Odvolání souhlasu s uložením a zpracováním poskytnutých dat lze e-mailem na info@bydlisnami.cz. V případě podezření na neoprávněné použití Vámi poskytnutých údajů máte právo předat podnět k šetření Úřadu pro ochranu osobních údajů. Více informací
Chystáte se prodat nemovitost?
Pomůžeme Vám!

Inzerát si prohlédlo 3 lidí

Prodejce

Miloslava Kačerová

Miloslava Kačerová

Hlídací pes

Chcete dostávat emailem podobné nabídky pronájmu bytů 3+kk v Praze 4?

Podobné nemovitosti