Prodej chalupy, Golčův Jeníkov - Římovice, 80 m2

Římovice

4 900 000 Kč /za nemovitost HYPOTÉKA od 21 900 Kč /za měsíc
Doporučené firmy v Golčůvě Jeníkově

Informace k domu

Přináším příležitost pořídit z velké části velmi pěkně zrekonstruovanou chalupu (rodinný dům) s krásnou zahradou v obci Římovice u města Golčův Jeníkov.

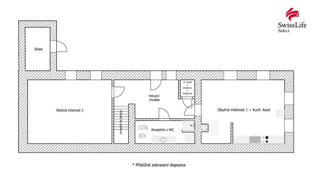
Chalupa nabízí celkem potenciálních cca 140 m užitné plochy. V přízemí jsou na přibližně 80 m obývací pokoj s kuchyňskou linkou, koupelna s WC, bidetem a sprch. koutem, technická komora s el. kotlem a další velká místnost (ložnice). V podkroví je připravených přibližně 60 m plochy k dokončení použitelných jako další obyvatelný prostor.

Co se týče exteriéru, na přilehlé zahradě bylo nedávno vybudované příjemné sezení, je zde také dostatečný prostor pro gril, trampolínu a případně bazén. Dále náleží k chalupě dvě menší zděné skladovací budovy (kůlna, dřevník). K domu také patří z druhé strany ovocný sad o ploše 158 m.

Užitková voda je obecní a její ohřev zajišťuje el. bojler. Vytápění má dům řešeno primárně el. kotlem s ohřevem a rozvodem vody do radiátorů. Příjemnou výhodou obývacího pokoje jsou ovšem stylová kachlová kamna. Odpad je sveden do jímky, ale do budoucna se nabízí možnost připojení na novou obecní kanalizaci, která je již připravena na hranici pozemku. Zalévání na zahradě je zajištěno vlastní studnou.

Malebná obec Římovice se nachází jen asi 3 km od Golčova Jeníkova. Je zde tedy téměř za rohem veškerá základní občanská vybavenost. Do větších měst je dojezdová vzdálenost velmi příjemná. Havl. Brod 25 km, Kutná Hora 30 km, Čáslav 10 km.

Pro domluvení prohlídky mne neváhejte kontaktovat.

Parametry domu

Cena
4 900 000 Kč /za nemovitost Spočítat hypotéku
Aktualizováno
15. 11. 2025
Adresa
Římovice
ID
24771
Stavba
Smíšená
Stav objektu
Dobrý
Vybaveno
Ano
Typ objektu
Přízemní
Druh objektu
Samostatný
Lokalita objektu
Klidná část obce
Užitná plocha
80 m2
Zastavěná plocha
141 m2
Podlahová plocha
80 m2
Plocha pozemku
697 m2
Třída energetické náročnosti
G - Mimořádně nehospodárná
Odpad
Veřejná kanalizace, Jímka
Topení
Lokální tuhá paliva, Ústřední elektrické
Komunikace
Asfaltová
Voda
Vodovod
Bezbarierový přístup
Parkování

Kontaktovat makléře

Máte zájem o tento dům?

Tímto, v souladu s nařízením Evropského parlamentu a Rady (EU) 2016/679, v platném znění, prohlašuji, že mi je alespoň 16 let a uděluji tak svůj souhlas se zpracováním zadaných údajů (jméno, telefon, e-mail, ip adresa) společnosti B3 Technology, s.r.o., IČ: 07330600, se sídlem Novostavby 126/23, 435 11 Lom (správce dat), za účelem předání dotazu z tohoto formuláře Vámi vybranému inzerentovi a zpětného kontaktování mé osoby. Osobní údaje bude správce zpracovávat manuálně i automaticky přímo prostřednictvím svých zaměstnanců. Informace předané tímto formulářem budou uloženy v databázi správce maximálně po dobu 10 let. Odvolání souhlasu s uložením a zpracováním poskytnutých dat lze e-mailem na info@bydlisnami.cz. V případě podezření na neoprávněné použití Vámi poskytnutých údajů máte právo předat podnět k šetření Úřadu pro ochranu osobních údajů. Více informací
Chystáte se prodat nemovitost?
Pomůžeme Vám!

Inzerát si prohlédlo 1 lidí

Prodejce

Bc. Jiří Máca

Bc. Jiří Máca

Hlídací pes

Chcete dostávat emailem podobné nabídky prodeje chalup v Golčůvě Jeníkově?

Top nabídky

Podobné nemovitosti