Pronájem bytu 1+1, Praha - Staré Město, U milosrdných, 41 m2

U milosrdných, Praha, Staré Město

26 000 Kč /za měsíc Získejte výhodnou HYPOTÉKU
Doporučené firmy v Praze 1

Stěhovací služby

Výkup a prodej starého nábytku

Informace k bytu

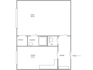
Nabízíme k pronájmu pěkný byt 1+1, 41 m2 ve druhém nadzemním podlaží cihlového domu s výtahem v ulici u Milosrdných v Praze 1 Starém Městě. Byt je v dobrém, udržovaném stavu, pokoje jsou neprůchozí, koupelna je se sprchovým koutem, WC je samostatně, v bytě je také komora. Zařízený je kuchyňskou linkou s plynovým sporákem, lednicí, mikrovlnnou troubou, je zde také stůl se čtyřmi židlemi. Na podlahách jsou v pokoji parkety, v kuchyni, předsíni, koupelně a na WC je dlažba. Okna jsou dřevěná, špaletová, k bytu patří také sklep. Topení a ohřev vody je zajištěn vlastním plynovým kotlem. Kauce je ve výši jednoho měsíčního nájmu, elektřina a plyn se převádí na nájemce. Veškerá občanská vybavenost je v pěší vzdálenosti, výborná lokalita v centru Prahy.

Parametry bytu

Cena
26 000 Kč /za měsíc
Náklady na bydlení
Služby pro 2 osoby - 4.400 Kč, el. 1.000Kč/měsíc, plyn 1.500 Kč/měsíc
Aktualizováno
15. 11. 2025
Adresa
U milosrdných, Praha, Staré Město
Stavba
Cihlová
Stav objektu
Velmi dobrý
Patro
1.
Vlastnictví
Osobní
Užitná plocha
41 m2

Kontaktovat makléře

Realitní kancelář

PROFI-TEN

Vodičkova 682/20, Praha

Chystáte se prodat nemovitost?
Pomůžeme Vám!

Máte zájem o tento byt?

Tímto, v souladu s nařízením Evropského parlamentu a Rady (EU) 2016/679, v platném znění, prohlašuji, že mi je alespoň 16 let a uděluji tak svůj souhlas se zpracováním zadaných údajů (jméno, telefon, e-mail, ip adresa) společnosti B3 Technology, s.r.o., IČ: 07330600, se sídlem Novostavby 126/23, 435 11 Lom (správce dat), za účelem předání dotazu z tohoto formuláře Vámi vybranému inzerentovi a zpětného kontaktování mé osoby. Osobní údaje bude správce zpracovávat manuálně i automaticky přímo prostřednictvím svých zaměstnanců. Informace předané tímto formulářem budou uloženy v databázi správce maximálně po dobu 10 let. Odvolání souhlasu s uložením a zpracováním poskytnutých dat lze e-mailem na info@bydlisnami.cz. V případě podezření na neoprávněné použití Vámi poskytnutých údajů máte právo předat podnět k šetření Úřadu pro ochranu osobních údajů. Více informací
Chystáte se prodat nemovitost?
Pomůžeme Vám!

Inzerát si prohlédlo 1 lidí

Prodejce

František Cakl

František Cakl

Hlídací pes

Chcete dostávat emailem podobné nabídky pronájmu bytů 1+1 v Praze 1?

Podobné nemovitosti