Prodej pozemku pro bydlení, Dobrochov, 173 m2 (ID: 2477087)

Dobrochov

1 049 000 Kč /za nemovitost HYPOTÉKA od 4 688 Kč /za měsíc

(Cena včetně provize a služeb RK)

Doporučené firmy v Dobrochově

Informace k pozemku

Prodej pozemku k bydlení, 173 m², Dobrochov

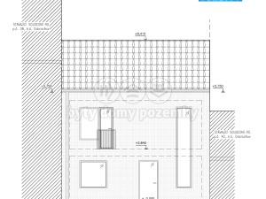
Exkluzivně nabízíme k prodeji pozemek včetně projektu rodinného domu a již vydaného stavebního povolení.
Stavbu tedy můžete zahájit okamžitě.

Projekt počítá s moderním rodinným domem o dispozici 5+kk s velmi dobře navrženým a praktickým uspořádáním.
Na hranici pozemku jsou dovedeny vodovod, kanalizace a plyn. O elektrickou přípojku je požádáno a její realizace proběhne v roce 2026.

Velkou výhodou je přístup na pozemek i ze zadní strany, což výrazně usnadňuje stavbu i budoucí užívání.
Celková plocha parcely činí 173 m². Na pozemku může po domluvě zůstat také stavební buňka.

Lokalita je velmi atraktivní – v blízkosti je nájezd na dálnici, v okolí kompletní občanská vybavenost a rovněž cyklostezka, která vede nedaleko pozemku.

S financováním Vám pomůže náš hypoteční specialista.
Pro více informací kontaktujte makléře.

Parametry pozemku

Cena
1 049 000 Kč /za nemovitost Spočítat hypotéku
Poznámka k ceně
Cena včetně provize a služeb RK
Aktualizováno
16. 11. 2025
Adresa
Dobrochov
ID
926031
Stav objektu
Velmi dobrý
Vybaveno
Ne
Lokalita objektu
Klidná část obce
Vlastnictví
Osobní
Plocha pozemku
173 m2

Kontaktovat makléře

Realitní kancelář

Logo M&M reality

M&M reality

ulice Krakovská 583/9, Praha

Chystáte se prodat nemovitost?
Pomůžeme Vám!

Máte zájem o tento pozemek?

Tímto, v souladu s nařízením Evropského parlamentu a Rady (EU) 2016/679, v platném znění, prohlašuji, že mi je alespoň 16 let a uděluji tak svůj souhlas se zpracováním zadaných údajů (jméno, telefon, e-mail, ip adresa) společnosti B3 Technology, s.r.o., IČ: 07330600, se sídlem Novostavby 126/23, 435 11 Lom (správce dat), za účelem předání dotazu z tohoto formuláře Vámi vybranému inzerentovi a zpětného kontaktování mé osoby. Osobní údaje bude správce zpracovávat manuálně i automaticky přímo prostřednictvím svých zaměstnanců. Informace předané tímto formulářem budou uloženy v databázi správce maximálně po dobu 10 let. Odvolání souhlasu s uložením a zpracováním poskytnutých dat lze e-mailem na info@bydlisnami.cz. V případě podezření na neoprávněné použití Vámi poskytnutých údajů máte právo předat podnět k šetření Úřadu pro ochranu osobních údajů. Více informací
Chystáte se prodat nemovitost?
Pomůžeme Vám!

Inzerát si prohlédlo 1 lidí

Prodejce

Vojtěch Burda

Vojtěch Burda

Hlídací pes

Chcete dostávat emailem podobné nabídky prodeje pozemků pro bydlení v Dobrochově?

Podobné nemovitosti