Prodej bytu 2+kk, Brno, Na pískové cestě, 60 m2

Na Pískové cestě, Brno, Bohunice

8 899 000 Kč /za nemovitost HYPOTÉKA od 39 773 Kč /za měsíc
Doporučené firmy v Brně

Informace k bytu

Hledáte byt na investici, nebo řešíte vlastní bydlení?
Kupte si nemovitost, která vás bude hýčkat.
A na ceně bude jen získávat.

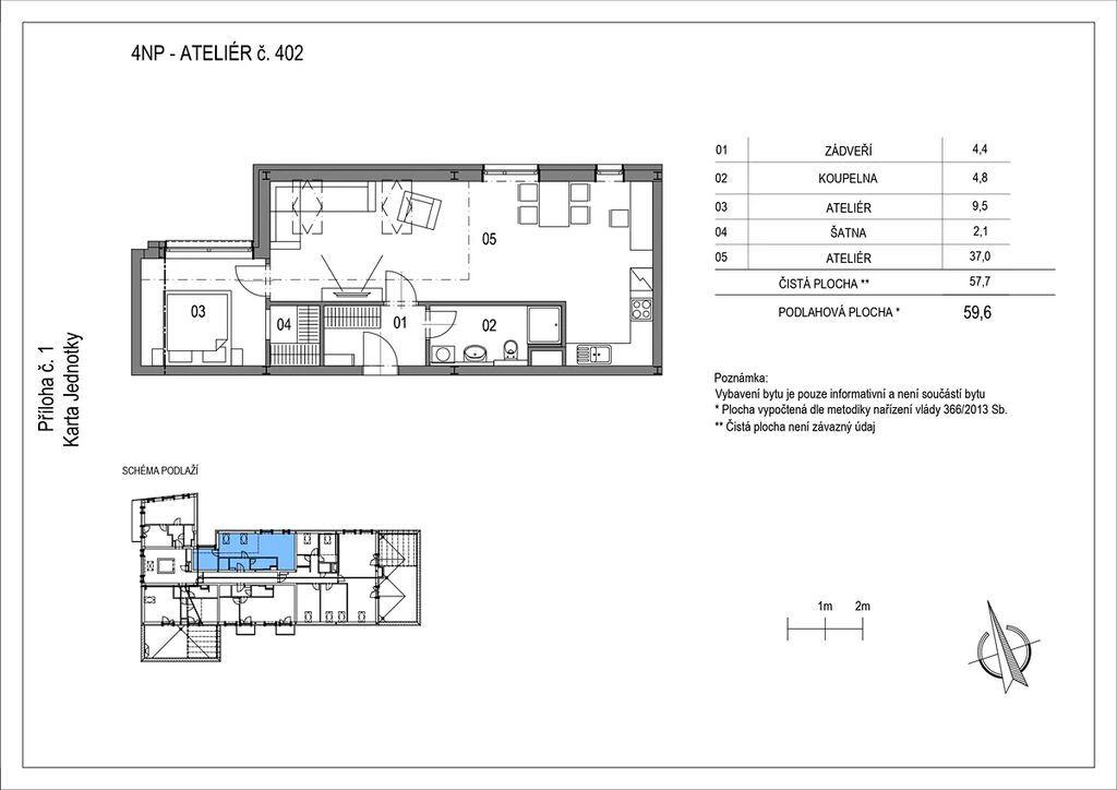
Pořiďte si ATELIÉR 402 v chytrém domě EDISON HOUSE.
Najdete jej v Brně - Bohunicích: čtvrti s raketovým rozmachem a extrémní žádaností.

A ateliér samotný?
Čeká Vás moderní dispozice jednotky s velkým otevřeným prostorem, bez drahocenné plochy bytu vynaložené na zbytečné předsíně.
Ateliér 402 totiž účelně využije každý z téměř 60 m².
Na svoji dispozici 2kk nabízí v dnešní době už nevídanou výměru.
Pokud vám tedy nesedí stísněné dispozice a chcete si užívat velkorysý otevřený prostor se zajímavým členěním, pak jste právě našli byt pro vás.

Chytrá dispozice ateliéru se skvěle doplňuje s chytrou domácností od LOXONE, která je v ceně. Luxusní ovládání chytrých světel, teploty či bezpečnostních funkcí Vám zjednoduší život. A díky chytře řízené ventilaci s rekuperací máte stále čerstvý vzduch i při zavřených oknech. Předokenní žaluzie, které jsou také součástí ceny, Vám zaručí soukromí i zdravý spánkový režim.

Vyberte si místo pro život v nejlepším developerském projektu v Brně.
Chytré byty jsou stále žádanější.
Zatímco staré, neúsporné byty ztrácejí hodnotu, váš byt v Edisonu bude na ceně jen získávat.

V každém bytě od nás dostanete v ceně:
+ SMART domácnost Loxone
+ iPad k ovládání bytu
+ vzduchotechniku s rekuperací
+ podlahové topení
+ letní přichlazování
+ předokenní žaluzie s automatickým ovládáním
+ svítidla připravená na SMART ovládání
+ prvotřídní standardy obkladů, povrchů a zařizovacích předmětů

POZOR: Dům je dokončený a zkolaudovaný: vidíte co kupujete a můžete se hned stěhovat!

Zbývá nám posledních pár bytů.
Necháte si tu příležitost utéct?

Parametry bytu

Cena
8 899 000 Kč /za nemovitost Spočítat hypotéku
Aktualizováno
12. 3. 2026
Adresa
Na Pískové cestě, Brno, Bohunice
ID
11202508
Stavba
Cihlová
Stav objektu
Novostavba
Patro
4. z 4
Vlastnictví
Osobní
Užitná plocha
60 m2
Třída energetické náročnosti
A - Mimořádně úsporná
Ukazatel energetické náročnosti
58 kWh/m2 za rok
Výtah
Bezbarierový přístup

Kontaktovat makléře

Realitní kancelář

Estarea

Libušina třída 826/23, Brno

Chystáte se prodat nemovitost?
Pomůžeme Vám!

Máte zájem o tento byt?

Tímto, v souladu s nařízením Evropského parlamentu a Rady (EU) 2016/679, v platném znění, prohlašuji, že mi je alespoň 16 let a uděluji tak svůj souhlas se zpracováním zadaných údajů (jméno, telefon, e-mail, ip adresa) společnosti B3 Technology, s.r.o., IČ: 07330600, se sídlem Novostavby 126/23, 435 11 Lom (správce dat), za účelem předání dotazu z tohoto formuláře Vámi vybranému inzerentovi a zpětného kontaktování mé osoby. Osobní údaje bude správce zpracovávat manuálně i automaticky přímo prostřednictvím svých zaměstnanců. Informace předané tímto formulářem budou uloženy v databázi správce maximálně po dobu 10 let. Odvolání souhlasu s uložením a zpracováním poskytnutých dat lze e-mailem na info@bydlisnami.cz. V případě podezření na neoprávněné použití Vámi poskytnutých údajů máte právo předat podnět k šetření Úřadu pro ochranu osobních údajů. Více informací
Chystáte se prodat nemovitost?
Pomůžeme Vám!

Inzerát si prohlédlo 36 lidí

Prodejce

Ing. Jan Veselý

Ing. Jan Veselý

Hlídací pes

Chcete dostávat emailem podobné nabídky prodeje bytů 2+kk v Brně?

Podobné nemovitosti