Prodej bytu 2+kk, Brno, Na pískové cestě, 47 m2

Na Pískové cestě, Brno, Bohunice

6 959 000 Kč /za nemovitost HYPOTÉKA od 31 103 Kč /za měsíc
Doporučené firmy v Brně

Informace k bytu

Hledáte klidné a moderní bydlení, které vás bude hýčkat?

Mrkněte na ateliér 202 v chytré novostavbě EDISON HOUSE.
Najdete ho v Brně, Bohunicích, nejrychleji rostoucí čtvrti s obrovským potenciálem rozvoje, díky špičkovým zaměstnavatelům.

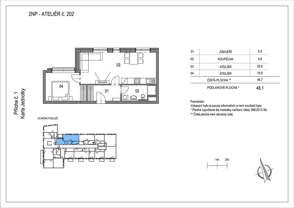
Ateliér 202 nabízí 48,1 m² prakticky navrženého prostoru, kde se každý metr využívá naplno.

V ceně ateliéru máte kompletní LOXONE SMART HOME systém, který umí například:
- chytrá ventilace udržuje ideální kvalitu a čistotu vzduchu
- automatické osvětlení reaguje na denní dobu - ráno pro lepší probuzení, večer pro kvalitní spánek
- předokenní žaluzie sledují polohu slunce
- chytré řízení teploty, které vám ohřeje byt, než dorazíte domů a šetří, když není třeba topit
- chytrý ventil, který vypne přívod vody, když vyteče pračka
- přístup do bytu přes PIN kód, který můžete časově omezit třeba pro návštěvu, či uklízečku

A starat se o vás bude spousta dalších funkcí, které šetří čas i energii a přizpůsobí se Vám pro pohodlný život.

Ovládání je snadné a přirozené – přes nástěnný iPad, appku nebo chytré vypínače.
LOXONE je suverénně nejrozšířenější systém se špičkovou podporou a rozšiřováním funkcí do budoucna.

EDISON HOUSE je novostavba ve standardu PENB A – mimořádně úsporná budova s levným provozem, stabilní hodnotou a technologiemi, které fungují automaticky.
Zatímco tradiční "hloupé" byty s horším energetickým standardem v budoucnu nebude nikdo chtít, byty vybavené chytrou domácností porostou na ceně.

EDISON je dostavěný a zkolaudovaný: vidíte tak, jakou kvalitu stavby kupujete a navíc se můžete hned stěhovat.
Má ale jednu nevýhodu: chytré byty rychle mizí.

Tohle je náš poslední byt s cenou pod 7 MKč.
Ozvěte se, než Vám tahle příležitost uteče.

Parametry bytu

Cena
6 959 000 Kč /za nemovitost Spočítat hypotéku
Aktualizováno
12. 3. 2026
Adresa
Na Pískové cestě, Brno, Bohunice
ID
11202501
Stavba
Cihlová
Stav objektu
Novostavba
Patro
2. z 4
Vybaveno
Ne
Vlastnictví
Osobní
Užitná plocha
47 m2
Třída energetické náročnosti
A - Mimořádně úsporná
Ukazatel energetické náročnosti
58 kWh/m2 za rok
Výtah
Bezbarierový přístup

Kontaktovat makléře

Realitní kancelář

Estarea

Libušina třída 826/23, Brno

Chystáte se prodat nemovitost?
Pomůžeme Vám!

Máte zájem o tento byt?

Tímto, v souladu s nařízením Evropského parlamentu a Rady (EU) 2016/679, v platném znění, prohlašuji, že mi je alespoň 16 let a uděluji tak svůj souhlas se zpracováním zadaných údajů (jméno, telefon, e-mail, ip adresa) společnosti B3 Technology, s.r.o., IČ: 07330600, se sídlem Novostavby 126/23, 435 11 Lom (správce dat), za účelem předání dotazu z tohoto formuláře Vámi vybranému inzerentovi a zpětného kontaktování mé osoby. Osobní údaje bude správce zpracovávat manuálně i automaticky přímo prostřednictvím svých zaměstnanců. Informace předané tímto formulářem budou uloženy v databázi správce maximálně po dobu 10 let. Odvolání souhlasu s uložením a zpracováním poskytnutých dat lze e-mailem na info@bydlisnami.cz. V případě podezření na neoprávněné použití Vámi poskytnutých údajů máte právo předat podnět k šetření Úřadu pro ochranu osobních údajů. Více informací
Chystáte se prodat nemovitost?
Pomůžeme Vám!

Inzerát si prohlédlo 33 lidí

Prodejce

Ing. Jan Veselý

Ing. Jan Veselý

Hlídací pes

Chcete dostávat emailem podobné nabídky prodeje bytů 2+kk v Brně?

Podobné nemovitosti