Prodej bytu 2+kk, Letovice, Komenského, 57 m2 (ID: 2477565)

Komenského, Letovice

4 990 000 Kč /za nemovitost HYPOTÉKA od 22 302 Kč /za měsíc
Doporučené firmy v Letovicích

Informace k bytu

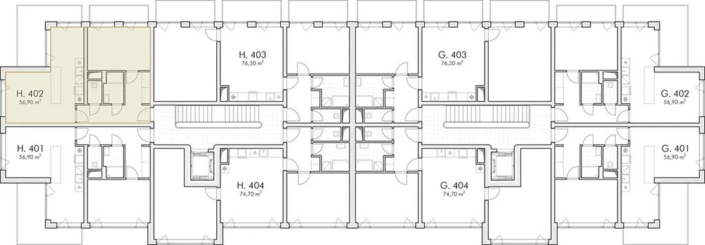
Nabízíme k prodeji prosluněný byt 2+kk s krásnými výhledy do krajiny a hned dvěma prostornými balkony, který se nachází ve 4. nadzemním podlaží (nejvyšším) bytového domu v projektu Rezidence Zlatá Pole.
Byt označený jako H.402 bude připraven k nastěhování ještě letos, takže si můžete užít nové bydlení bez čekání.

Byt nabízí praktické a vzdušné řešení s dostatkem denního světla díky jižní a jihozápadní orientaci oken.
Hlavní obytný prostor tvoří světlý obývací pokoj s přípravou pro kuchyňskou linku, místem pro jídelní stůl a velkými balkonovými dveřmi, které vedou na rohový balkon s krásným výhledem.
Samostatná ložnice o velikosti více než 13 m² má vlastní soukromý balkon, ideální pro ranní kávu nebo večerní odpočinek.
Koupelna je vybavena umyvadlem a prodlouženým sprchovým koutem, toaleta je samostatná.
V domě je výtah a kočárkárna. K bytu je možné dokoupit sklepní kóji a venkovní parkovací stání.

Nové bytové domy v rámci druhé etapy projektu Rezidence Zlatá Pole navazují na úspěšně dokončenou první etapu a budou dokončeny a předány již v závěru letošního roku.
Byty jsou realizovány ve stejném kvalitním standardu:

- hliníková okna s izolačním trojsklem,
- vodovodní podlahové vytápění,
- zelené střechy přispívající k lepšímu mikroklimatu,
- kvalitní komunikační jádro,
- energetická třída B – úsporný a komfortní provoz.


Projekt Rezidence Zlatá Pole se nachází v klidné a strategicky umístěné části Letovic.
Do centra města se dostanete pěšky za 15 minut, autem za 3 minuty.
V bezprostředním okolí naleznete veškerou občanskou vybavenost – základní a mateřskou školu přímo naproti domu, potraviny, ordinaci lékaře, zámecký park i další služby.

Parametry bytu

Cena
4 990 000 Kč /za nemovitost Spočítat hypotéku
Aktualizováno
17. 11. 2025
Adresa
Komenského, Letovice
ID
H.402
Stavba
Smíšená
Stav objektu
Ve výstavbě
Patro
4. z 4
Lokalita objektu
Klidná část obce
Vlastnictví
Osobní
Užitná plocha
57 m2
Třída energetické náročnosti
B - Velmi úsporná
Odpad
Veřejná kanalizace
Komunikace
Asfaltová
Telekomunikace
Internet
Doprava
Vlak, Silnice, MHD, Autobus
Voda
Vodovod
Topné těleso
Podlahové vytápění
Zdroj topení
Ústřední dálkové
Zdroj teplé vody
Centrální dálkový ohřev
Balkon
Výtah
Bezbarierový přístup

Kontaktovat makléře

Máte zájem o tento byt?

Tímto, v souladu s nařízením Evropského parlamentu a Rady (EU) 2016/679, v platném znění, prohlašuji, že mi je alespoň 16 let a uděluji tak svůj souhlas se zpracováním zadaných údajů (jméno, telefon, e-mail, ip adresa) společnosti B3 Technology, s.r.o., IČ: 07330600, se sídlem Novostavby 126/23, 435 11 Lom (správce dat), za účelem předání dotazu z tohoto formuláře Vámi vybranému inzerentovi a zpětného kontaktování mé osoby. Osobní údaje bude správce zpracovávat manuálně i automaticky přímo prostřednictvím svých zaměstnanců. Informace předané tímto formulářem budou uloženy v databázi správce maximálně po dobu 10 let. Odvolání souhlasu s uložením a zpracováním poskytnutých dat lze e-mailem na info@bydlisnami.cz. V případě podezření na neoprávněné použití Vámi poskytnutých údajů máte právo předat podnět k šetření Úřadu pro ochranu osobních údajů. Více informací
Chystáte se prodat nemovitost?
Pomůžeme Vám!

Inzerát si prohlédlo 1 lidí

Prodejce

Veronika Tesařová

Veronika Tesařová

Hlídací pes

Chcete dostávat emailem podobné nabídky prodeje bytů 2+kk v Letovicích?

Podobné nemovitosti