Prodej rodinného domu, Staňkovice, 76 m2

Staňkovice, Smilovice

2 900 000 Kč /za nemovitost HYPOTÉKA od 12 961 Kč /za měsíc
Doporučené firmy v Staňkovicích

Informace k domu

Dobrý den,

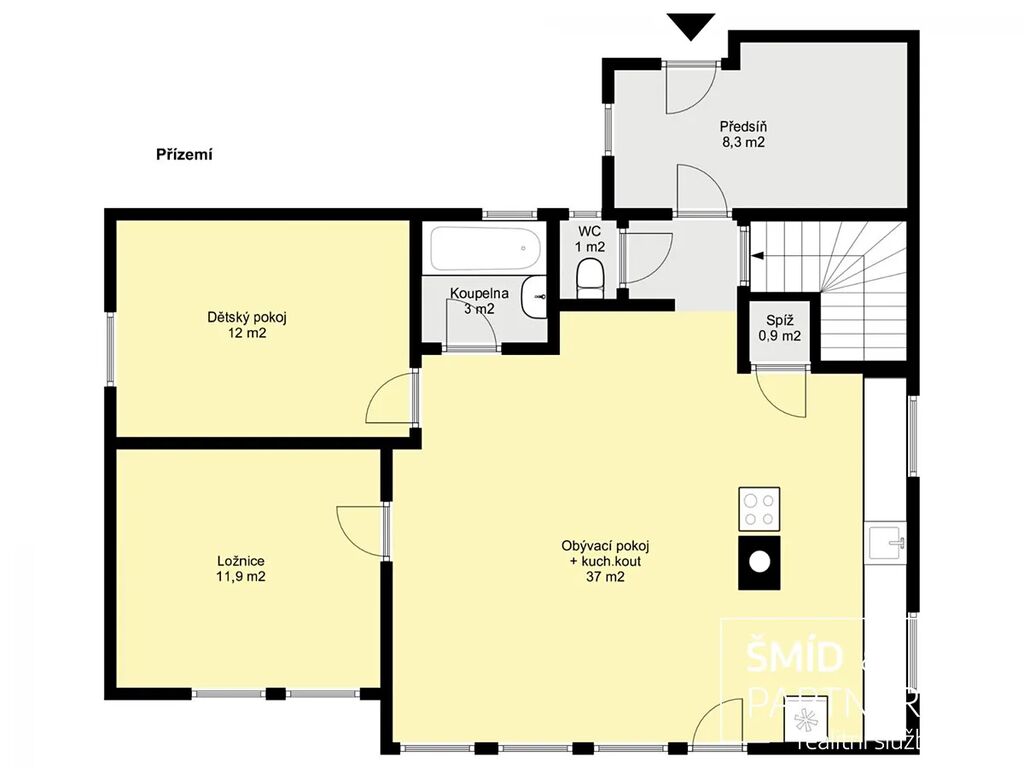
nabízíme k prodeji rodinný dům, dřevostavbu o užitné ploše 76 m2 s prostorným sklepem 57 m2 a pozemkem o výměře 802 m2 v obci Smilovice, okres Kutná Hora. Dispozice 3+kk nabízí pohodlné bydlení a sklepní prostory umožňují rozšíření o další obytné místnosti.

Dům je vytápěn kotlem na tuhá paliva, voda je čerpána z vydatné studny a odpad je sveden do jímky. Pro úsporný provoz slouží také nádrž na dešťovou vodu. K prodeji bude připraveno povolení k připojení na obecní vodovod. Na pozemku jsou již osazeny sloupky pro budoucí jihovýchodní terasu a v rámci prodeje bude vybudován i nový pozvolný sjezd z pozemku.

Pozemek o velikosti 802 m2 poskytuje dostatek prostoru pro zahradu, relaxaci i další případné úpravy. Dům je vhodný jak k trvalému bydlení, tak i k rekreaci díky klidnému prostředí a dobré dostupnosti služeb v nedalekých Uhlířských Janovicích, Sázavě, Ratajích nad Sázavou, nebo třeba Kutné Hoře.

Nemovitost lze financovat hypotečním úvěrem, s nímž vám rádi pomůžeme.
Uvedené m2 jsou orientační.

Pokud Vás nabídka zaujala, neváhejte mě kontaktovat.

Parametry domu

Cena
2 900 000 Kč /za nemovitost Spočítat hypotéku
Aktualizováno
17. 11. 2025
Adresa
Staňkovice, Smilovice
ID
966
Stavba
Dřevěná
Stav objektu
Dobrý
Vybaveno
Ano
Druh objektu
Samostatný
Užitná plocha
76 m2
Zastavěná plocha
91 m2
Podlahová plocha
133 m2
Plocha pozemku
802 m2
Plocha zahrady
711 m2
Elektřina
230V
Odpad
Jímka
Topení
Lokální tuhá paliva
Komunikace
Asfaltová
Doprava
Silnice, Autobus
Voda
Studna, Retenční nádrž na dešt’ovou vodu
Topné těleso
Radiátory
Zdroj topení
Kotel na tuhá paliva
Zdroj teplé vody
Kotel na tuhá paliva
Sklep
Bezbarierový přístup

Kontaktovat makléře

Máte zájem o tento dům?

Tímto, v souladu s nařízením Evropského parlamentu a Rady (EU) 2016/679, v platném znění, prohlašuji, že mi je alespoň 16 let a uděluji tak svůj souhlas se zpracováním zadaných údajů (jméno, telefon, e-mail, ip adresa) společnosti B3 Technology, s.r.o., IČ: 07330600, se sídlem Novostavby 126/23, 435 11 Lom (správce dat), za účelem předání dotazu z tohoto formuláře Vámi vybranému inzerentovi a zpětného kontaktování mé osoby. Osobní údaje bude správce zpracovávat manuálně i automaticky přímo prostřednictvím svých zaměstnanců. Informace předané tímto formulářem budou uloženy v databázi správce maximálně po dobu 10 let. Odvolání souhlasu s uložením a zpracováním poskytnutých dat lze e-mailem na info@bydlisnami.cz. V případě podezření na neoprávněné použití Vámi poskytnutých údajů máte právo předat podnět k šetření Úřadu pro ochranu osobních údajů. Více informací
Chystáte se prodat nemovitost?
Pomůžeme Vám!

Inzerát si prohlédlo 1 lidí

Prodejce

Bc. Ondřej Titze

Bc. Ondřej Titze

Hlídací pes

Chcete dostávat emailem podobné nabídky prodeje rodinných domů v Staňkovicích (okr. Kutná Hora)?

Podobné nemovitosti