Prodej bytu 2+1, Most, Josefa Suka, 52 m2

Josefa Suka, Most

1 499 000 Kč /za nemovitost HYPOTÉKA od 6 700 Kč /za měsíc
Doporučené firmy v Mostě

Okna a dveře

Rekonstrukce

Zámečnické práce

Informace k bytu

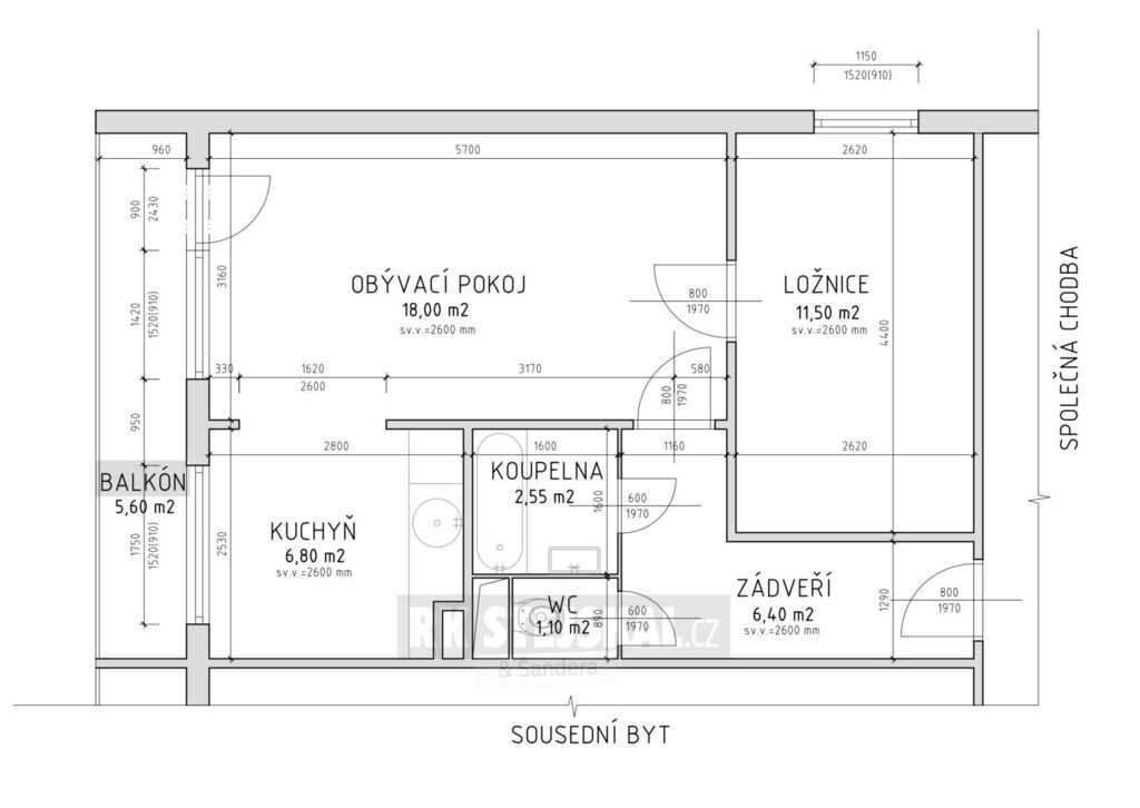
Nabízíme vám ke koupi prostorný byt dispozice 2+1 o celkové výměře 58 m² v ulici Josefa Suka ve městě Most. Byt se nachází v 10. patře bytového domu, který prošel kompletní rekonstrukcí klíčových prvků a je určen k rekonstrukci dle svým představ. Součástí jednotky je také praktický příruční sklep (cca 4 m²) na patře bytu a sklepní kóje v suterénu budovy.
Dispozice a vybavení:
Byt je v původním stavu a je ideální pro rekonstrukci dle vlastních představ, protože všechny příčky jsou nenosné a dispozici lze upravit zcela flexibilně. Po vstupu do bytu vás uvítá prostorná chodba ve tvaru L, ze které je přístup do koupelny a samostatného WC (umakartové jádro). Z chodby se dále dostanete do prostorného obývacího pokoje, který nabízí dostatek místa pro vytvoření komfortní obývací části. Dále zde najdete vstup do samostatného pokoje a zároveň do kuchyně, která je s obývákem propojena.
Z obývacího pokoje je také přístup na balkon, který poskytuje dostatek prostoru pro příjemné venkovní posezení a je vybaven sítí proti ptactvu. Momentálně jsou stěny bytu opatřeny tapetami a podlahy pokryté linem. K bytu dále náleží příruční sklep přímo na patře, ideální pro věci, které potřebujete mít po ruce, a také sklepní koje pro další skladování.
Rekonstrukce bytového domu:
Dům prošel od roku 2012 kompletní rekonstrukcí veškerých klíčových prvků- výměna oken, zateplení fasády, rekonstrukce vertikálních a vodorovných rozvodů, instalace nových výtahů a rekonstrukce střechy. Díky tomu je stavba v té nejlepší kondici, o čemž také svědčí energetická třída B.
Lokalita:
Ulice Josefa Suka v Mostě patří mezi nejvyhledávanější části města — nabízí skvělou dostupnost veškeré občanské vybavenosti: obchody, školy, služby i MHD máte téměř na dosah ruky. Zároveň zde panuje klid a sousedství je obklopené zelení. Velkou předností je nedaleký městský park Šibeník, ideální pro příjemné procházky, relaxaci nebo sportování v přírodě. Touto kombinací pohodlí městského života a klidu přírody je tato lokalita atraktivní pro rodiny i jednotlivce, kteří hledají kvalitní, bezpečné a vyvážené bydlení.
Byt svými parametry nabízí ideální prostor pro vytvoření vlastního bydlení přesně podle vašich představ a zároveň představuje výbornou investiční příležitost díky strategické poloze a možnosti flexibilní úpravy dispozice.
Pro prohlídku či více informací nás neváhejte kontaktovat.

Parametry bytu

Cena
1 499 000 Kč /za nemovitost Spočítat hypotéku
Aktualizováno
18. 11. 2025
Adresa
Josefa Suka, Most
ID
06331
Stavba
Panelová
Stav objektu
Před rekonstrukcí
Patro
10.
Typ objektu
Patrový
Lokalita objektu
Rušná část obce
Vlastnictví
Osobní
Užitná plocha
52 m2
Podlahová plocha
58 m2
Třída energetické náročnosti
B - Velmi úsporná
Plyn
Plynovod
Odpad
Veřejná kanalizace
Topení
Ústřední dálkové
Komunikace
Asfaltová
Doprava
Silnice, MHD
Voda
Vodovod
Topné těleso
Radiátory
Zdroj topení
Centrální dálkové
Zdroj teplé vody
Centrální dálkový ohřev
Balkon
Sklep
Výtah
Bezbarierový přístup

Kontaktovat makléře

Realitní kancelář

Logo RK Stejskal & Šandera

RK Stejskal & Šandera

Krajinská 17, České Budějovice

Chystáte se prodat nemovitost?
Pomůžeme Vám!

Máte zájem o tento byt?

Tímto, v souladu s nařízením Evropského parlamentu a Rady (EU) 2016/679, v platném znění, prohlašuji, že mi je alespoň 16 let a uděluji tak svůj souhlas se zpracováním zadaných údajů (jméno, telefon, e-mail, ip adresa) společnosti B3 Technology, s.r.o., IČ: 07330600, se sídlem Novostavby 126/23, 435 11 Lom (správce dat), za účelem předání dotazu z tohoto formuláře Vámi vybranému inzerentovi a zpětného kontaktování mé osoby. Osobní údaje bude správce zpracovávat manuálně i automaticky přímo prostřednictvím svých zaměstnanců. Informace předané tímto formulářem budou uloženy v databázi správce maximálně po dobu 10 let. Odvolání souhlasu s uložením a zpracováním poskytnutých dat lze e-mailem na info@bydlisnami.cz. V případě podezření na neoprávněné použití Vámi poskytnutých údajů máte právo předat podnět k šetření Úřadu pro ochranu osobních údajů. Více informací
Chystáte se prodat nemovitost?
Pomůžeme Vám!

Inzerát si prohlédlo 1 lidí

Prodejce

Bc. Vojtěch Fišer

Bc. Vojtěch Fišer

Hlídací pes

Chcete dostávat emailem podobné nabídky prodeje bytů 2+1 v Mostě?

Podobné nemovitosti