Pronájem bytu 2+1, Praha - Michle, Jihlavská, 53 m2

Jihlavská, Michle - Praha 4

18 900 Kč /za měsíc Získejte výhodnou HYPOTÉKU

(vratná jistota, náklady na bydlení 5 900 Kč, poplatek za podnájem)

Doporučené firmy v Praze 4

Stěhovací služby

Výkup a prodej starého nábytku

Informace k bytu

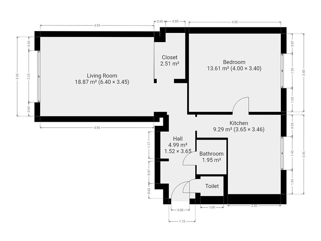
K dlouhodobému podnájmu nabízíme kompletně zařízený byt o dispozici 2+1, který se nachází v pátém patře cihlového domu s výtahem v blízkosti metra Budějovická. Byt o celkové výměře 53 m2 má neprůchozí ložnice, v ceně je sklepní kóje.

Lokalita nabízí výbornou dostupnost do centra města. Stanice metra C Budějovická je od bytu pouhých 8 minut chůze. V blízkosti metra se nachází obchodní centrum DBK, Lidl, poliklinika, městský úřad a další občanská vybavenost. Přibližně ve stejné vzdálenosti se nachází Brumlovka, kde jsou další obchody, restaurace, fitness centrum s bazénem a park. I přes perfektní občanskou vybavenost nechybí této lokalitě zeleň. V blízkosti se nachází například Lesopark Habrovka nebo Michelský les.

Byt je ihned k nastěhování.

Uvádíme energetickou náročnost G, jelikož nemáme doloženo PENB.

Byt pronajímá Ideální nájemce - profesionální správce nemovitostí. S námi budete mít po ruce klientskou podporu 24/7, spolehlivé pojištění a díky klientskému portálu můžete mít kdykoli přehled o platbách a najdete zde i praktický formulář pro řešení požadavků. Pojďte bydlet s námi!

Parametry bytu

Cena
18 900 Kč /za měsíc
Poznámka k ceně
vratná jistota, náklady na bydlení 5 900 Kč, poplatek za podnájem
Aktualizováno
19. 11. 2025
Adresa
Jihlavská, Michle - Praha 4
ID
N6961
Stavba
Cihlová
Stav objektu
Velmi dobrý
Patro
5. z 5
Vybaveno
Ano
Typ objektu
Patrový
Lokalita objektu
Klidná část obce
Vlastnictví
Osobní
Užitná plocha
53 m2
Podlahová plocha
53 m2
Elektřina
230V
Plyn
Plynovod
Topení
Ústřední dálkové
Telekomunikace
Telefon, Internet
Doprava
Vlak, Dálnice, Silnice, MHD, Autobus
Voda
Vodovod
Sklep
Výtah

Kontaktovat makléře

Máte zájem o tento byt?

Tímto, v souladu s nařízením Evropského parlamentu a Rady (EU) 2016/679, v platném znění, prohlašuji, že mi je alespoň 16 let a uděluji tak svůj souhlas se zpracováním zadaných údajů (jméno, telefon, e-mail, ip adresa) společnosti B3 Technology, s.r.o., IČ: 07330600, se sídlem Novostavby 126/23, 435 11 Lom (správce dat), za účelem předání dotazu z tohoto formuláře Vámi vybranému inzerentovi a zpětného kontaktování mé osoby. Osobní údaje bude správce zpracovávat manuálně i automaticky přímo prostřednictvím svých zaměstnanců. Informace předané tímto formulářem budou uloženy v databázi správce maximálně po dobu 10 let. Odvolání souhlasu s uložením a zpracováním poskytnutých dat lze e-mailem na info@bydlisnami.cz. V případě podezření na neoprávněné použití Vámi poskytnutých údajů máte právo předat podnět k šetření Úřadu pro ochranu osobních údajů. Více informací
Chystáte se prodat nemovitost?
Pomůžeme Vám!

Inzerát si prohlédlo 2 lidí

Prodejce

Miloslava Kačerová

Miloslava Kačerová

Hlídací pes

Chcete dostávat emailem podobné nabídky pronájmu bytů 2+1 v Praze 4?

Podobné nemovitosti