Prodej rodinného domu, Dublovice, 750 m2 (ID: 2479963)

Dublovice, Zvírotice

Cena na vyžádání /za nemovitost Získejte výhodnou HYPOTÉKU
Doporučené firmy v Dublovicích

Revize elektrických zařízení

Informace k domu

Na břehu řeky Vltavy, v srdci klidné a zelené středočeské krajiny, stojí architektonicky výjimečná vila, která spojuje severskou eleganci s českým smyslem pro prostor, světlo a pohodlí.
Navržený renomovaným finským studiem HONKATALOT, představuje tento dům dokonalou kombinaci přírodních materiálů, špičkové kvality a nadčasového designu, který přirozeně splývá s okolní přírodou. Je to místo, kde se luxus neokázale potkává s harmonií – ideální domov pro ty, kteří hledají klid, soukromí a životní styl s duší.

Společnost Protsenko & Svoboda vám v zastoupení majitele nabízí tuto výjimečnou vilu o užitné ploše 750 m², která se rozkládá na pozemku o velikosti 2 400 m² s pečlivě udržovanou zahradou a přístupem k řece. Dům má tři podlaží a je koncipován tak, aby poskytoval maximální soukromí, pohodlí a prostor pro rodinu i hosty.

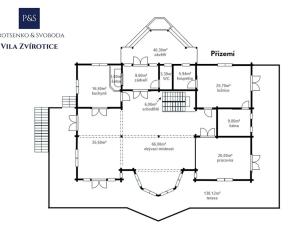
V přízemí se nachází prostorný obývací pokoj s výškou stropu pět metrů a rozsáhlými panoramatickými okny, která otevírají dechberoucí výhledy do zeleně.
Na obývací část navazuje elegantní kuchyně s jídelnou a přímým vstupem na terasu s posezením.
Na tomto podlaží se dále nachází ložnice pro hosty, koupelna a technické zázemí.
Horní patro je určeno pro soukromou zónu majitelů – hlavní ložnice s vlastní koupelnou, šatnou a terasou orientovanou k řece, doplněná o dvě další ložnice s koupelnami, které poskytují naprosté soukromí i komfort.

Suterén tvoří luxusní wellness zóna s vyhřívaným bazénem, saunou, odpočinkovou místností, barem a místností s kulečníkem – ideální místo pro relaxaci i společenské chvíle.
Součástí této úrovně je také garáž pro dva vozy, technická místnost bazénu a kotelna.

Vila je postavena v nejvyšším standardu s důrazem na energetickou efektivitu a komfort. Disponuje tepelným čerpadlem, podlahovým vytápěním, hliníkovými okny s trojskly, kvalitní izolací a moderním zabezpečovacím systémem. Každá místnost je vybavená klimatizační jednotkou.
Díky těmto řešením nabízí dům stabilní vnitřní klima, nízké provozní náklady a dlouhodobou udržitelnost.

Rozsáhlý pozemek o výměře 2 400 m² nabízí naprosté soukromí, pečlivě udržovanou zahradu a přímý přístup k řece.
Na břehu se nachází soukromý přístav a lodní domek – ideální pro milovníky vody, paddleboardu nebo malých lodí.
Terasové posezení, letní kuchyně a travnaté plochy poskytují prostor pro rodinný relax i společenské akce.

Místo kombinuje výjimečný klid a vynikající dostupnost – Praha je vzdálena pouze 60 minut po dálnici D4.

V souladu s legislativními požadavky, které nás nutí v případě absenci energetického štítku uvádět třídu G, dočasně uvádíme energetickou třídu G.

Při spolupráci s naší realitní kanceláří získáte navíc zdarma:
osobní konzultační a právní servis
jazykovou podporu (česky, anglicky, francouzsky, italsky)
asistenci při stěhování a drobné technické úpravy
daňové poradenství a analýzy trhu
Těšíme se na prohlídkách!

Parametry domu

Cena
Cena na vyžádání Spočítat hypotéku
Aktualizováno
21. 11. 2025
Adresa
Dublovice, Zvírotice
ID
D.STČ.ZVR.1
Stavba
Smíšená
Stav objektu
Velmi dobrý
Užitná plocha
750 m2
Plocha pozemku
2400 m2
Garáž
Sklep
Bazén

Kontaktovat makléře

Máte zájem o tento dům?

Tímto, v souladu s nařízením Evropského parlamentu a Rady (EU) 2016/679, v platném znění, prohlašuji, že mi je alespoň 16 let a uděluji tak svůj souhlas se zpracováním zadaných údajů (jméno, telefon, e-mail, ip adresa) společnosti B3 Technology, s.r.o., IČ: 07330600, se sídlem Novostavby 126/23, 435 11 Lom (správce dat), za účelem předání dotazu z tohoto formuláře Vámi vybranému inzerentovi a zpětného kontaktování mé osoby. Osobní údaje bude správce zpracovávat manuálně i automaticky přímo prostřednictvím svých zaměstnanců. Informace předané tímto formulářem budou uloženy v databázi správce maximálně po dobu 10 let. Odvolání souhlasu s uložením a zpracováním poskytnutých dat lze e-mailem na info@bydlisnami.cz. V případě podezření na neoprávněné použití Vámi poskytnutých údajů máte právo předat podnět k šetření Úřadu pro ochranu osobních údajů. Více informací
Chystáte se prodat nemovitost?
Pomůžeme Vám!

Inzerát si prohlédlo 2 lidí

Prodejce

Anastázie Panfilová

Anastázie Panfilová

Hlídací pes

Chcete dostávat emailem podobné nabídky prodeje rodinných domů v Dublovicích?

Podobné nemovitosti