Prodej bytu 3+1, Růžová, 77 m2 (ID: 2481475)

Růžová

2 900 000 Kč /za nemovitost HYPOTÉKA od 12 961 Kč /za měsíc

(vč.právního servisu)

Doporučené firmy v Růžové

Okna a dveře

Rekonstrukce

Zámečnické práce

Informace k bytu

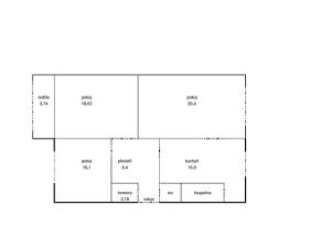
Prodej prostorného bytu 3+1 s lodžií, 77 m² – Růžová u Děčína
Hledáte klidné bydlení v krásné přírodě Českého Švýcarska ? Nabízíme ke koupi velmi světlý a prostorný byt 3+1 o výměře 77 m², nacházející se v 1. patře udržovaného nízkopodlažního domu v klidné části obce Růžová, jen pár minut od Děčína, na dosah národního parku České Švýcarsko. Součástí bytu je prosklená lodžie, která nabízí další plnohodnotný prostor využitelný jako relaxační kout nebo zimní zahradu. K bytu náleží také velký sklep a pohodlné parkování přímo před domem. Dispozice a výhody: celková plocha: 77 m², 3+1 s lodžií,1. patro, k dispozici půdorys bytu pro lepší představu. Nízké měsíční náklady: 2 700 Kč + elektřina, klidná a bezpečná lokalita, krásná okolní příroda – ideální pro turistiku, cyklistiku a relaxaci, vhodné pro trvalé bydlení i rekreaci.
Vybavenost a možnosti v okolí: obchod, školka a restaurace v obci, zastávka autobusu pár minut pěšky – dobrá dostupnost do Děčína, blízkost Pravčické brány, soutěsek a dalších atraktivních výletních cílů, Děčín (10 min autem) , kde je kompletní občanská vybavenost, školy, nemocnice, kultura, možnost houbaření, výletů i zimních sportů v Lužických horách a Labských pískovcích.
Byt je ideální pro ty, kdo hledají bydlení obklopené přírodou, a přitom v dosahu města. Skvělá volba i jako investice pro pronájem nebo rekreační využití, oblast je celoročně vyhledávaná turisty z Česka i zahraničí
V případě zájmu mě neváhejte kontaktovat pro více informací či domluvení prohlídky.
Cena k jednání.

Parametry bytu

Cena
2 900 000 Kč /za nemovitost Spočítat hypotéku
Poznámka k ceně
vč.právního servisu
Náklady na bydlení
2700
Aktualizováno
21. 11. 2025
Adresa
Růžová
Stavba
Panelová
Stav objektu
Dobrý
Patro
1.
Vybaveno
Částečně
Lokalita objektu
Klidná část obce
Vlastnictví
Osobní
Užitná plocha
77 m2
Zastavěná plocha
77 m2
Třída energetické náročnosti
G - Mimořádně nehospodárná
Elektřina
230V
Voda
Vodovod
Sklep
Lodžie

Kontaktovat makléře

Máte zájem o tento byt?

Tímto, v souladu s nařízením Evropského parlamentu a Rady (EU) 2016/679, v platném znění, prohlašuji, že mi je alespoň 16 let a uděluji tak svůj souhlas se zpracováním zadaných údajů (jméno, telefon, e-mail, ip adresa) společnosti B3 Technology, s.r.o., IČ: 07330600, se sídlem Novostavby 126/23, 435 11 Lom (správce dat), za účelem předání dotazu z tohoto formuláře Vámi vybranému inzerentovi a zpětného kontaktování mé osoby. Osobní údaje bude správce zpracovávat manuálně i automaticky přímo prostřednictvím svých zaměstnanců. Informace předané tímto formulářem budou uloženy v databázi správce maximálně po dobu 10 let. Odvolání souhlasu s uložením a zpracováním poskytnutých dat lze e-mailem na info@bydlisnami.cz. V případě podezření na neoprávněné použití Vámi poskytnutých údajů máte právo předat podnět k šetření Úřadu pro ochranu osobních údajů. Více informací
Chystáte se prodat nemovitost?
Pomůžeme Vám!

Inzerát si prohlédlo 2 lidí

Prodejce

Marcela Brejšová

Marcela Brejšová

Hlídací pes

Chcete dostávat emailem podobné nabídky prodeje bytů 3+1 v Růžové?

Podobné nemovitosti