Pronájem ubytování, Uherské Hradiště, náměstí Republiky, 92 m2

náměstí Republiky, Uherské Hradiště

Cena na vyžádání /za měsíc Získejte výhodnou HYPOTÉKU

(cena k jednání, + zálohy na energie)

Doporučené firmy v Uherském Hradišti

Informace k nemovitosti

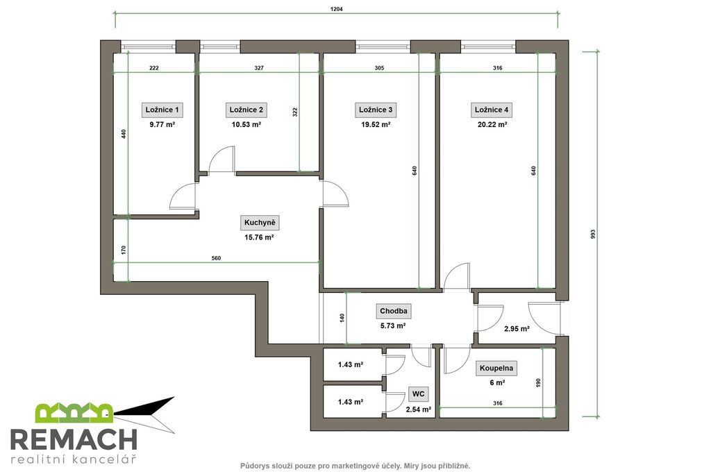
Zrekonstruované prostory k ubytování pro více osob jsou vybaveny kuchyňskou linkou s myčkou a dvěma lednicemi, troubou a dvěma elektrickými vařiči. Ubytování ve čtyřech neprůchozích pokojí, celkem je zde 13 postelí, šatní skříně a komody. Koupelna disponuje dvěma sprchovými kouty se dvěma umyvadly. Toaleta má dvě WC a umyvadlo. Vedle v budově se nachází obchod Hruška a pivnice. Parkovat je možno přímo u budovy.

Parametry nemovitosti

Cena
Cena na vyžádání
Poznámka k ceně
cena k jednání, + zálohy na energie
Aktualizováno
21. 11. 2025
Adresa
náměstí Republiky, Uherské Hradiště
ID
03389
Stavba
Cihlová
Stav objektu
Po rekonstrukci
Patro
1. z 3
Vybaveno
Ano
Typ objektu
Přízemní
Druh objektu
Samostatný
Užitná plocha
92 m2
Třída energetické náročnosti
G - Mimořádně nehospodárná
Elektřina
230V
Odpad
Veřejná kanalizace
Komunikace
Betonová, Asfaltová
Telekomunikace
Internet
Doprava
Vlak, Dálnice, Silnice, MHD, Autobus
Voda
Vodovod
Bezbarierový přístup

Kontaktovat makléře

Realitní kancelář

Logo REMACH s.r.o.

REMACH s.r.o.

Palackého náměstí 175, Uherské Hradiště

Chystáte se prodat nemovitost?
Pomůžeme Vám!

Máte zájem o tuto nemovistost?

Tímto, v souladu s nařízením Evropského parlamentu a Rady (EU) 2016/679, v platném znění, prohlašuji, že mi je alespoň 16 let a uděluji tak svůj souhlas se zpracováním zadaných údajů (jméno, telefon, e-mail, ip adresa) společnosti B3 Technology, s.r.o., IČ: 07330600, se sídlem Novostavby 126/23, 435 11 Lom (správce dat), za účelem předání dotazu z tohoto formuláře Vámi vybranému inzerentovi a zpětného kontaktování mé osoby. Osobní údaje bude správce zpracovávat manuálně i automaticky přímo prostřednictvím svých zaměstnanců. Informace předané tímto formulářem budou uloženy v databázi správce maximálně po dobu 10 let. Odvolání souhlasu s uložením a zpracováním poskytnutých dat lze e-mailem na info@bydlisnami.cz. V případě podezření na neoprávněné použití Vámi poskytnutých údajů máte právo předat podnět k šetření Úřadu pro ochranu osobních údajů. Více informací
Chystáte se prodat nemovitost?
Pomůžeme Vám!

Inzerát si prohlédlo 23 lidí

Prodejce

Ing. Michal Macháček

Ing. Michal Macháček

Hlídací pes

Chcete dostávat emailem podobné nabídky pronájmu ubytování v Uherském Hradišti?

Podobné nemovitosti