Pronájem bytu 3+kk, Praha - Košíře, Starokošířská, 75 m2

Starokošířská, Praha, Košíře

34 000 Kč /za měsíc Získejte výhodnou HYPOTÉKU

(+ poplatky)

Doporučené firmy v Praze 5

Stěhovací služby

Výkup a prodej starého nábytku

Informace k bytu

Chcete bydlet v novém bytě? Hledáte zajímavé 3+kk blízko Anděla?

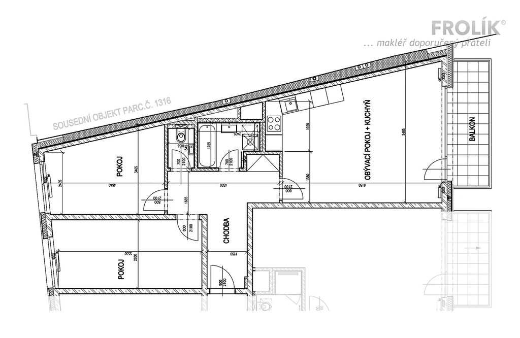
Ve 2. patře rezidenčního projektu z roku 2025 nazvaném "Starokošířská Avenue", v ulici Starokošířská v Praze 5 - Košířích, si můžete pronajmout byt 3+kk o výměře cca 75 m2 + cca 7 m2 balkon. Má lehce atypický půdorys a je celý laděný do krémových a hnědých barev. Takže jestli už se Vám omrzela bílá, třeba to bude zrovna ten pravý byt pro Vás!

Obývák s kuchyňským koutem je prostorný, má velkou prosklennou stěnu a balkon, který si svou velikostí nezadá s malou terasou! Je otočený na jih směrem k ulici Vrchlického. Vzhledem k umístění bytu a protějšímu domu tu nebude nikdy horko! Sousední dům totiž příjemně stíní a částečně i tlumí hluk z dopravy na ulici Vrchlického. V kuchyňském koutu najdete všechny spotřebiče: lednici s mrazákem, elektrickou troubu, indukční varnou desku, digestoř, mikrovlnku, myčku. Ložnice jsou tiché, otočené na sever do ulice Starokošířská. Do koupelny se Vám vejde pračka i sušička. Na vaně přibude oproti fotografiím ještě sprchová zástěna, nad umyvadlem zrcadlo s osvětlením a pod umyvadlem bude toaletní skříňka. Ostatní zařízení už musíte mít své.

Košíře jsou rychle se rozvíjející lokalita, s dobrou vybaveností a výbornou dostupností centra. Každý si tu najde své.

Kromě nájemného budete platit zálohy na služby (topení, voda, odpad, úklid a osvětlení domu, výtah atd.) v částce 4.500 Kč/měs. + zálohu na elektřinu v bytě 1.500 Kč/měs.. Majitel Vám vše 1x ročně vyúčtuje dle měřidel a skutečných spotřeb. Nájemné a zálohy se platí měsíčně předem, jistota je 1 nájemné včetně záloh, provize 1 nájemné.

Byt je ihned volný, připravený k dlouhodobému pronájmu.

PENB třída B.

Parametry bytu

Cena
34 000 Kč /za měsíc
Poznámka k ceně
+ poplatky
Náklady na bydlení
6 000
Aktualizováno
22. 11. 2025
Adresa
Starokošířská, Praha, Košíře
ID
RF 0564
Stavba
Cihlová
Stav objektu
Novostavba
Patro
3. z 7
Vybaveno
Ne
Lokalita objektu
Rušná část obce
Vlastnictví
Osobní
Užitná plocha
75 m2
Podlahová plocha
82 m2
Třída energetické náročnosti
B - Velmi úsporná
Ukazatel energetické náročnosti
99 kWh/m2 za rok
Elektřina
230V
Odpad
Veřejná kanalizace
Komunikace
Dlážděná, Asfaltová
Telekomunikace
Internet
Doprava
Silnice, MHD
Topné těleso
Radiátory
Zdroj topení
Centrální dálkové
Balkon
Garáž
Sklep
Výtah

Kontaktovat makléře

Máte zájem o tento byt?

Tímto, v souladu s nařízením Evropského parlamentu a Rady (EU) 2016/679, v platném znění, prohlašuji, že mi je alespoň 16 let a uděluji tak svůj souhlas se zpracováním zadaných údajů (jméno, telefon, e-mail, ip adresa) společnosti B3 Technology, s.r.o., IČ: 07330600, se sídlem Novostavby 126/23, 435 11 Lom (správce dat), za účelem předání dotazu z tohoto formuláře Vámi vybranému inzerentovi a zpětného kontaktování mé osoby. Osobní údaje bude správce zpracovávat manuálně i automaticky přímo prostřednictvím svých zaměstnanců. Informace předané tímto formulářem budou uloženy v databázi správce maximálně po dobu 10 let. Odvolání souhlasu s uložením a zpracováním poskytnutých dat lze e-mailem na info@bydlisnami.cz. V případě podezření na neoprávněné použití Vámi poskytnutých údajů máte právo předat podnět k šetření Úřadu pro ochranu osobních údajů. Více informací
Chystáte se prodat nemovitost?
Pomůžeme Vám!

Inzerát si prohlédlo 0 lidí

Prodejce

Robert Frolík

Robert Frolík

Hlídací pes

Chcete dostávat emailem podobné nabídky pronájmu bytů 3+kk v Praze 5?

Podobné nemovitosti