Pronájem bytu 3+kk, Praha - Prosek, Letňanská, 83 m2

Letňanská, Praha 9, Prosek

39 000 Kč /za měsíc Získejte výhodnou HYPOTÉKU
Doporučené firmy v Praze 9

Stěhovací služby

Výkup a prodej starého nábytku

Informace k bytu

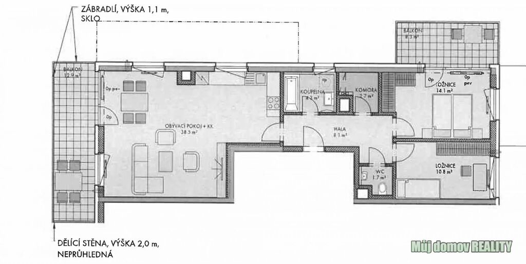
Pronájem bytu 3+kk, 83 m + 2 balkony, Praha 9 Prosek (ul. Návarovská)
Novostavba družstevní projekt Nad Krocínkou kompletně vybavený ihned k nastěhování

Nabízíme k dlouhodobému pronájmu zcela nový, prostorný a nadstandardně vybavený
byt 3+kk o velikosti 83 m se dvěma balkony (13 m a 8 m), umístěný ve 2.
podlaží moderního projektu Nad Krocínkou v žádané lokalitě Praha 9 Prosek.

Byt ještě nebyl obýván čeká na svého prvního nájemce.

Dispozice a vybavení bytové jednotky
Byt 3+kk 83 m + balkon 13 m + lodžie 8 m

Slunný obývací pokoj s kuchyňským koutem a vstupem na balkon
Dvě samostatné ložnice (jedna se vstupem na druhý balkon)
Prostorná předsíň s vestavěnou šatní sestavou
Moderní koupelna se sprchovým koutem a přípravou na pračku a sušičku
Samostatné WC
Nadstandardní provedení
Protipožární bezpečnostní dveře Sapeli, interiérové dveře Sapeli v provedení Wenge
Kuchyňská linka s ostrůvkem + spotřebiče MORA: indukce, myčka, digestoř, trouba, mikrovlnka
Designový dřez Franke z umělého kamene onyx
Lednice Siguro
2× nové velké zrcadlové vestavěné skříně

Koupelna:
velkoprostorové 90cm umyvadlo
topný žebřík
skleněný sprchový kout
Samostatné WC Laufen Rimless, baterie Hansgrohe
Optický internet až 1000 Mbit/s PODA, T-Mobile
Okna vybavena horizontálními žaluziemi

Byt je částečně zařízen další vybavení lze po dohodě doplnit.
V případě vlastního zařízení možnost upravit výši nájmu nebo kauce.

Občanská vybavenost v okolí
Lokalita Prosek patří mezi nejlépe vybavené pražské čtvrti:
V pěší vzdálenosti
Metro C Prosek / Střížkov (7 min)
Supermarket Billa, OC Prosek Point, restaurace, kavárny
Poliklinika Prosek, lékárny
Školy a školky, dětská hřiště
Městská knihovna, sportovní areály, fitness, tenis, bazén
Park Přátelství, Prosecké skály, Starý Prosek ideální na procházky

Dopravní dostupnost:
Metro C 7 min pěšky
Metro B 1 zastávka autobusem
Rychlé napojení na D8, D10 a Pražský okruh
Centrum Prahy cca 15 minut autem

Cena a podmínky:
Nájemné: 39 000 Kč / měsíc
Služby domu: 7 640 Kč / měsíc
Elektřina + internet: přepis na nájemce
Vratná kauce: 80 000 Kč
Provize RK: ano

Možnost pronájmu:
Garážové stání 2 500 Kč / měsíc
Sklepní komora 3 m 1 000 Kč / měsíc
Krátkodobé pronájmy nejsou možné.
Technické údaje
Energetická náročnost: Velmi úsporná
Rok kolaudace: 2025
Konstrukce: smíšená, novostavba
Podlaží: 2. z 5
Výtah, bezbariérový přístup
Optický internet, kabelová TV
K nastěhování: ihned

Kontakt na makléřku:
Můj domov REALITY s.r.o.
Lidiya Savynets realitní makléřka
WhatsApp / Viber / Telegram: @LidiyaSyvynets

Parametry bytu

Cena
39 000 Kč /za měsíc
Aktualizováno
23. 11. 2025
Adresa
Letňanská, Praha 9, Prosek
ID
1995
Stavba
Cihlová
Stav objektu
Novostavba
Patro
2. z 7
Vybaveno
Částečně
Typ objektu
Patrový
Vlastnictví
Družstevní
Užitná plocha
83 m2
Podlahová plocha
83 m2
Balkon
Sklep
Výtah
Bezbarierový přístup
Převod do OV
Parkování

Kontaktovat makléře

Máte zájem o tento byt?

Tímto, v souladu s nařízením Evropského parlamentu a Rady (EU) 2016/679, v platném znění, prohlašuji, že mi je alespoň 16 let a uděluji tak svůj souhlas se zpracováním zadaných údajů (jméno, telefon, e-mail, ip adresa) společnosti B3 Technology, s.r.o., IČ: 07330600, se sídlem Novostavby 126/23, 435 11 Lom (správce dat), za účelem předání dotazu z tohoto formuláře Vámi vybranému inzerentovi a zpětného kontaktování mé osoby. Osobní údaje bude správce zpracovávat manuálně i automaticky přímo prostřednictvím svých zaměstnanců. Informace předané tímto formulářem budou uloženy v databázi správce maximálně po dobu 10 let. Odvolání souhlasu s uložením a zpracováním poskytnutých dat lze e-mailem na info@bydlisnami.cz. V případě podezření na neoprávněné použití Vámi poskytnutých údajů máte právo předat podnět k šetření Úřadu pro ochranu osobních údajů. Více informací
Chystáte se prodat nemovitost?
Pomůžeme Vám!

Inzerát si prohlédlo 1 lidí

Prodejce

Lidiya Savynets

Lidiya Savynets

Hlídací pes

Chcete dostávat emailem podobné nabídky pronájmu bytů 3+kk v Praze 9?

Podobné nemovitosti