Prodej rodinného domu, Loza, 98 m2 (ID: 2482975)

Loza

6 980 000 Kč /za nemovitost HYPOTÉKA od 31 196 Kč /za měsíc

(včetně DPH, včetně poplatků, včetně provize, včetně právního servisu)

Doporučené firmy v Loze

Podlahy

Stěhovací služby

Informace k domu

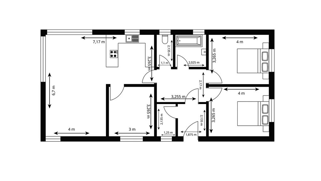
Prodej RD BUNGALOV užitná plocha 98.3 m², pozemek 750 m2 v obci LOZA , Plzeň - sever
CENA VČETNĚ POZEMKU

Nabídka rodinného bydlení dřevostavby BUNGALOVU , celkem 5 rodinných domů v projektu RODINNÉ DOMY LOZA :

5 bunglalovů velikosti 4 kk užitné plochy 98.3 m2 pozemky o velikosti 726 m2 - 762 m2
V projektu lze realizovat bungalov dvou tvarů - klasický a "L" různých velikostí užitných ploch dle výběru.

Součástí kupní ceny je:
- pozemek
- obvodové příčky, fasáda včetně zateplení
- vnitřní příčky, vnitřní omítky
- střecha krov dřevěná konstrukce, krytina taška, svody okapy
- podhledy
- okna s trojskly , dveře vstup plast s IZ trojsky
- obklady, dlažba , sanita a zařiz. předměty wc a koupelen - výběr dle standardů projektu
- podlahové topení celého, tep.čerpadlo Viessmann (voda - vzduch),
- vodovod, odpady městská kanalizace ,vodoměr, připojení domu pro kompletní provoz
- elektro, rozvody a kompletace , přípr.pro elekt. rozvody v kuchyní, zásuvka pračky a sušičky, slaboproud NP a 2. NP, zvonek,
- venk. úpravy pozemku srovnání terénu bez příprav osevu trávy
- oplocení pozemku
- přípojky energií voda a elektřina kompl. napojení domu a uvedení do provozu, retenční zádržná nádrž dešť. vody 6m3
- příjezdová komunikace – viz vizualizace situace projektu

- nadstandardní klientské změny jsou možné

Součástí kupní ceny není :
- dveře interiér, podlahová krytina lepený vinyl, dlažba, venkovní okap chodník - tyto položky lze realizovat dle standardů u kvalitních dodavatelů projektu za cenu 300.000 Kč, kdy je tedy cena domu pro kompletní dokončení " na klíč" 7.280.000 Kč včetně DPH

Dále v ceně domu není :
- kuchyňská linka, krb , krbová kamna , předokenní rolety a jejich příprava
– přípr. TV a dat. antény, koaxiál. kabel a TV zásuvky v obýv. pokoji a v pokojích
- zabezpečovací zařízení včetně přípravy, klimatizace, rekoperace a další případné technologie

- v nadstandardu je možné realizovat přípr. FVE panelů střecha, rekuperace, přípr. a realizaci bezpečnost. systému domu, přípr. pozemku pro osev trávy, realizace zahrady, osazení krbu/krb kamen, výrobu kuchyň linky vč. spotřebičů, klimatizaci, internet dat kabel, a mnoho dalšího

- na pozemku lze vybudovat park. stání či garáž, zastavěnost umožňuje využití pozemku pro další drobné stavby

Veškerá projektová dokumentace, detailní specifikace použitých materiálů a technologií, katalogy standardů podlah, sanity, obkladů a interiér dveří projektu k náhledu u realitní makléřky či na webu tohoto projektu.

Vizualizace a plánky půdorysů jsou orientační - zájemci budou předány přesné plány a specifikace.

Velmi nízké provozní náklady domu PENB třídy B - kompletní PENB bude aktualizovat v roce 2026 a bude předán při podpisu smluvní dokumentace. Předpokládáme nižší číslo energetické spotřeby.

Kouzelná krajina okolních lesů a přírody, cyklostezky a možnosti sport aktivit i relaxace, blízkost veškeré občan vybavenosti.

Dojezd města Plzně cca 15 min , město Dolní Bělá a okolní města 5 min - lékaři ,obchody , školka , škola a další.

Možnost financování hypotečním úvěrem 80 – 90 % LVT se zvýhodněnou úrok sazbou.

Parametry domu

Cena
6 980 000 Kč /za nemovitost Spočítat hypotéku
Poznámka k ceně
včetně DPH, včetně poplatků, včetně provize, včetně právního servisu
Aktualizováno
28. 11. 2025
Adresa
Loza
ID
00099
Stavba
Dřevěná
Stav objektu
Novostavba
Vybaveno
Ne
Druh objektu
Samostatný
Lokalita objektu
Klidná část obce
Užitná plocha
98 m2
Plocha pozemku
726 m2
Třída energetické náročnosti
B - Velmi úsporná
Ukazatel energetické náročnosti
133 kWh/m2 za rok
Elektřina
230V
Odpad
Veřejná kanalizace
Komunikace
Asfaltová
Telekomunikace
Internet
Doprava
Vlak, Dálnice, Silnice, Autobus
Voda
Vodovod
Topné těleso
Podlahové vytápění, Krb
Zdroj teplé vody
Tepelné čerpadlo
Výtah
Bezbarierový přístup
Parkování

Kontaktovat makléře

Realitní kancelář

Hedvika Varcholková

Otýlie Beníškové 1695/16, Plzeň

Chystáte se prodat nemovitost?
Pomůžeme Vám!

Máte zájem o tento dům?

Tímto, v souladu s nařízením Evropského parlamentu a Rady (EU) 2016/679, v platném znění, prohlašuji, že mi je alespoň 16 let a uděluji tak svůj souhlas se zpracováním zadaných údajů (jméno, telefon, e-mail, ip adresa) společnosti B3 Technology, s.r.o., IČ: 07330600, se sídlem Novostavby 126/23, 435 11 Lom (správce dat), za účelem předání dotazu z tohoto formuláře Vámi vybranému inzerentovi a zpětného kontaktování mé osoby. Osobní údaje bude správce zpracovávat manuálně i automaticky přímo prostřednictvím svých zaměstnanců. Informace předané tímto formulářem budou uloženy v databázi správce maximálně po dobu 10 let. Odvolání souhlasu s uložením a zpracováním poskytnutých dat lze e-mailem na info@bydlisnami.cz. V případě podezření na neoprávněné použití Vámi poskytnutých údajů máte právo předat podnět k šetření Úřadu pro ochranu osobních údajů. Více informací
Chystáte se prodat nemovitost?
Pomůžeme Vám!

Inzerát si prohlédlo 7 lidí

Prodejce

Hedvika Varcholková

Hedvika Varcholková

Hlídací pes

Chcete dostávat emailem podobné nabídky prodeje rodinných domů v Loze?

Top nabídky

Podobné nemovitosti