Prodej obchodního prostoru, Mikulov, Nádražní, 254 m2

Nádražní, Mikulov

Cena na vyžádání /za nemovitost Získejte výhodnou HYPOTÉKU

(cena u makléře)

Doporučené firmy v Mikulově

Informace k nemovitosti

Nabízíme k prodeji reprezentativní komerční objekt v centru Mikulova, ul. Nádražní, ideální pro firmy hledající nové sídlo, kanceláře nebo obchodní prostory.

Tento cihlový objekt ve výborném technickém stavu nabízí široké možnosti využití – od firemního zázemí, showroomu, administrativních prostor či kombinace kanceláří a skladu, až po obchodní provoz. Díky strategické poloze v centru Mikulova je zaručena skvělá dopravní dostupnost, viditelnost i pohodlný přístup pro klienty či zaměstnance.

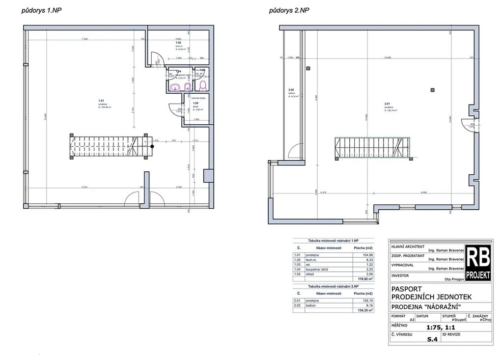
Objekt je rozvržen do dvou podlaží a poskytuje dostatek prostoru pro variabilní uspořádání podle potřeb budoucího vlastníka. Nemovitost je napojena na všechny inženýrské sítě, což umožňuje okamžité a bezproblémové využívání prostorů bez nutnosti zásadních investic.

Druhotná možnost využití – investiční potenciál:
Součástí nabídky je také možnost požádat o rekolaudaci na výstavbu čtyř bytových jednotek. Tato alternativa nabízí zajímavý způsob, jak v budoucnu nemovitost zhodnotit, a otevírá dveře kombinaci komerčního a rezidenčního využití.

Díky své poloze, technickému stavu a širokým možnostem využití se jedná o atraktivní příležitost jak pro firmy, tak pro investory hledající stabilní a výnosnou nemovitost v srdci Mikulova.

V případě zájmu o podrobnosti či domluvu prohlídky mě neváhejte kontaktovat.

Parametry nemovitosti

Cena
Cena na vyžádání Spočítat hypotéku
Poznámka k ceně
cena u makléře
Aktualizováno
10. 3. 2026
Adresa
Nádražní, Mikulov
ID
0096
Stavba
Cihlová
Stav objektu
Velmi dobrý
Užitná plocha
254 m2
Třída energetické náročnosti
G - Mimořádně nehospodárná
Plyn
Plynovod
Odpad
Veřejná kanalizace

Kontaktovat makléře

Realitní kancelář

Pirogov&Sons

Brněnská 91/4, Mikulov

Chystáte se prodat nemovitost?
Pomůžeme Vám!

Máte zájem o tuto nemovistost?

Tímto, v souladu s nařízením Evropského parlamentu a Rady (EU) 2016/679, v platném znění, prohlašuji, že mi je alespoň 16 let a uděluji tak svůj souhlas se zpracováním zadaných údajů (jméno, telefon, e-mail, ip adresa) společnosti B3 Technology, s.r.o., IČ: 07330600, se sídlem Novostavby 126/23, 435 11 Lom (správce dat), za účelem předání dotazu z tohoto formuláře Vámi vybranému inzerentovi a zpětného kontaktování mé osoby. Osobní údaje bude správce zpracovávat manuálně i automaticky přímo prostřednictvím svých zaměstnanců. Informace předané tímto formulářem budou uloženy v databázi správce maximálně po dobu 10 let. Odvolání souhlasu s uložením a zpracováním poskytnutých dat lze e-mailem na info@bydlisnami.cz. V případě podezření na neoprávněné použití Vámi poskytnutých údajů máte právo předat podnět k šetření Úřadu pro ochranu osobních údajů. Více informací
Chystáte se prodat nemovitost?
Pomůžeme Vám!

Inzerát si prohlédlo 14 lidí

Prodejce

Ota Pirogov

Ota Pirogov

Hlídací pes

Chcete dostávat emailem podobné nabídky prodeje obchodních prostor v Mikulově (okr. Břeclav)?

Top nabídky

Podobné nemovitosti