Prodej bytu 1+1, Brno - Královo Pole, Slovinská, 29 m2

Slovinská, Brno-Královo Pole

Rezervováno
4 830 000 Kč /za nemovitost HYPOTÉKA od 21 587 Kč /za měsíc

(vč. provize a právního servisu)

Doporučené firmy v Brně

Informace k bytu

V atraktivní lokalitě Králova Pole, jen pár kroků od Slovanského náměstí, nabízíme k prodeji útulný byt 1+1. Výborná volba pro jednotlivce, pár, jako startovací bydlení nebo investiční byt na pronájem.

Proč právě tento byt?
✅ TOP lokalita Brna – všude blízko, perfektní občanská vybavenost, blízkost zeleně na Slovanském náměstí
✅ Možnost využívání zahrady ve vnitrobloku – k bytu náleží podíl na zahradě za domem
✅ Investiční potenciál – díky poloze a dispozici jde o atraktivní jednotku pro dlouhodobý pronájem
✅ Skvělá dostupnost MHD a všeho potřebného v docházkové vzdálenosti

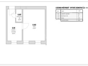
Byt se nachází ve 3. nadzemním podlaží a jeho celková užitná plocha je 29 m². K bytu dále náleží sklepní kóje o výměře cca 4,9 m². Orientace oken na západní stranu.

Balkony jsou umístěné zezadu domu s výhledem do zahrady a jsou přístupné ze společného schodiště.

Vytápění pomocí nástěnných el. konvektorů přímotopných, ohřev vody pomocí vlastního el. bojleru.

Aktuálně probíhá vyhotovení prohlášení vlastníka s vymezením jednotek.
Uvedené výměry jsou orientační.
PENB bude nově dodáno (prozatím uvedena třída G).

Lokalita
Královo Pole patří dlouhodobě k nejvyhledávanějším částem Brna díky skvělé dostupnosti, zeleni a kompletní občanské vybavenosti. Jde o lokalitu, kde si nemovitosti drží hodnotu a stabilně rostou.

V pěší vzdálenosti najdete obchody, kavárny, restaurace, základní školu, gymnázium, mateřskou školu, sportoviště a samozřejmě MHD.

Přijďte se podívat, těšíme se na Vás.

Parametry bytu

Stav
Rezervováno
Cena
4 830 000 Kč /za nemovitost Spočítat hypotéku
Poznámka k ceně
vč. provize a právního servisu
Aktualizováno
23. 12. 2025
Adresa
Slovinská, Brno-Královo Pole
ID
18039
Stavba
Smíšená
Stav objektu
Dobrý
Patro
3. z 5
Vybaveno
Ne
Lokalita objektu
Centrum obce
Vlastnictví
Osobní
Užitná plocha
29 m2
Podlahová plocha
34 m2
Plocha zahrady
228 m2
Třída energetické náročnosti
G - Mimořádně nehospodárná
Elektřina
230V
Odpad
Veřejná kanalizace
Komunikace
Asfaltová
Doprava
Silnice, MHD
Voda
Vodovod
Sklep

Kontaktovat makléře

Máte zájem o tento byt?

Tímto, v souladu s nařízením Evropského parlamentu a Rady (EU) 2016/679, v platném znění, prohlašuji, že mi je alespoň 16 let a uděluji tak svůj souhlas se zpracováním zadaných údajů (jméno, telefon, e-mail, ip adresa) společnosti B3 Technology, s.r.o., IČ: 07330600, se sídlem Novostavby 126/23, 435 11 Lom (správce dat), za účelem předání dotazu z tohoto formuláře Vámi vybranému inzerentovi a zpětného kontaktování mé osoby. Osobní údaje bude správce zpracovávat manuálně i automaticky přímo prostřednictvím svých zaměstnanců. Informace předané tímto formulářem budou uloženy v databázi správce maximálně po dobu 10 let. Odvolání souhlasu s uložením a zpracováním poskytnutých dat lze e-mailem na info@bydlisnami.cz. V případě podezření na neoprávněné použití Vámi poskytnutých údajů máte právo předat podnět k šetření Úřadu pro ochranu osobních údajů. Více informací
Chystáte se prodat nemovitost?
Pomůžeme Vám!

Inzerát si prohlédlo 17 lidí

Prodejce

Ing. Jaroslav Kaderka

Ing. Jaroslav Kaderka

Hlídací pes

Chcete dostávat emailem podobné nabídky prodeje bytů 1+1 v Brně?

Podobné nemovitosti