Pronájem kanceláře, Praha - Staré Město, Martinská, 32 m2

Martinská, Praha, Staré Město

17 900 Kč /za měsíc Získejte výhodnou HYPOTÉKU

(Poplatky za služby a energie se hradí zvlášť.)

Doporučené firmy v Praze 1

Stěhovací služby

Výkup a prodej starého nábytku

Informace k nemovitosti

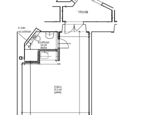
Útulná světlá kancelář 1+kk o celkové obytné ploše 32 m2, je situována ve 4. patře domu po rekonstrukci s výtahem ve velmi žádané rezidenční lokalitě na Praze 1 Staré Město, Martinská ulice.
Prostor je po kompletní rekonstrukci a dispozičně nabízí jednu místnost s kuchyňským koutem, koupelnu (sprchový kout, toalety, umyvadlo) a vstupní halu s vestavěnými úložnými prostory. K vybavení prostoru patří kvalitní dřevěné parkety, dlažba, bezpečností dveře a elektrický kotel.

Budova se nachází v historické části města, s veškerou občanskou vybaveností (supermarket Tesco, lékárna, restaurace, kavárny, banky, atd), v pěší dostupností nábřeží Vltavy, parku Kampa, Malé Strany Petřín, také Národního divadla, a jiných historických památek. Dobrá dopravní dostupnost metrem (Můstek/Národní třída) anebo tramvají do každé části Prahy.

Poplatky za služby a energie se hradí zvlášť.
K dispozici od února 2025. Prohlídky možné po dohodě.

Parametry nemovitosti

Cena
17 900 Kč /za měsíc
Poznámka k ceně
Poplatky za služby a energie se hradí zvlášť.
Aktualizováno
28. 11. 2025
Adresa
Martinská, Praha, Staré Město
ID
954483
Stavba
Cihlová
Stav objektu
Velmi dobrý
Patro
5.
Vybaveno
Ne
Užitná plocha
32 m2
Podlahová plocha
32 m2
Třída energetické náročnosti
G - Mimořádně nehospodárná
Elektřina
230V
Plyn
Plynovod
Doprava
Silnice, MHD
Voda
Vodovod
Výtah

Kontaktovat makléře

Máte zájem o tuto nemovistost?

Tímto, v souladu s nařízením Evropského parlamentu a Rady (EU) 2016/679, v platném znění, prohlašuji, že mi je alespoň 16 let a uděluji tak svůj souhlas se zpracováním zadaných údajů (jméno, telefon, e-mail, ip adresa) společnosti B3 Technology, s.r.o., IČ: 07330600, se sídlem Novostavby 126/23, 435 11 Lom (správce dat), za účelem předání dotazu z tohoto formuláře Vámi vybranému inzerentovi a zpětného kontaktování mé osoby. Osobní údaje bude správce zpracovávat manuálně i automaticky přímo prostřednictvím svých zaměstnanců. Informace předané tímto formulářem budou uloženy v databázi správce maximálně po dobu 10 let. Odvolání souhlasu s uložením a zpracováním poskytnutých dat lze e-mailem na info@bydlisnami.cz. V případě podezření na neoprávněné použití Vámi poskytnutých údajů máte právo předat podnět k šetření Úřadu pro ochranu osobních údajů. Více informací
Chystáte se prodat nemovitost?
Pomůžeme Vám!

Inzerát si prohlédlo 0 lidí

Prodejce

Eva Cinculová

Eva Cinculová

Hlídací pes

Chcete dostávat emailem podobné nabídky pronájmu kanceláří v Praze 1?

Podobné nemovitosti