Prodej rodinného domu, Jilemnice, 172 m2 (ID: 2488138)

Jilemnice

16 900 000 Kč /za nemovitost HYPOTÉKA od 75 533 Kč /za měsíc
Doporučené firmy v Jilemnici

Rekonstrukce

Úklidové služby

Informace k domu

Prodej novostavby prostorného rodinného domu v klidné části Jilemnice – exkluzivní nabídka
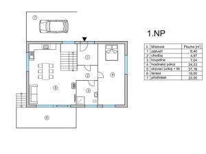
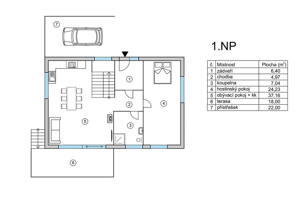
Nabízíme k prodeji nově postavený rodinný dům s dispozicí 6+kk, nacházející se v tiché a vyhledávané lokalitě města Jilemnice.
Dům nabízí celkovou užitnou plochu 172 m² a je navržen tak, aby poskytoval komfortní a moderní bydlení pro vícečlennou rodinu.
Kuchyně s jídelnou a obývacím pokojem tvoří jeden elegantní, světlý a funkční celek, který je ideálním centrem rodinného života.
Čtyři ložnice a pracovna umožňují přizpůsobit využití prostoru podle individuálních potřeb – ať už jde o dětské pokoje, hostinský pokoj či domácí kancelář.
Součástí domu je kryté parkovací stání (22 m²), prostorný sklep pro uložení zahradní techniky a vybavení a podkroví, které lze využít jako další úložný prostor.
K odpočinku vybízí terasa o rozloze 18 m², orientovaná do klidné a slunné zahrady.
Nemovitost stojí na rozsáhlém, udržovaném pozemku o velikosti 1 025 m², který nabízí dostatek prostoru pro zahradničení, relaxaci i rodinné aktivity.
Díky umístění v klidné části města zde majitelé ocení soukromí, klid a krásné výhledy na okolní přírodu Podkrkonoší.

Technické parametry
• Dispozice: 6+kk
• Užitná plocha domu: 172 m²
• Plocha pozemku: 1 025 m²
• Terasa: 18 m²
• Přístřešek (kryté parkování): 22 m²
• Elektřina: 230 V / 400 V
• Vytápění: Lokální elektrické, ústřední dálkové podlahové
• Zdroj vytápění: Elektrokotel
• Ohřev vody: Elektrický bojler
• Vytápěcí tělesa: Podlahové topení
• Komín Schiedel s keramickou vložkou s přípravou na připojení krbové vložky s externím přisáváním vzduchu
• Krytina na podlaze – vinyl
• Schodiště – jasanové masivní dřevo

Lokalita
Město Jilemnice, často označované jako „brána Krkonoš“, nabízí ideální kombinaci klidného prostředí a plné občanské vybavenosti.
V místě najdete školy, školky, zdravotnická zařízení, obchody i služby.
Zároveň okolí poskytuje široké možnosti rekreace a sportu – turistické trasy, cyklostezky, lyžařské areály či běžecké tratě.
Za návštěvu stojí také zámek s Krkonošským muzeem, sportovní areály, plavecký bazén nebo půvabné historické náměstí.
Tento dům představuje ideální volbu pro rodinu, která hledá moderní, prostorné a klidné bydlení v srdci Podkrkonoší.
Kombinuje promyšlené dispoziční řešení, komfortní zázemí a atraktivní lokalitu, která spojuje výhody městského života s krásou okolní přírody.

Parametry domu

Cena
16 900 000 Kč /za nemovitost Spočítat hypotéku
Aktualizováno
30. 11. 2025
Adresa
Jilemnice
Stavba
Cihlová
Stav objektu
Novostavba
Užitná plocha
172 m2
Plocha pozemku
1025 m2
Třída energetické náročnosti
B - Velmi úsporná
Elektřina
230V, 400V
Odpad
Veřejná kanalizace
Komunikace
Asfaltová
Telekomunikace
Kabelové rozvody
Voda
Vodovod
Zdroj topení
Elektrokotel
Zdroj teplé vody
Bojler - elektro
Parkování

Kontaktovat makléře

Máte zájem o tento dům?

Tímto, v souladu s nařízením Evropského parlamentu a Rady (EU) 2016/679, v platném znění, prohlašuji, že mi je alespoň 16 let a uděluji tak svůj souhlas se zpracováním zadaných údajů (jméno, telefon, e-mail, ip adresa) společnosti B3 Technology, s.r.o., IČ: 07330600, se sídlem Novostavby 126/23, 435 11 Lom (správce dat), za účelem předání dotazu z tohoto formuláře Vámi vybranému inzerentovi a zpětného kontaktování mé osoby. Osobní údaje bude správce zpracovávat manuálně i automaticky přímo prostřednictvím svých zaměstnanců. Informace předané tímto formulářem budou uloženy v databázi správce maximálně po dobu 10 let. Odvolání souhlasu s uložením a zpracováním poskytnutých dat lze e-mailem na info@bydlisnami.cz. V případě podezření na neoprávněné použití Vámi poskytnutých údajů máte právo předat podnět k šetření Úřadu pro ochranu osobních údajů. Více informací
Chystáte se prodat nemovitost?
Pomůžeme Vám!

Inzerát si prohlédlo 15 lidí

Prodejce

Jitka Macková

Jitka Macková

Hlídací pes

Chcete dostávat emailem podobné nabídky prodeje rodinných domů v Jilemnici?

Podobné nemovitosti