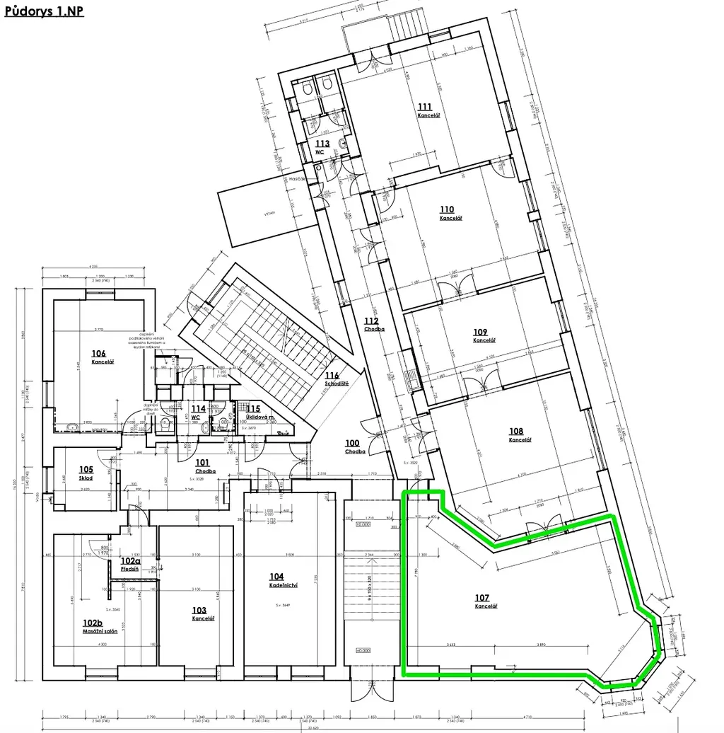
Pronájem kanceláře, Opava, Na Rybníčku, 55 m2

Na Rybníčku, Opava, Předměstí

9 250 Kč /za měsíc Získejte výhodnou HYPOTÉKU
Doporučené firmy v Opavě

Informace k nemovitosti

Pronájem světlé kanceláře s výhledem do parku – Opava, Na Rybníčku 56

Hledáte reprezentativní kancelář v klidném prostředí, ale přitom kousek od centra?
Nabízíme k pronájmu rohovou kancelářskou místnost o velikosti 55 m² s nádherným výhledem do parku, umístěnou v 1. nadzemním podlaží domu v žádané lokalitě Na Rybníčku 56 v Opavě.

Základní informace:
- prostorná, světlá kancelář o výměře 55 m²
- společná kuchyňka
- 2x sdílené WC

Skvělá poloha:
Budova se nachází přímo u klidného parku, ideální pro krátké pauzy na čerstvém vzduchu, a zároveň jen pár minut chůze od historického centra města, MHD i občanské vybavenosti.

Další výhody:
- v roce 2025 instalován nový plynový kotel → úsporný provoz a nižší náklady na vytápění
- společné prostory jsou střeženy kamerovým systémem, napojeným na bezpečnostní agenturu sídlící přímo v objektu

Prostory jsou ideální jako sídlo firmy, kancelář pro IT, právní či finanční poradenství, vzdělávací nebo jazykovou agenturu apod.

Máte zájem o prohlídku nebo více informací?
Napište nebo zavolejte – rádi vám kancelář osobně ukážeme.

Parametry nemovitosti

Cena
9 250 Kč /za měsíc
Aktualizováno
4. 12. 2025
Adresa
Na Rybníčku, Opava, Předměstí
ID
22
Stavba
Cihlová
Stav objektu
Po rekonstrukci
Užitná plocha
55 m2
Třída energetické náročnosti
E - Nehospodárná
Elektřina
230V
Plyn
Plynovod
Odpad
Veřejná kanalizace
Komunikace
Asfaltová
Telekomunikace
Internet
Doprava
Silnice
Voda
Vodovod
Bezbarierový přístup

Kontaktovat makléře

Realitní kancelář

POUBA

náměstí Republiky 450/17, Opava

Chystáte se prodat nemovitost?
Pomůžeme Vám!

Máte zájem o tuto nemovistost?

Tímto, v souladu s nařízením Evropského parlamentu a Rady (EU) 2016/679, v platném znění, prohlašuji, že mi je alespoň 16 let a uděluji tak svůj souhlas se zpracováním zadaných údajů (jméno, telefon, e-mail, ip adresa) společnosti B3 Technology, s.r.o., IČ: 07330600, se sídlem Novostavby 126/23, 435 11 Lom (správce dat), za účelem předání dotazu z tohoto formuláře Vámi vybranému inzerentovi a zpětného kontaktování mé osoby. Osobní údaje bude správce zpracovávat manuálně i automaticky přímo prostřednictvím svých zaměstnanců. Informace předané tímto formulářem budou uloženy v databázi správce maximálně po dobu 10 let. Odvolání souhlasu s uložením a zpracováním poskytnutých dat lze e-mailem na info@bydlisnami.cz. V případě podezření na neoprávněné použití Vámi poskytnutých údajů máte právo předat podnět k šetření Úřadu pro ochranu osobních údajů. Více informací
Chystáte se prodat nemovitost?
Pomůžeme Vám!

Inzerát si prohlédlo 0 lidí

Prodejce

Zdenek Pouba

Zdenek Pouba

Hlídací pes

Chcete dostávat emailem podobné nabídky pronájmu kanceláří v Opavě?

Podobné nemovitosti