Prodej rodinného domu, Havířov, Farská, 83 m2 (ID: 2492166)

Farská, Havířov

6 600 000 Kč /za nemovitost HYPOTÉKA od 29 498 Kč /za měsíc
Doporučené firmy v Havířově

Informace k domu

Poslední šance na pozemek v Havířově v lukrativní lokalitě Farská!
Máte jedinečnou možnost získat poslední z dostupných pozemků v oblíbené lokalitě Farská v Havířově-Bludovicích! Všechny pozemky mají velikost okolo 1.000 m2. Pozemky jsou kompletně připraveny pro výstavbu vašeho vysněného domova. Ceny pozemků začínají na částce 2.500,- Kč / m2.

Co vám tento pozemek nabízí?
• Připravené inženýrské sítě: U hranice pozemku najdete vodovod, splaškovou kanalizaci, elektřinu.
• Výborná lokalita: Klidná okrajová část Havířova s rychlou dostupností do centra města.
• Občanská vybavenost na dosah: Základní a mateřská škola, nákupní centrum, restaurace, lékárna a zastávky MHD – vše v blízkosti.

Exkluzivní nabídka:
Z původních 35 pozemků nyní zbývá posledních 10 stavebních parcel. Neotálejte a zarezervujte si své místo pro vysněné bydlení ještě dnes!

Hlavní rysy budoucího domu Idea:
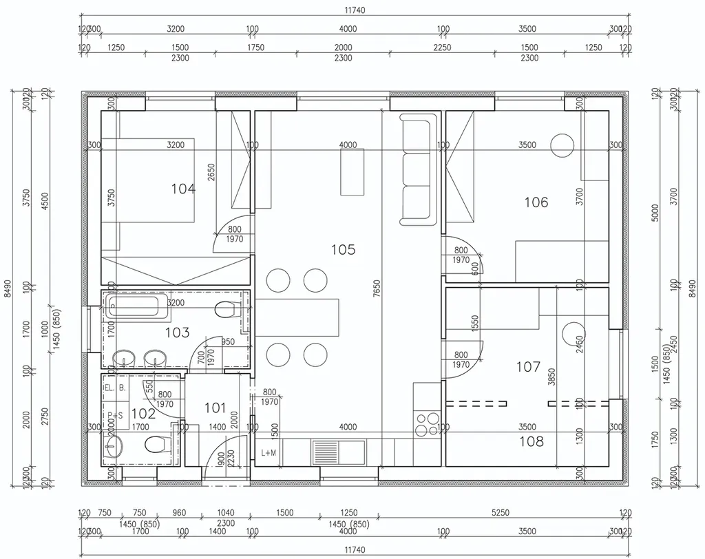
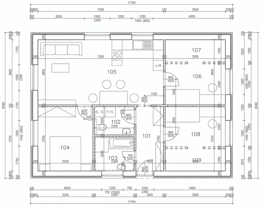
• Dispozice 4+kk: Přízemní dům s třemi samostatnými pokoji, prostorným obývacím pokojem spojeným s kuchyní, koupelnou, WC, technickou místností a přímým vstupem na terasu.
• Užitná plocha domu: 83 m² – ideální pro pohodlné bydlení rodiny.
• Zastavěná plocha: 101 m² na prostorném pozemku o velikosti 1000 m², který nabízí dostatek prostoru pro zahradu.
• Moderní vytápění a klimatizace: Třísložkový komín připravený pro krbová kamna pro příjemnou atmosféru během zimy a klimatizace zajišťující komfort i v letních měsících.
• Komplexní příprava: Součástí od projektu přes stavební povolení až po kolaudaci, což urychlí proces realizace. V nabízené ceně jsme kalkulovali s vnitřním vybavením (obklady, dlažby, plovoucí podlahy, dveře s obložkami), dále pak se sanitou. Dům je v nabízené ceně připojen na vodovod, elektřinu, kanalizaci, plynovod. Deště jsou svedeny do vsaku dešťových vod. Dále je po domluvě možno zajištění terasy, chodníku, parkovacího stání, zahrady, trávníku a oplocení pozemku, včetně branky a brány pro automobily.

Tento dům kombinuje moderní design, komfort a praktické dispozice, což z něj činí ideální místo pro váš budoucí domov.

Myslíte na investici?
Lokalita Farská nabízí i skvělou příležitost investice do výstavby bytového komplexu pro nájemní bydlení. S rostoucí poptávkou po nájemním bydlení jde o jedinečnou šanci na stabilní a dlouhodobý zisk. Poskytneme vám kompletní informace i podporu, abyste mohli učinit správné rozhodnutí.

Proč právě Farská?
Tato lokalita je obklopena krásnou přírodou, je napojená na městskou infrastrukturu a také nabízí klid venkova spolu s komfortem městského života. Vaše nové bydlení zde může být více než jen domov – stane se vaším životním stylem.

Při zájmu nás neváhejte kontaktovat.

Parametry domu

Cena
6 600 000 Kč /za nemovitost Spočítat hypotéku
Aktualizováno
4. 12. 2025
Adresa
Farská, Havířov
Stavba
Cihlová
Stav objektu
Ve výstavbě
Užitná plocha
83 m2
Plocha pozemku
1000 m2

Kontaktovat makléře

Máte zájem o tento dům?

Tímto, v souladu s nařízením Evropského parlamentu a Rady (EU) 2016/679, v platném znění, prohlašuji, že mi je alespoň 16 let a uděluji tak svůj souhlas se zpracováním zadaných údajů (jméno, telefon, e-mail, ip adresa) společnosti B3 Technology, s.r.o., IČ: 07330600, se sídlem Novostavby 126/23, 435 11 Lom (správce dat), za účelem předání dotazu z tohoto formuláře Vámi vybranému inzerentovi a zpětného kontaktování mé osoby. Osobní údaje bude správce zpracovávat manuálně i automaticky přímo prostřednictvím svých zaměstnanců. Informace předané tímto formulářem budou uloženy v databázi správce maximálně po dobu 10 let. Odvolání souhlasu s uložením a zpracováním poskytnutých dat lze e-mailem na info@bydlisnami.cz. V případě podezření na neoprávněné použití Vámi poskytnutých údajů máte právo předat podnět k šetření Úřadu pro ochranu osobních údajů. Více informací
Chystáte se prodat nemovitost?
Pomůžeme Vám!

Inzerát si prohlédlo 0 lidí

Prodejce

Daniel Lang

Daniel Lang

Hlídací pes

Chcete dostávat emailem podobné nabídky prodeje rodinných domů v Havířově?

Podobné nemovitosti