Prodej obchodního prostoru, Uherský Brod, Masarykovo nám., 275 m2

Masarykovo nám., Uherský Brod

Cena na vyžádání /za nemovitost Získejte výhodnou HYPOTÉKU

(cena u makléře)

Doporučené firmy v Uherském Brodu

Informace k nemovitosti

Apollo reality v zastoupení majitele nabízí výjimečný polyfunkční dům v srdci Uherského Brodu – investiční příležitost s obrovským potenciálem a elegantní architekturou.
Nejedná se o běžnou nemovitost. Tento dům je jako pečlivě komponovaná symfonie – kombinuje stabilní výnos, strategickou lokalitu a architektonický půvab, který ocení i nároční sběratelé výjimečných budov. Objekt se nachází v historické části města Uherský Brod, přímo na jeho hlavním Masarykově nám. jen pár kroků od veškerého dění ve městě.
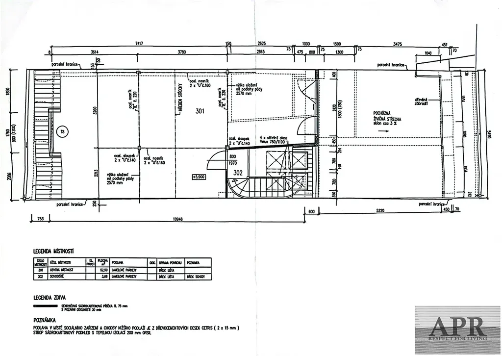
Budova disponuje celkovou užitnou plochou (275 m²). Aktuálně je pronajato přízemí s výlohou do náměstí, kde se nachází komerční prostor s dlouhodobou perspektivou pronájmu, který zajišťuje stabilní měsíční příjem. Dále v přízemí naleznete kancelář a soukromou zimní zahradu, která je situovaná do zahradní části objektu to vše o užitné ploše (131 m2) Nad obchodem tzn. Ve 2. NP a 3.NP se nachází celkem dvě bytové jednotky, jedna celkově dokončená o užitné ploše (87m2) a druhá k dokončení o užitné ploše (56 m2) což zvyšuje jeho investiční atraktivitu, nebo kombinaci vlastního bydlení. Dům je z větší části podsklepený původním klenbovým sklepem, který skýtá možnost vybudování soukromé či komerční vinotéky.
Pozemek je přístupný i ze zadní strany nejen chůzí, ale ji automobilem, který lze parkovat na krytém parkovacím místě pod pergolou.
Celý dům prošel celkovou rekonstrukcí, kde se zachovaly původní architektonické detaily v duchu městské reprezentativní výstavby z přelomu 19. a 20. století. Jemná štuková výzdoba, rytmická struktura průčelí dodávají domu důstojnost a kultivovanost. Estetická integrita stavby je jasným důkazem, že i funkční městský dům může být stavebním šperkem.
Díky výborné dopravní dostupnosti, občanské vybavenosti a neutuchajícímu zájmu o nájemní bydlení v Uherském Brodě, představuje tato nemovitost ideální příležitost pro ty, kteří hledají kombinaci stabilního výnosu, růstu hodnoty a architektonické kvality či v kombinaci s vlastním bydlení.
V souladu s legislativními požadavky, které nás nutí v případě absence energetického štítku uvádět třídu G, dočasně uvádíme energetickou třídu G.
Uherský Brod je město v okrese Uherské Hradiště ve Zlínském kraji na Slovácku, 14 km jihovýchodně od Uherského Hradiště na řece Olšavě. Žije zde přibližně 17 tisíc obyvatel. Přemysl Otakar II. jej povýšil na královské město.

Parametry nemovitosti

Cena
Cena na vyžádání Spočítat hypotéku
Poznámka k ceně
cena u makléře
Aktualizováno
5. 12. 2025
Adresa
Masarykovo nám., Uherský Brod
ID
2007
Stavba
Cihlová
Stav objektu
Velmi dobrý
Vybaveno
Ano
Lokalita objektu
Centrum obce
Užitná plocha
275 m2
Zastavěná plocha
271 m2
Podlahová plocha
306 m2
Třída energetické náročnosti
G - Mimořádně nehospodárná
Plyn
Plynovod
Odpad
Veřejná kanalizace

Kontaktovat makléře

Realitní kancelář

APOLLO REALITY

Hodinářská 1523, Uherský Brod

Chystáte se prodat nemovitost?
Pomůžeme Vám!

Máte zájem o tuto nemovistost?

Tímto, v souladu s nařízením Evropského parlamentu a Rady (EU) 2016/679, v platném znění, prohlašuji, že mi je alespoň 16 let a uděluji tak svůj souhlas se zpracováním zadaných údajů (jméno, telefon, e-mail, ip adresa) společnosti B3 Technology, s.r.o., IČ: 07330600, se sídlem Novostavby 126/23, 435 11 Lom (správce dat), za účelem předání dotazu z tohoto formuláře Vámi vybranému inzerentovi a zpětného kontaktování mé osoby. Osobní údaje bude správce zpracovávat manuálně i automaticky přímo prostřednictvím svých zaměstnanců. Informace předané tímto formulářem budou uloženy v databázi správce maximálně po dobu 10 let. Odvolání souhlasu s uložením a zpracováním poskytnutých dat lze e-mailem na info@bydlisnami.cz. V případě podezření na neoprávněné použití Vámi poskytnutých údajů máte právo předat podnět k šetření Úřadu pro ochranu osobních údajů. Více informací
Chystáte se prodat nemovitost?
Pomůžeme Vám!

Inzerát si prohlédlo 1 lidí

Prodejce

Antonín Polášek

Antonín Polášek

Hlídací pes

Chcete dostávat emailem podobné nabídky prodeje obchodních prostor v Uherském Brodu?

Podobné nemovitosti