Prodej rodinného domu, Nečtiny - Březín, 109 m2

Nečtiny, Březín

1 870 000 Kč /za nemovitost HYPOTÉKA od 8 358 Kč /za měsíc
Doporučené firmy v Nečtinách

Podlahy

Stěhovací služby

Informace k domu

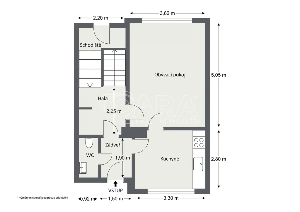
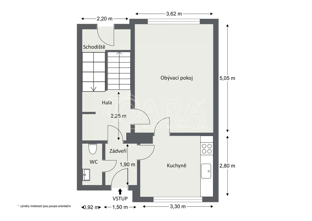
Nabízím k prodeji řadový rodinný dům ve vesnici Březín, která administrativně spadá pod obec Nečtiny, okres Plzeň-sever.
Dům je dispozičně řešený jako 3+1, provozní místnosti jsou v přízemí, klidové v patře. Součástí domu je balkon a nadstandardně velké a praktické sklepní prostory.

Co se týče stavu, je dům určený ke kompletní rekonstrukci. Nejedná se o starý dům, statika domu i zdivo jsou v pořádku, ale čas se tady zastavil a dům potřebuje celkovou modernizaci včetně všech sítí a rozvodů. Do domu je zavedený obecní vodovod a dům byl nedávno napojený na vlastní biologickou čističku odpadních vod.
Přes společný dvůr najdete zahradu, která byla původně pronajata od obecního úřadu. Pronájem zanikl, ale nájemní smlouvu můžete opět obnovit.
Cena je velmi atraktivní 1 870 000 Kč. Za to si na Plzeňsku koupíte spíše chatu než dům.

Nemovitost se nachází v klidné vesnici Březín. Obec Nečtiny (2,5 km) nabízí dobrou občanskou vybavenost včetně obecního úřadu, základní a mateřské školy, zdravotního střediska, prodejny potravin a dobré restaurace. Nejbližší města jsou Manětín a Plasy, krajské město Plzeň je vzdáleno 45 minut jízdy autem. Okolí je charakteristické krásnou přírodou, která přitahuje mnoho výletníků a turistů.

Pokud jste rodina milující venkov a hledající klidné a cenově dostupné bydlení, je tohle příležitost pro vás. Zavolejte mi a zajedeme se spolu do Březína podívat!

Parametry domu

Cena
1 870 000 Kč /za nemovitost Spočítat hypotéku
Aktualizováno
5. 12. 2025
Adresa
Nečtiny, Březín
ID
18155
Stavba
Smíšená
Stav objektu
Před rekonstrukcí
Vybaveno
Ne
Typ objektu
Patrový
Druh objektu
Řadový
Lokalita objektu
Klidná část obce
Užitná plocha
109 m2
Zastavěná plocha
58 m2
Plocha pozemku
63 m2
Třída energetické náročnosti
G - Mimořádně nehospodárná
Elektřina
230V
Odpad
ČOV pro celý objekt
Voda
Vodovod
Sklep
Převod do OV

Kontaktovat makléře

Máte zájem o tento dům?

Tímto, v souladu s nařízením Evropského parlamentu a Rady (EU) 2016/679, v platném znění, prohlašuji, že mi je alespoň 16 let a uděluji tak svůj souhlas se zpracováním zadaných údajů (jméno, telefon, e-mail, ip adresa) společnosti B3 Technology, s.r.o., IČ: 07330600, se sídlem Novostavby 126/23, 435 11 Lom (správce dat), za účelem předání dotazu z tohoto formuláře Vámi vybranému inzerentovi a zpětného kontaktování mé osoby. Osobní údaje bude správce zpracovávat manuálně i automaticky přímo prostřednictvím svých zaměstnanců. Informace předané tímto formulářem budou uloženy v databázi správce maximálně po dobu 10 let. Odvolání souhlasu s uložením a zpracováním poskytnutých dat lze e-mailem na info@bydlisnami.cz. V případě podezření na neoprávněné použití Vámi poskytnutých údajů máte právo předat podnět k šetření Úřadu pro ochranu osobních údajů. Více informací
Chystáte se prodat nemovitost?
Pomůžeme Vám!

Inzerát si prohlédlo 0 lidí

Prodejce

Mgr. Romana Trešlová

Mgr. Romana Trešlová

Hlídací pes

Chcete dostávat emailem podobné nabídky prodeje rodinných domů v Nečtinách?

Podobné nemovitosti