Pronájem bytu 1+1, Odolena Voda, Nad Štolami, 39 m2

Nad Štolami, Odolena Voda

13 500 Kč /za měsíc Získejte výhodnou HYPOTÉKU

(nájem + poplatky 16.100,-/měsíčně, kauce 16.100,- a elektřina a plyn se převádí na podnájemníka. Poplatek za zprostředkování 7.000,-)

Doporučené firmy v Odoleně Vodě

Informace k bytu

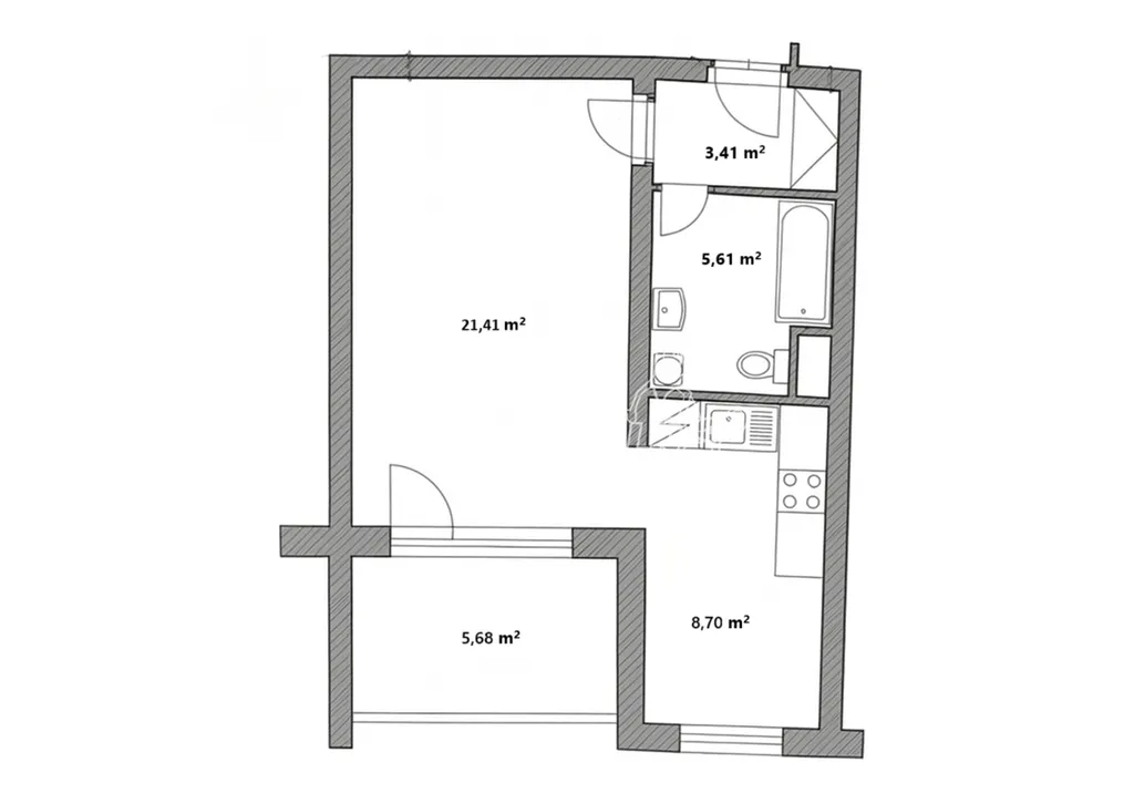
Nabízím vám částečně zařízený byt 1+1 s lodžií (39m + 6m) s okny na jihovýchod ve 4. patře domu z roku 2004.
Jako velký bonus jsou sklep (1,5m), společná sušárna přímo na patře a kolárna v přízemí domu. To vše velmi zvyšuje úložné prostory.
Z předsíně se skříní máte vstupy do koupelny s pračkou, nebo přímo do obývacího pokoje vybaveného postelí, sedačkou a menší obývací stěnou s televizí, ze kterého můžete pokračovat do kuchyně, kde máte k dispozici plně vybavenou kuchyňskou linku, lednici a stůl se židlemi. Dále můžete z obývacího pokoje vstoupit na prostornou lodžii, která je dispozičně optimální na posezení u kávy či vína.
Jedná se o velmi žádanou lokalitu s veškerou občanskou vybaveností a dobrou dopravní dostupností v centru města.
V docházkové vzdálenosti je autobusová zastávka PID s přímou linkou do Prahy (35 min).

Nájemné 13.500,- + poplatky 2.545,-, Kauce 16.100,-, poplatek za zpracování 7.000,- + energie se přepisují na podnájemníka.
V případě zájmu mě kontaktujte. Rád vám zodpovím otázky a případně domluvím prohlídku.

Parametry bytu

Cena
13 500 Kč /za měsíc
Poznámka k ceně
nájem + poplatky 16.100,-/měsíčně, kauce 16.100,- a elektřina a plyn se převádí na podnájemníka. Poplatek za zprostředkování 7.000,-
Aktualizováno
7. 12. 2025
Adresa
Nad Štolami, Odolena Voda
ID
18116
Stavba
Smíšená
Stav objektu
Velmi dobrý
Patro
4. z 6
Vybaveno
Částečně
Lokalita objektu
Klidná část obce
Vlastnictví
Osobní
Užitná plocha
39 m2
Zastavěná plocha
949 m2
Podlahová plocha
47 m2
Třída energetické náročnosti
C - Úsporná
Elektřina
230V
Plyn
Plynovod
Odpad
Veřejná kanalizace
Komunikace
Asfaltová
Doprava
Vlak, Silnice, Autobus
Voda
Vodovod
Sklep
Lodžie
Výtah

Kontaktovat makléře

Realitní kancelář

Logo QARA, s.r.o.

QARA, s.r.o.

Šafaříkova 201/17, Praha

Chystáte se prodat nemovitost?
Pomůžeme Vám!

Máte zájem o tento byt?

Tímto, v souladu s nařízením Evropského parlamentu a Rady (EU) 2016/679, v platném znění, prohlašuji, že mi je alespoň 16 let a uděluji tak svůj souhlas se zpracováním zadaných údajů (jméno, telefon, e-mail, ip adresa) společnosti B3 Technology, s.r.o., IČ: 07330600, se sídlem Novostavby 126/23, 435 11 Lom (správce dat), za účelem předání dotazu z tohoto formuláře Vámi vybranému inzerentovi a zpětného kontaktování mé osoby. Osobní údaje bude správce zpracovávat manuálně i automaticky přímo prostřednictvím svých zaměstnanců. Informace předané tímto formulářem budou uloženy v databázi správce maximálně po dobu 10 let. Odvolání souhlasu s uložením a zpracováním poskytnutých dat lze e-mailem na info@bydlisnami.cz. V případě podezření na neoprávněné použití Vámi poskytnutých údajů máte právo předat podnět k šetření Úřadu pro ochranu osobních údajů. Více informací
Chystáte se prodat nemovitost?
Pomůžeme Vám!

Inzerát si prohlédlo 1 lidí

Prodejce

Radim Fichtner

Radim Fichtner

Hlídací pes

Chcete dostávat emailem podobné nabídky pronájmu bytů 1+1 v Odoleně Vodě?

Podobné nemovitosti