Prodej rodinného domu, Vladislav, 220 m2 (ID: 2494995)

Vladislav, Střížov u Třebíče

7 579 000 Kč /za nemovitost HYPOTÉKA od 33 874 Kč /za měsíc
Doporučené firmy v Vladislavi

Informace k domu

Hledáte klid, prostor a nadstandardní bydlení? Nabízíme jedinečnou příležitost pro náročné zájemce, kteří hledají moderní, prostorné a energeticky úsporné bydlení v krásné venkovské lokalitě. Součástí nabídky je stavební pozemek ve Střížově u Vladislavi a nadstandardně velká dřevostavba 6+kk s užitnou plochou 220 m².

Rodinný dům je navržen jako nízkoenergetická dřevostavba z prefabrikovaných rámových stěnových panelů. Jedná se o hrubou stavbu, u které lze individuálně domluvit její dokončení. Dispozice i vzhled domu může stavební firma upravit podle přání klienta. Realizace hrubé stavby je do 4 měsíců

Pozemek se nachází v klidné lokalitě 10 km od Třebíče. Ze Střížova jezdí autobus do Vladislavi i Třebíče, ve Vladislavi (3 km) je vlakové spojení do Třebíče, Brna i Náměště nad Oslavou a kompletní občanská vybavenost: škola, školka, lékař, pošta, knihovna i sportovní zázemí.

Na pozemku je vodovodní a kanalizační přípojka, elektřinu je nutné vyřídit. Přístup na pozemek je z obou stran - z obecní komunikace i z polní cesty.

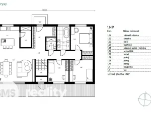
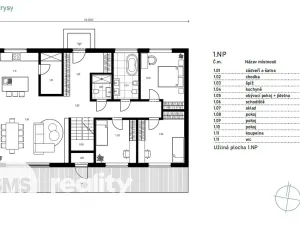
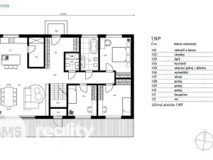
Pro lepší představu přikládám vizualizaci domu, umístění na pozemku a půdorysy obou podlaží.

Pozemek je možné koupit i samostatně.

Pro více informací mne neváhejte kontaktovat.

Parametry domu

Cena
7 579 000 Kč /za nemovitost Spočítat hypotéku
Aktualizováno
18. 3. 2026
Adresa
Vladislav, Střížov u Třebíče
ID
1748
Stavba
Dřevěná
Stav objektu
Novostavba
Typ objektu
Patrový
Druh objektu
Samostatný
Lokalita objektu
Okraj obce
Užitná plocha
220 m2
Plocha pozemku
2041 m2
Převod do OV

Kontaktovat makléře

Máte zájem o tento dům?

Tímto, v souladu s nařízením Evropského parlamentu a Rady (EU) 2016/679, v platném znění, prohlašuji, že mi je alespoň 16 let a uděluji tak svůj souhlas se zpracováním zadaných údajů (jméno, telefon, e-mail, ip adresa) společnosti B3 Technology, s.r.o., IČ: 07330600, se sídlem Novostavby 126/23, 435 11 Lom (správce dat), za účelem předání dotazu z tohoto formuláře Vámi vybranému inzerentovi a zpětného kontaktování mé osoby. Osobní údaje bude správce zpracovávat manuálně i automaticky přímo prostřednictvím svých zaměstnanců. Informace předané tímto formulářem budou uloženy v databázi správce maximálně po dobu 10 let. Odvolání souhlasu s uložením a zpracováním poskytnutých dat lze e-mailem na info@bydlisnami.cz. V případě podezření na neoprávněné použití Vámi poskytnutých údajů máte právo předat podnět k šetření Úřadu pro ochranu osobních údajů. Více informací
Chystáte se prodat nemovitost?
Pomůžeme Vám!

Inzerát si prohlédlo 39 lidí

Prodejce

Iva Mareška

Iva Mareška

Hlídací pes

Chcete dostávat emailem podobné nabídky prodeje rodinných domů v Vladislavi?

Podobné nemovitosti