Prodej bytu 4+1, Praha - Troja, Mazurská, 92 m2 (ID: 2495327)

Mazurská, Praha, Troja

10 350 000 Kč /za nemovitost HYPOTÉKA od 46 258 Kč /za měsíc
Doporučené firmy v Praze 8

Stěhovací služby

Výkup a prodej starého nábytku

Informace k bytu

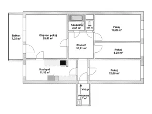
Nabízíme Vám k prodeji prostorný byt o dispozici 4+1 a celkové výměře 92 m2, který se nachází ve 2. patře udržovaného panelového domu s prostorným výtahem, v oblíbené a klidné lokalitě Praha 8 -Troja – ulice Mazurská.
Byt je určen k rekonstrukci dle vlastních potřeb, ale jinak je v dobrém stavu. Dům je po kompletní revitalizaci.
Dispozice zahrnuje čtyři samostatné pokoje, kuchyň, předsíň, koupelnu (zděné jádro), samostatné WC a prostornou atypickou zasklenou lodžii. K bytu náleží také sklepní kóje (2,8 m2). Byt je orientován na dvě světové strany – jih a sever. Vytápění zajišťuje centrální dálkový systém.
Lokalita Troja je velmi vyhledávaná díky své klidné atmosféře, množství zeleně a výborné dostupnosti do centra města.
Jedná se o skvělou lokalitu pro milovníky komfortu, zeleně a klidu. Před domem autobusová zastávka Poliklinika Mazurská - 7 minut u metra C- Kobylisy. Do centra města se dostanete za 20 minut autem a 35 minut městskou hromadnou dopravou. Botanická zahrada je pár minut chůze (můžete ji využívat jako park, sousedské permanentky za sto korun ročně), zoologická zahrada pár minut chůze. V blízkém okolí je spousta zeleně, včetně pražské ZOO a botanické zahrady. V pěší vzdálenosti najdete Mateřskou i základní školu, Gymnázium Ústavní, knihovnu, lékárnu, parky, Polikliniku Mazurská, poštu, Supermarkety (Albert, Billa, Penny i Lidl), restaurace a další obchody a služby. V blízkosti je i nové obchodní centrum Krakov, nebo Aquacentrum Šutka.
V případě zájmu o prohlídku či více informací mne neváhejte kontaktovat.

Parametry bytu

Cena
10 350 000 Kč /za nemovitost Spočítat hypotéku
Aktualizováno
9. 12. 2025
Adresa
Mazurská, Praha, Troja
ID
MAT 432
Stavba
Panelová
Stav objektu
Velmi dobrý
Patro
3.
Vlastnictví
Osobní
Užitná plocha
92 m2
Sklep
Lodžie

Kontaktovat makléře

Máte zájem o tento byt?

Tímto, v souladu s nařízením Evropského parlamentu a Rady (EU) 2016/679, v platném znění, prohlašuji, že mi je alespoň 16 let a uděluji tak svůj souhlas se zpracováním zadaných údajů (jméno, telefon, e-mail, ip adresa) společnosti B3 Technology, s.r.o., IČ: 07330600, se sídlem Novostavby 126/23, 435 11 Lom (správce dat), za účelem předání dotazu z tohoto formuláře Vámi vybranému inzerentovi a zpětného kontaktování mé osoby. Osobní údaje bude správce zpracovávat manuálně i automaticky přímo prostřednictvím svých zaměstnanců. Informace předané tímto formulářem budou uloženy v databázi správce maximálně po dobu 10 let. Odvolání souhlasu s uložením a zpracováním poskytnutých dat lze e-mailem na info@bydlisnami.cz. V případě podezření na neoprávněné použití Vámi poskytnutých údajů máte právo předat podnět k šetření Úřadu pro ochranu osobních údajů. Více informací
Chystáte se prodat nemovitost?
Pomůžeme Vám!

Inzerát si prohlédlo 10 lidí

Prodejce

Andrea Matoušková

Andrea Matoušková

Hlídací pes

Chcete dostávat emailem podobné nabídky prodeje bytů 4+1 v Praze 8?

Podobné nemovitosti