Pronájem kanceláře, Kunovice, Na Záhonech, 500 m2

Na Záhonech, Kunovice

Cena na vyžádání /za metr čtvereční / rok Získejte výhodnou HYPOTÉKU

(volejte makléři, cena bez energií., bez DPH, bez poplatků, včetně právního servisu, cena k jednání)

Doporučené firmy v Kunovicích

Informace k nemovitosti

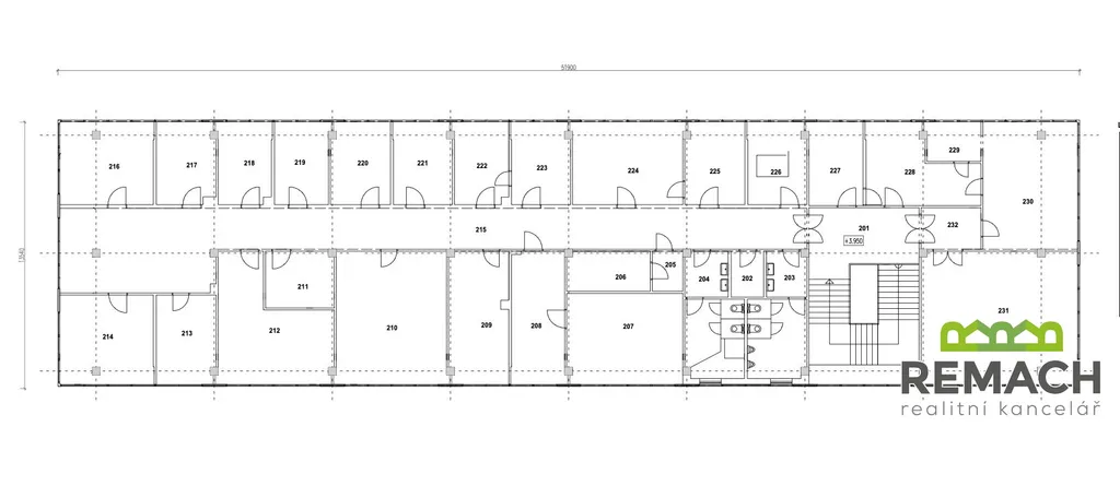
Pronájem kancelářských prostor – ulice Na Záhonech, Kunovice

Nabízíme k pronájmu administrativní kancelářské prostory v komerčním areálu na ulici Na Záhonech v Kunovicích. Objekt prochází kompletní rekonstrukcí, která zajistí moderní standard a komfortní pracovní prostředí.

Aktuálně je k dispozici 18 samostatných kanceláří různých velikostí. Prostory budou připraveny k nastěhování od února 2026.

Výhody a vybavení:

modernizovaná administrativní budova

možnost parkování v areálu

uzavřený a hlídaný areál – bezpečný přístup

možnost pronájmu skladovacích či výrobních prostor ve stejném areálu

vhodné pro firmy i živnostníky, sídla firem nebo servisní pracoviště

Lokalita nabízí velmi dobrou dostupnost z hlavní komunikace a návaznost na průmyslovou část Kunovic.

Ideální příležitost pro společnosti hledající kvalitní kancelářské zázemí s možností rozšíření o další provozní plochy.

Rádi vám poskytneme více informací k dostupným kancelářím včetně půdorysů a cenových možností.
Neváhejte nás kontaktovat pro rezervaci prostoru nebo schůzku.

Parametry nemovitosti

Cena
Cena na vyžádání
Poznámka k ceně
volejte makléři, cena bez energií., bez DPH, bez poplatků, včetně právního servisu, cena k jednání
Aktualizováno
10. 12. 2025
Adresa
Na Záhonech, Kunovice
ID
03414
Stavba
Panelová
Stav objektu
Po rekonstrukci
Patro
2. z 2
Vybaveno
Částečně
Typ objektu
Patrový
Druh objektu
Samostatný
Lokalita objektu
Klidná část obce
Užitná plocha
500 m2
Třída energetické náročnosti
G - Mimořádně nehospodárná
Elektřina
230V
Plyn
Plynovod
Odpad
Veřejná kanalizace
Topení
Ústřední plynové
Komunikace
Asfaltová
Telekomunikace
Telefon, Internet, Kabelové rozvody
Doprava
Vlak, Dálnice, Silnice, Autobus
Voda
Vodovod
Výtah
Parkování

Kontaktovat makléře

Realitní kancelář

Logo REMACH s.r.o.

REMACH s.r.o.

Palackého náměstí 175, Uherské Hradiště

Chystáte se prodat nemovitost?
Pomůžeme Vám!

Máte zájem o tuto nemovistost?

Tímto, v souladu s nařízením Evropského parlamentu a Rady (EU) 2016/679, v platném znění, prohlašuji, že mi je alespoň 16 let a uděluji tak svůj souhlas se zpracováním zadaných údajů (jméno, telefon, e-mail, ip adresa) společnosti B3 Technology, s.r.o., IČ: 07330600, se sídlem Novostavby 126/23, 435 11 Lom (správce dat), za účelem předání dotazu z tohoto formuláře Vámi vybranému inzerentovi a zpětného kontaktování mé osoby. Osobní údaje bude správce zpracovávat manuálně i automaticky přímo prostřednictvím svých zaměstnanců. Informace předané tímto formulářem budou uloženy v databázi správce maximálně po dobu 10 let. Odvolání souhlasu s uložením a zpracováním poskytnutých dat lze e-mailem na info@bydlisnami.cz. V případě podezření na neoprávněné použití Vámi poskytnutých údajů máte právo předat podnět k šetření Úřadu pro ochranu osobních údajů. Více informací
Chystáte se prodat nemovitost?
Pomůžeme Vám!

Inzerát si prohlédlo 4 lidí

Prodejce

Roman Musil

Roman Musil

Hlídací pes

Chcete dostávat emailem podobné nabídky pronájmu kanceláří v Kunovicích (okr. Uherské Hradiště)?

Podobné nemovitosti