Prodej rodinného domu, Nová Ves, 375 m2

Nová Ves u Albrechtic

24 990 000 Kč /za nemovitost HYPOTÉKA od 111 690 Kč /za měsíc
Doporučené firmy v Nové Vsi

Informace k domu

Rodinný dům 5KK 375m2, pozemek 73573m², stavební pozemek uprostřed lesa a rybníka 7,36 ha, Nová Ves – Žďárský rybník

Výhradně vám nabízíme jedinečný projekt samostatného rodinného domu na výjimečném místě Nová Ves – Žďárský rybník u Týniště nad Orlicí, a to včetně platného stavebního povolení na rodinný dům s vedlejším objektem. Součástí nabídky je rozlehlý pozemek o celkové výměře 73 573 m², ze tří stran lemovaný lesem, s nádherným výhledem na Žďárský rybník. Z toho cca 3 500 m² je určeno pro výstavbu.
Pokud netoužíte po životě ve městě a láká vás klid, příroda, lesy a louky na dosah, pak je toto místo pro vás jako stvořené. Pozemek nabízí soukromí, klid a krásné výhledy do okolní krajiny. Přesto je veškerá občanská vybavenost na dosah – Týniště nad Orlicí je vzdálené 4 km a nájezd na dálnici D11 pouhých 15 km.

Popis pozemku
Celková výměra: 73 573 m², rozděleno na:
1) Stavební pozemek – cca 3 500 m²
V územním plánu veden jako plochy smíšené obytné – venkovské (SV), umožňující:
• výstavbu rodinného domu,
• drobnou podnikatelskou činnost,
• občanskou vybavenost a další.
Regulativy územního plánu:
• maximální výška zástavby: 9 m
• minimální výměra stavebních pozemků: 1 400 m²
• koeficient zastavění: max. 35 %
2) Přírodní a zemědělský pozemek – 67 628 m²
V územním plánu veden jako plochy přírodní a zemědělské (NS)
3) Lesní plocha – 444 m²
V územním plánu jako plochy lesní (NL).
4) Plocha dopravní infrastruktury – 2 001 m²

Stavební povolení a projekt
Na pozemku 362/1 je vydané a pravomocné stavební povolení pro:
• novostavbu rodinného domu včetně technické infrastruktury,
• doplňkové stavby (hospodářský objekt, kryté stání, krytá terasa),
• sjezd a zpevněné plochy,
• vsakovací zařízení,
• oplocení, terénní a sadové úpravy,
• demolici původní zemědělské stavby.
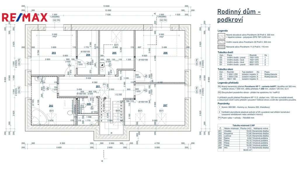
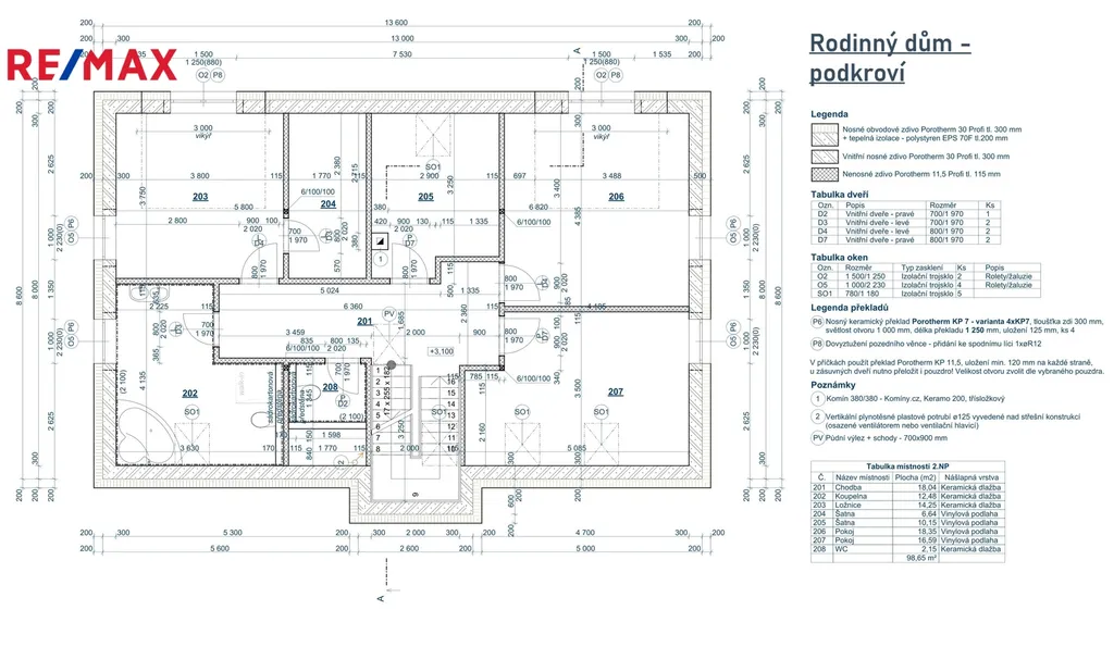
Projektovaný rodinný dům - PENB "A" mimořádně úsporné:
• dispozice: 5+KK,
• obytné podkroví,
• užitná plocha: 194,5 m²,
• krytá terasa: 45 m²,
• kryté stání: 45 m²,
• vedlejší hospodářský objekt 180 m².
Vytápění je řešeno tepelným čerpadlem vzduch–voda.
Na pozemku se již nachází:
• vrtaná studna (48 m),
• elektrická přípojka – sloupek na hranici pozemku,
• domácí ČOV (řešení kanalizace).
Veškerá stavební dokumentace je k nahlédnutí, projekt je již povolen.

Výjimečné místo plné klidu
Pozemek je skrytý před okolním děním, nabízí naprosté soukromí, ticho a atmosféru, kterou jinde nenajdete. Ideální pro okamžitou výstavbu jednoho či více rodinných domů — projekt lze upravit, případně realizovat nový dle vašich představ. Nejdelší strana pozemku sousedí s rybníkem, který nabízí nádherný a ničím nerušený výhled.
Možnosti využití jsou opravdu široké. Ideální, klidná lokalita pro chov koní nebo pro založení vlastní farmy.

Dle územního plánu jsou možné změny projektu, jeho rozšíření i zcela nový projekt podle Vašich představ.
Pokud vás nabídka zaujala, rád vás osobně provedu pozemkem v obci Nová Ves. Těším se na setk Prodávající si vyhrazuje právo vybrat kupujícího na základě jím zvolených kritérií.

Parametry domu

Cena
24 990 000 Kč /za nemovitost Spočítat hypotéku
Aktualizováno
16. 4. 2026
Adresa
Nová Ves u Albrechtic
ID
305-NP00853
Stavba
Cihlová
Stav objektu
Projekt
Vybaveno
Ne
Typ objektu
Patrový
Druh objektu
Samostatný
Lokalita objektu
Samota
Užitná plocha
375 m2
Zastavěná plocha
306 m2
Podlahová plocha
375 m2
Plocha pozemku
73573 m2
Plocha zahrady
73573 m2
Třída energetické náročnosti
A - Mimořádně úsporná
Ukazatel energetické náročnosti
53 kWh/m2 za rok
Elektřina
230V, 400V
Odpad
ČOV pro celý objekt
Voda
Místní zdroj vody, Studna
Převod do OV
Parkování

Kontaktovat makléře

Realitní kancelář

RE/MAX Infinity

Masarykovo náměstí 392/14, Hradec Králové

Chystáte se prodat nemovitost?
Pomůžeme Vám!

Máte zájem o tento dům?

Tímto, v souladu s nařízením Evropského parlamentu a Rady (EU) 2016/679, v platném znění, prohlašuji, že mi je alespoň 16 let a uděluji tak svůj souhlas se zpracováním zadaných údajů (jméno, telefon, e-mail, ip adresa) společnosti B3 Technology, s.r.o., IČ: 07330600, se sídlem Novostavby 126/23, 435 11 Lom (správce dat), za účelem předání dotazu z tohoto formuláře Vámi vybranému inzerentovi a zpětného kontaktování mé osoby. Osobní údaje bude správce zpracovávat manuálně i automaticky přímo prostřednictvím svých zaměstnanců. Informace předané tímto formulářem budou uloženy v databázi správce maximálně po dobu 10 let. Odvolání souhlasu s uložením a zpracováním poskytnutých dat lze e-mailem na info@bydlisnami.cz. V případě podezření na neoprávněné použití Vámi poskytnutých údajů máte právo předat podnět k šetření Úřadu pro ochranu osobních údajů. Více informací
Chystáte se prodat nemovitost?
Pomůžeme Vám!

Inzerát si prohlédlo 10 lidí

Prodejce

Filip Boudyš

Filip Boudyš

Hlídací pes

Chcete dostávat emailem podobné nabídky prodeje rodinných domů v Nové Vsi (okr. Rychnov nad Kněžnou)?

Podobné nemovitosti