Pronájem bytu 3+1, Praha - Holešovice, Milady Horákové, 100 m2 (ID: 2497888)

Milady Horákové, Praha, Holešovice

39 000 Kč /za měsíc Získejte výhodnou HYPOTÉKU

(+ poplatky dle počtu osob a vlastní spotřeby)

Doporučené firmy v Praze 7

Stěhovací služby

Výkup a prodej starého nábytku

Informace k bytu

Designový byt k pronájmu v srdci Letné. Byt, který voní novotou. Ve výhradním zastoupení vlastníka vám nabízím k dlouhodobému pronájmu reprezentativní a velmi prakticky dispozičně řešený byt, který právě prošel kompletní nákladnou rekonstrukcí pod taktovkou architektů z Abtsmolen studio, při které byl kladen důraz na citlivé zachování dobových detailů při současném zajištění komfortního městského bydlení.
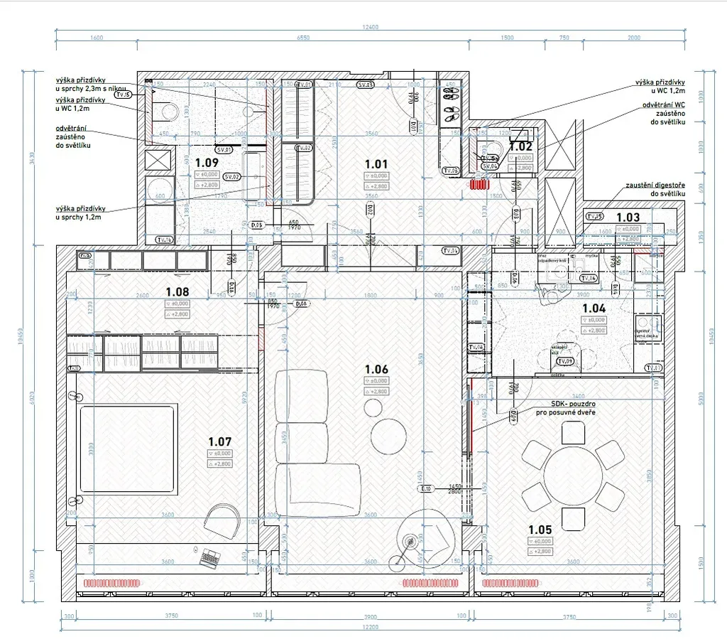
Z prostorné vstupní haly jsou samostatné vstupy do všech obytných i technických částí bytu. Originální truhlářské prvky, kuchyňská linka, vestavěné skříně od výrobce CZ Interiér.
Obývací pokoj tvoří centrální část bytu a je propojen jak s ložnicí, tak i s dalším pokojem resp. s jídelnou. Designovou originalitu podtrhuje nová kuchyňská linka s vestavěnými spotřebiči zn. Miele. Lednice s mrazákem, myčka nádobí, digestoř, sklokeramická varná deska, el. trouba. Moderní koupelna s "walk-in" sprchovým koutem a podomítkovými bateriemi, místem pro pračku i sušičku, dvojitým umyvadlem a závěsným WC. Sanita a zařizovací předměty zn. Laufen, Grohe, Geberit, Optima. Ve vstupní hale a všech obytných místnostech jsou položeny nové masivní dubové parkety, dále pak velkoformátová dlažba. Jak je patrné z přiloženého půdorysu, součástí bytu je i šatna s dostatkem úložných prostor, komora a další samostatné WC. Byt lze po dohodě vybavit nábytkem dle návrhu architekta (není zahrnuto v ceně). Centrální etážové vytápění i ohřev vody bez nutnosti obsluhy a údržby kotle. Byt se nachází ve 3. patře (výtah) udržovaného funkcionalistického činžovního domu a je orientován směrem k jihu do ulice Milady Horákové, je tak velmi slunný a světlý. Naprostý komfort zajišťují nová dřevěná okna s izolačními trojskly. Unikátní lokalita - Letná je právem považována za jednu z nejžádanějších pražských čtvrtí. Spojuje klidné rezidenční bydlení, živou komunitní atmosféru a mimořádnou občanskou vybavenost. V okolí najdete rozlehlé parky Stromovka a Letenské sady – ideální pro sport i odpočinek, kulturní centra jako Bio OKO, La Fabrika, Národní technické muzeum nebo Národní galerie. Školy, školky, obchody, typické letenské kavárny a restaurace, lékařskou péči a další služby - vše máte opravdu na dosah. Skvělá dopravní dostupnost - tramvajová zastávka Kamenická jen 50 m od domu. Tramvaje č. 1, 8, 12, 25, 26, 91, 96, stanice metra Hradčanská (A) a Vltavská (C) do 10 minut. Historické centrum města pár minut od domu. Byt je ideální pro 2-3 osoby a je ihned k nastěhování. Vzhledem k nesporné hodnotě nemovitosti požaduje majitel vratnou jistotu (kauci) ve výši 80.000 Kč. Provize RK měsíční nájemné + DPH. Nový nájemce bude prvním obyvatelem po právě dokončené rekonstrukci. Hledáte-li výjimečné bydlení v noblesní čtvrti s duší a kompletní vybaveností na dosah, tento byt je pro vás ideální volbou. Neváhejte mě kontaktovat pro více informací či domluvení osobní prohlídky.

Parametry bytu

Cena
39 000 Kč /za měsíc
Poznámka k ceně
+ poplatky dle počtu osob a vlastní spotřeby
Aktualizováno
12. 12. 2025
Adresa
Milady Horákové, Praha, Holešovice
ID
N139644
Stavba
Cihlová
Stav objektu
Velmi dobrý
Patro
4. z 7
Vybaveno
Částečně
Lokalita objektu
Centrum obce
Vlastnictví
Osobní
Užitná plocha
100 m2
Podlahová plocha
100 m2
Třída energetické náročnosti
G - Mimořádně nehospodárná
Elektřina
230V
Topení
Ústřední dálkové
Telekomunikace
Internet, Kabelová televize
Doprava
Silnice, MHD
Voda
Vodovod
Výtah

Kontaktovat makléře

Máte zájem o tento byt?

Tímto, v souladu s nařízením Evropského parlamentu a Rady (EU) 2016/679, v platném znění, prohlašuji, že mi je alespoň 16 let a uděluji tak svůj souhlas se zpracováním zadaných údajů (jméno, telefon, e-mail, ip adresa) společnosti B3 Technology, s.r.o., IČ: 07330600, se sídlem Novostavby 126/23, 435 11 Lom (správce dat), za účelem předání dotazu z tohoto formuláře Vámi vybranému inzerentovi a zpětného kontaktování mé osoby. Osobní údaje bude správce zpracovávat manuálně i automaticky přímo prostřednictvím svých zaměstnanců. Informace předané tímto formulářem budou uloženy v databázi správce maximálně po dobu 10 let. Odvolání souhlasu s uložením a zpracováním poskytnutých dat lze e-mailem na info@bydlisnami.cz. V případě podezření na neoprávněné použití Vámi poskytnutých údajů máte právo předat podnět k šetření Úřadu pro ochranu osobních údajů. Více informací
Chystáte se prodat nemovitost?
Pomůžeme Vám!

Inzerát si prohlédlo 2 lidí

Prodejce

Jan Kašpar

Jan Kašpar

Hlídací pes

Chcete dostávat emailem podobné nabídky pronájmu bytů 3+1 v Praze 7?

Podobné nemovitosti