Pronájem kanceláře, Praha - Nové Město, Opletalova, 91 m2 (ID: 2499617)

Opletalova, Praha, Nové Město

32 185 Kč /za měsíc Získejte výhodnou HYPOTÉKU

(+ popl. paušál 3.098,00 Kč + topení 2.733,00 Kč + elektřina, voda, ohřev vody a odvoz odpadu 500,00 Kč/měs./os. Uvedené ceny jsou bez DPH)

Doporučené firmy v Praze 1

Stěhovací služby

Výkup a prodej starého nábytku

Informace k nemovitosti

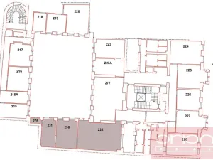
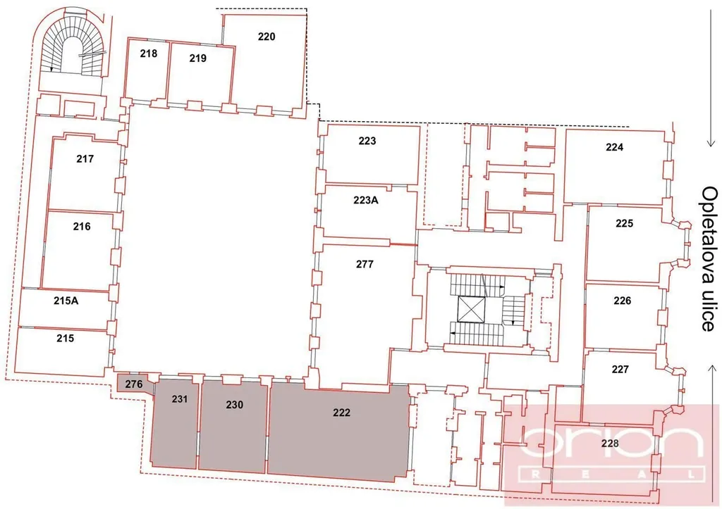
Nabízíme k pronájmu kancelářské prostory o celkové velikosti 91,10 m2 ve 3. patře zrekonstruované budovy ve vyhledávané lokalitě Praha 1 - Nové Město. Kancelářský prostor tvoří 3 místnosti vedle sebe situované do tichého dvora s vlastní kuchyňkou a toaletou. K vybavení patří klimatizace, žaluzie, koberce. Možnost doplnit pracovní stoly. Budova se nachází pouze pár kroků od stanice metra Muzeum přímo na Václavském náměstí a blízko nájezdu na magistrálu. V budově je recepce a 24/7 ostraha. K dispozici ihned, prohlídky na vyžádání.

Parametry nemovitosti

Cena
32 185 Kč /za měsíc
Poznámka k ceně
+ popl. paušál 3.098,00 Kč + topení 2.733,00 Kč + elektřina, voda, ohřev vody a odvoz odpadu 500,00 Kč/měs./os. Uvedené ceny jsou bez DPH
Aktualizováno
15. 12. 2025
Adresa
Opletalova, Praha, Nové Město
ID
009071
Stavba
Cihlová
Stav objektu
Velmi dobrý
Patro
3. z 3
Vybaveno
Ne
Typ objektu
Patrový
Lokalita objektu
Centrum obce
Užitná plocha
91 m2
Zastavěná plocha
91 m2
Podlahová plocha
91 m2
Třída energetické náročnosti
G - Mimořádně nehospodárná
Komunikace
Dlážděná, Asfaltová
Telekomunikace
Internet, Kabelové rozvody
Doprava
Vlak, Dálnice, Silnice, MHD
Výtah
Bezbarierový přístup

Kontaktovat makléře

Máte zájem o tuto nemovistost?

Tímto, v souladu s nařízením Evropského parlamentu a Rady (EU) 2016/679, v platném znění, prohlašuji, že mi je alespoň 16 let a uděluji tak svůj souhlas se zpracováním zadaných údajů (jméno, telefon, e-mail, ip adresa) společnosti B3 Technology, s.r.o., IČ: 07330600, se sídlem Novostavby 126/23, 435 11 Lom (správce dat), za účelem předání dotazu z tohoto formuláře Vámi vybranému inzerentovi a zpětného kontaktování mé osoby. Osobní údaje bude správce zpracovávat manuálně i automaticky přímo prostřednictvím svých zaměstnanců. Informace předané tímto formulářem budou uloženy v databázi správce maximálně po dobu 10 let. Odvolání souhlasu s uložením a zpracováním poskytnutých dat lze e-mailem na info@bydlisnami.cz. V případě podezření na neoprávněné použití Vámi poskytnutých údajů máte právo předat podnět k šetření Úřadu pro ochranu osobních údajů. Více informací
Chystáte se prodat nemovitost?
Pomůžeme Vám!

Inzerát si prohlédlo 17 lidí

Prodejce

Dagmar Suchardová, ORION Realit, s.r.o.

Dagmar Suchardová, ORION Realit, s.r.o.

Hlídací pes

Chcete dostávat emailem podobné nabídky pronájmu kanceláří v Praze 1?

Podobné nemovitosti