Prodej rodinného domu, Hořátev, 140 m2

Hořátev

Cena na vyžádání /za nemovitost Získejte výhodnou HYPOTÉKU

(cena včetně provize a právního servisu)

Doporučené firmy v Hořátvi

Informace k domu

Dumrealit.cz Vám zprostředkuje prodej prostorného rodinného domu, se zahradou, garáží a dílnou v obci Hořátev, vzdálené 4 km od Nymburka. Dům se nachází v klidné části obce, na konci slepé ulice. V blízkosti se nachází dostatek zeleně. V ulici je fotbalové hřiště k sportovnímu vyžití.
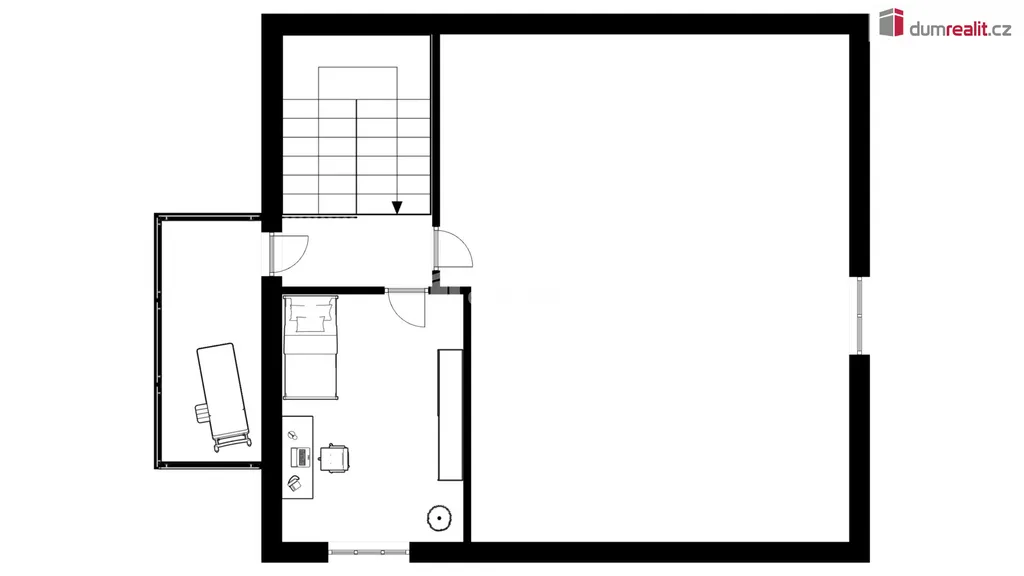
Jedná se o dům z roku 1974, dispozičně řešený jako 4+1. Je částečně podsklepený a kompletně vyklizený. Zastavěná plocha domu je 140 m², garáže a chlívků 51 m², dílny 31 m². Celková výměra pozemku včetně zastavěné plochy je 1249 m². Samotná zahrada má 1027 m².
V 1.NP se nachází: vstupní veranda , samostatné WC , chodba, 3 pokoje, kuchyň, koupelna se sprchovým koutem, vanou a další toaletou, vstup do sklepa a do patra.
Ve 2.NP: schodiště s východem na terasu, jeden pokoj a prostorná půda, kde lze případně vybudovat další pokoj.
Dům je napojený na obecní vodovodní řád, kanalizaci a elektřinu. Na pozemku je k dispozici také studna. Vytápění je zajištěno kotlem na tuhá paliva , se zásobníkem na uhlí nebo dřevěné pelety. K dispozici 2 komíny. Okna jsou dřevěná, pouze v koupelně plastová. Na podlahách jsou v pokojích parkety, v koupelně a na chodbě dlažba.
Koupi této nemovitosti doporučuji nejen vzhledem k jejímu umístění, ale i možnosti rekonstrukce dle představ nového majitele a dům si tak přizpůsobit vlastním potřebám. V obci se nachází velmi dobrá občanská vybavenost - mateřská i základní škola (1.stupeň), obchod s potravinami a obecní úřad .
Výborné dopravní spojení do Prahy - po dálnici D11 (Praha Černý Most - 39 km). V případě zájmu o prohlídku, kontaktujte makléřku nemovitosti. Cena k jednání. Ev. číslo: 653274.

Parametry domu

Cena
Cena na vyžádání Spočítat hypotéku
Poznámka k ceně
cena včetně provize a právního servisu
Aktualizováno
27. 3. 2026
Adresa
Hořátev
ID
653888
Stavba
Cihlová
Stav objektu
Před rekonstrukcí
Typ objektu
Patrový
Druh objektu
Samostatný
Lokalita objektu
Klidná část obce
Užitná plocha
140 m2
Zastavěná plocha
140 m2
Podlahová plocha
140 m2
Plocha pozemku
1249 m2
Třída energetické náročnosti
G - Mimořádně nehospodárná
Topení
Lokální tuhá paliva
Garáž
Sklep
Terasa

Kontaktovat makléře

Máte zájem o tento dům?

Tímto, v souladu s nařízením Evropského parlamentu a Rady (EU) 2016/679, v platném znění, prohlašuji, že mi je alespoň 16 let a uděluji tak svůj souhlas se zpracováním zadaných údajů (jméno, telefon, e-mail, ip adresa) společnosti B3 Technology, s.r.o., IČ: 07330600, se sídlem Novostavby 126/23, 435 11 Lom (správce dat), za účelem předání dotazu z tohoto formuláře Vámi vybranému inzerentovi a zpětného kontaktování mé osoby. Osobní údaje bude správce zpracovávat manuálně i automaticky přímo prostřednictvím svých zaměstnanců. Informace předané tímto formulářem budou uloženy v databázi správce maximálně po dobu 10 let. Odvolání souhlasu s uložením a zpracováním poskytnutých dat lze e-mailem na info@bydlisnami.cz. V případě podezření na neoprávněné použití Vámi poskytnutých údajů máte právo předat podnět k šetření Úřadu pro ochranu osobních údajů. Více informací
Chystáte se prodat nemovitost?
Pomůžeme Vám!

Inzerát si prohlédlo 9 lidí

Prodejce

Zlatica Kožáková

Zlatica Kožáková

Hlídací pes

Chcete dostávat emailem podobné nabídky prodeje rodinných domů v Hořátvi?

Podobné nemovitosti