Prodej rodinného domu, Červené Pečky, Na Vyhlídce, 101 m2

Na Vyhlídce, Červené Pečky

9 550 000 Kč /za nemovitost HYPOTÉKA od 42 683 Kč /za měsíc
Doporučené firmy v Červených Pečkách

Pojištění a finance

Informace k domu

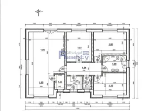
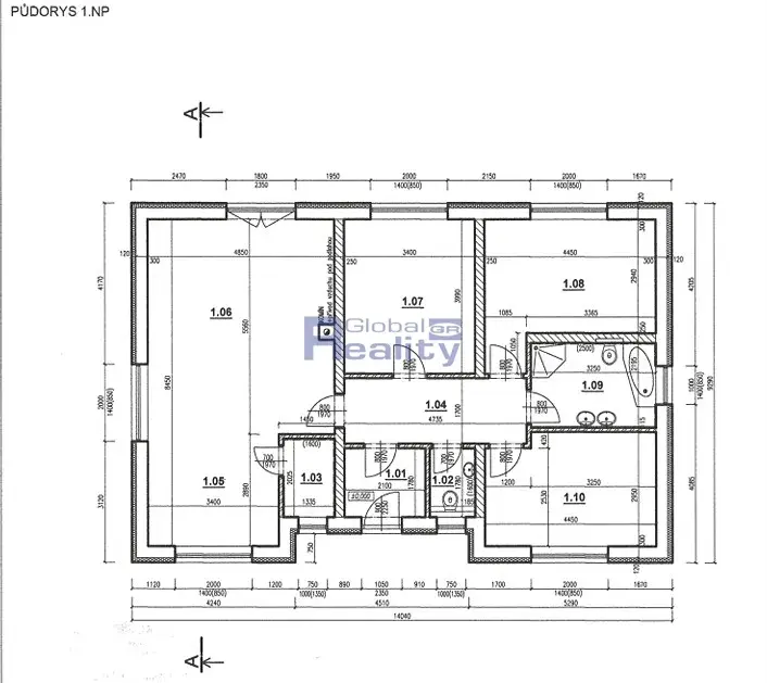
4707 - Zděný, samostatně stojící rodinný dům o velikosti 4+1, vybudovaný před 5 lety na pozemku o celkové výměře 922m2 v nové zástavbě rodinných domů. Dispozice: zádveří, chodba, obývací pokoj s jídelnou, kuchyň, komora, 3 pokoje, WC a koupelna. Dům je napojen na veškeré inženýrské sítě. Velmi dobrý stav, pěkné místo, atraktivní lokalita.
V případě zájmu volejte makléře.

Parametry domu

Cena
9 550 000 Kč /za nemovitost Spočítat hypotéku
Aktualizováno
21. 4. 2026
Adresa
Na Vyhlídce, Červené Pečky
ID
4707
Stavba
Cihlová
Stav objektu
Velmi dobrý
Druh objektu
Samostatný
Užitná plocha
101 m2
Zastavěná plocha
131 m2
Podlahová plocha
101 m2
Plocha pozemku
922 m2
Třída energetické náročnosti
B - Velmi úsporná
Elektřina
230V
Odpad
Veřejná kanalizace
Komunikace
Dlážděná
Voda
Vodovod
Topné těleso
Podlahové vytápění
Zdroj topení
Elektrokotel
Zdroj teplé vody
Bojler - elektro
Garáž

Kontaktovat makléře

Máte zájem o tento dům?

Tímto, v souladu s nařízením Evropského parlamentu a Rady (EU) 2016/679, v platném znění, prohlašuji, že mi je alespoň 16 let a uděluji tak svůj souhlas se zpracováním zadaných údajů (jméno, telefon, e-mail, ip adresa) společnosti B3 Technology, s.r.o., IČ: 07330600, se sídlem Novostavby 126/23, 435 11 Lom (správce dat), za účelem předání dotazu z tohoto formuláře Vámi vybranému inzerentovi a zpětného kontaktování mé osoby. Osobní údaje bude správce zpracovávat manuálně i automaticky přímo prostřednictvím svých zaměstnanců. Informace předané tímto formulářem budou uloženy v databázi správce maximálně po dobu 10 let. Odvolání souhlasu s uložením a zpracováním poskytnutých dat lze e-mailem na info@bydlisnami.cz. V případě podezření na neoprávněné použití Vámi poskytnutých údajů máte právo předat podnět k šetření Úřadu pro ochranu osobních údajů. Více informací
Chystáte se prodat nemovitost?
Pomůžeme Vám!
Theleadway banner

Inzerát si prohlédlo 18 lidí

Prodejce

Jaroslav Menc

Jaroslav Menc

Hlídací pes

Chcete dostávat emailem podobné nabídky prodeje rodinných domů v Červených Pečkách?

Podobné nemovitosti