Pronájem kanceláře, Český Těšín, Nová Tovární, 1053 m2

Nová Tovární, Český Těšín

3 500 Kč /za měsíc Získejte výhodnou HYPOTÉKU
Doporučené firmy v Českém Těšíně

Pojištění a finance

Informace k nemovitosti

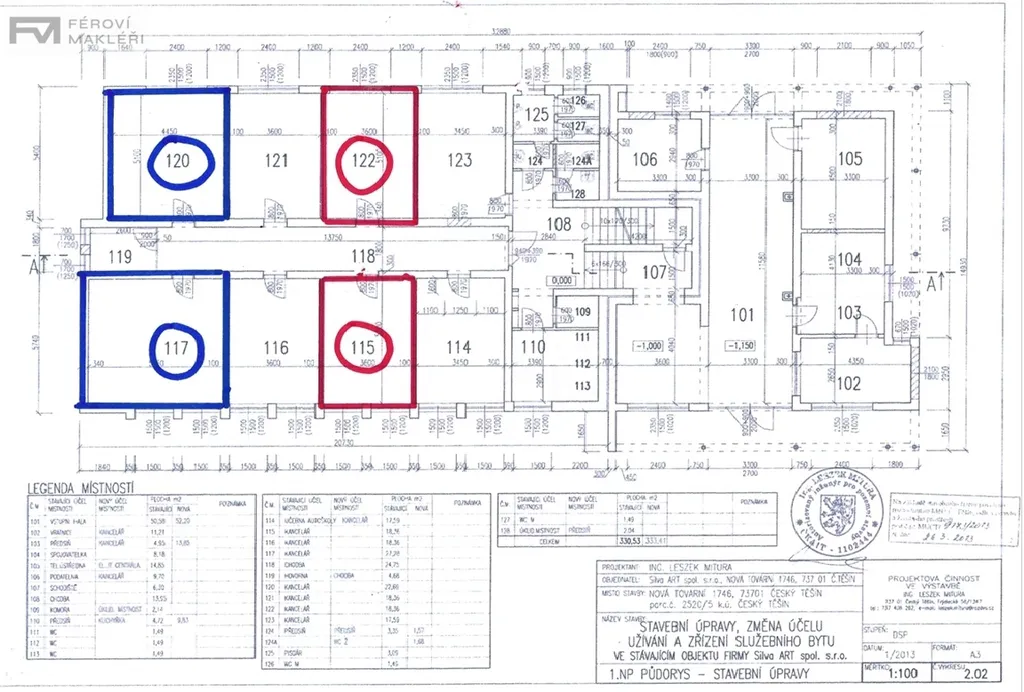
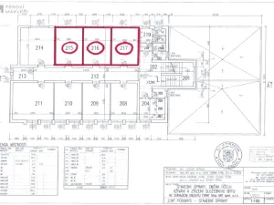
Nabízíme pronájem nebytových prostor na zajímavé adrese za rozumnou cenu. Komerční prostory se nacházejí v oploceném areálu v Českém Těšíně na ulici Nova Tovární. Jedná se o bezpečnou lokalitu s dostatkem parkovacích míst v areálu i mimo areál v těsné blízkosti pronajatých místností. Prostor v budově lze využít jako kanceláře, sklad, dílnu, ateliér nebo provozovnu. Jedná se o 4 místnosti v přízemí, 3 místnosti v prvním patře a 1 velká místnost ve druhém patře. Velikost místností je označena barevně na půdorysu, Červeně do 18 m2 - místnosti č. 115, 122, 215, 216, 217. Modře do 26 m2 místnosti č. 117 a č. 120. Zeleně 76 m2 místnost č. 307. Cena pronájmu včetně vytápění a internetového připojení a používání společné kuchyňky na chodbě a oddělených WC pro muže a ženy je za místnosti 18 m2 3500,- Kč/měsíc, za místnosti do 26 m2 4500,- Kč/měsíc a za největší místnost o velikosti 76,7 m2 je 12000,- Kč/měsíc. Spotřebu elektřiny, vody a tepla si platí nájemce dle vyúčtování skutečné spotřeby. Ke každému pronájmu je povinná měsíční platba za úklid v budově (mytí chodby, schodů, oken, dveří, kuchyňky, wc), údržba zeleně a odklízení sněhu 1000,- Kč. Pokud si nájemce pronajme více kanceláří, bude poskytnuta sleva. Provize RK v ceně jednoho nájmu platí nájemce. V areálu není kantýna, ale je možnost objednat si dovážku jídla dle denní nabídky.

Parametry nemovitosti

Cena
3 500 Kč /za měsíc
Aktualizováno
9. 4. 2026
Adresa
Nová Tovární, Český Těšín
ID
1746
Stavba
Cihlová
Stav objektu
Velmi dobrý
Patro
1. z 4
Vybaveno
Ne
Typ objektu
Patrový
Lokalita objektu
Klidná část obce
Užitná plocha
1053 m2
Zastavěná plocha
456 m2
Podlahová plocha
1053 m2
Třída energetické náročnosti
G - Mimořádně nehospodárná
Plyn
Plynovod
Odpad
Veřejná kanalizace
Komunikace
Asfaltová
Telekomunikace
Internet
Doprava
Vlak, Dálnice, Silnice, MHD, Autobus
Převod do OV

Kontaktovat makléře

Máte zájem o tuto nemovistost?

Tímto, v souladu s nařízením Evropského parlamentu a Rady (EU) 2016/679, v platném znění, prohlašuji, že mi je alespoň 16 let a uděluji tak svůj souhlas se zpracováním zadaných údajů (jméno, telefon, e-mail, ip adresa) společnosti B3 Technology, s.r.o., IČ: 07330600, se sídlem Novostavby 126/23, 435 11 Lom (správce dat), za účelem předání dotazu z tohoto formuláře Vámi vybranému inzerentovi a zpětného kontaktování mé osoby. Osobní údaje bude správce zpracovávat manuálně i automaticky přímo prostřednictvím svých zaměstnanců. Informace předané tímto formulářem budou uloženy v databázi správce maximálně po dobu 10 let. Odvolání souhlasu s uložením a zpracováním poskytnutých dat lze e-mailem na info@bydlisnami.cz. V případě podezření na neoprávněné použití Vámi poskytnutých údajů máte právo předat podnět k šetření Úřadu pro ochranu osobních údajů. Více informací
Chystáte se prodat nemovitost?
Pomůžeme Vám!
Theleadway banner

Inzerát si prohlédlo 16 lidí

Prodejce

Bc. Šárka Otipková

Bc. Šárka Otipková

Hlídací pes

Chcete dostávat emailem podobné nabídky pronájmu kanceláří v Českém Těšíně?

Podobné nemovitosti