Prodej bytu 2+kk, Šlapanice, 67 m2 (ID: 2506741)

Šlapanice

9 993 930 Kč /za nemovitost HYPOTÉKA od 44 667 Kč /za měsíc

(včetně DPH, včetně poplatků, včetně provize, včetně právního servisu)

Doporučené firmy v Šlapanicích

Informace k bytu

V rámci projektu Nové Šlapanice, který vyrůstá na začátku Šlapanic si Vám dovolujeme představit výjimečné a na danou lokalitu ojedinělé bydlení. Celý projekt je v nadstandartním provedení.
Představujeme Vám 3.etapu, která je zaměřena na výstavbu viladomů. Každý viladům má 3 bytové jednotky a ateliér Je to ideální místo pro ty, kteří hledají kvalitní, moderní, prostorné a dispozičně chytře řešené bydlení.
V tomto projektu nabízíme k prodeji byt 2+KK se zahradou a terasou.
Součástí prodeje bytu je kuchyňská linka, dělaná na míru. K bytu náleží i sklep a 1 parkovací stání, které je součástí kupní ceny. V celém bytě jsou venkovní žaluzie. Možnost dokoupení dalšího parkovacího stání za 200.000,-Kč

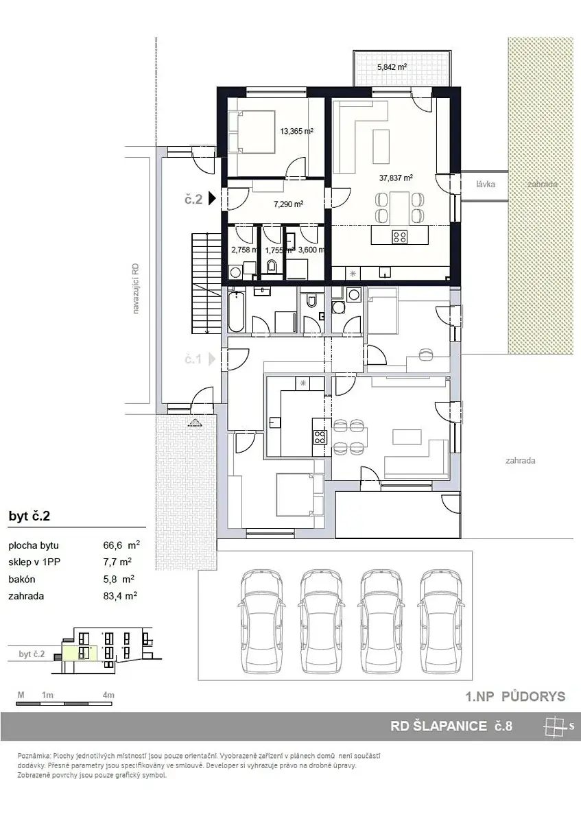
Viladům 8 na ulici Stanislava Hanzelky
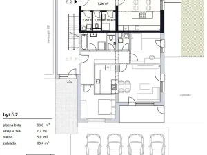
Byt č.2 je umístěn v 1.NP
Dispozice: chodba 7,29m2, obývací pokoj s kuchyňským koutem 37,83m2 s přímým vstupem přes lávku na zahradu 83,4m2 a s balkonem 5,8m2, ložnice 13,36m2, koupelna se sprchovým koutem 3,6m2 a WC zvlášť 1,75m2 a technická místnost 2,75m2.

Standarty bytu, které jsou součástí kupní ceny:
- podlahy vinyl, keramická dlažba
- sanitární technika, sprchový kout, včetně sprchového setu, umyvadlo včetně baterie, vana, závěsné WC, zrcadlo, obklady -mramor
- interiérové dveře + obložkové zárubně, vstupní dveře
- podlahové vytápění, topné těleso
- příprava na klimatizaci

Samotná lokalita nabízí širokou škálu pracovních možností a veškerou potřebnou občanskou vybavenost a výbornou dojezdnost díky dálnici D1 a D2. Také zde v docházkové vzdálenosti nalezneme školu, školku, řadu obchodů, restaurací a služeb, trolejbusovou zastávku, ale především vlakové nádraží, z kterého jste na Hlavním vlakovém nádraží v Brně za 15 min.
Dokončení bytů je plánované na 3Q roku 2026. Výhodou je model financování nemovitosti.
Pokud by Vás nabídka tohoto či jakéhokoliv jiného bytu v tomto projektu zaujala, kontaktujte prosím makléře, u kterého se dozvíte více.
Děláme moderní bydlení dostupnější.

Parametry bytu

Cena
9 993 930 Kč /za nemovitost Spočítat hypotéku
Poznámka k ceně
včetně DPH, včetně poplatků, včetně provize, včetně právního servisu
Aktualizováno
25. 12. 2025
Adresa
Šlapanice
ID
00023
Stavba
Cihlová
Stav objektu
Ve výstavbě
Patro
1. z 2
Vybaveno
Částečně
Lokalita objektu
Okraj obce
Vlastnictví
Osobní
Užitná plocha
67 m2
Podlahová plocha
81 m2
Plocha zahrady
104 m2
Třída energetické náročnosti
G - Mimořádně nehospodárná
Odpad
Veřejná kanalizace
Komunikace
Asfaltová
Telekomunikace
Internet
Doprava
Vlak, Silnice, MHD
Topné těleso
Podlahové vytápění
Balkon
Sklep
Výtah
Parkování

Kontaktovat makléře

Realitní kancelář

LUX Real s.r.o

Moravské náměstí 754/13, Brno

Chystáte se prodat nemovitost?
Pomůžeme Vám!

Máte zájem o tento byt?

Tímto, v souladu s nařízením Evropského parlamentu a Rady (EU) 2016/679, v platném znění, prohlašuji, že mi je alespoň 16 let a uděluji tak svůj souhlas se zpracováním zadaných údajů (jméno, telefon, e-mail, ip adresa) společnosti B3 Technology, s.r.o., IČ: 07330600, se sídlem Novostavby 126/23, 435 11 Lom (správce dat), za účelem předání dotazu z tohoto formuláře Vámi vybranému inzerentovi a zpětného kontaktování mé osoby. Osobní údaje bude správce zpracovávat manuálně i automaticky přímo prostřednictvím svých zaměstnanců. Informace předané tímto formulářem budou uloženy v databázi správce maximálně po dobu 10 let. Odvolání souhlasu s uložením a zpracováním poskytnutých dat lze e-mailem na info@bydlisnami.cz. V případě podezření na neoprávněné použití Vámi poskytnutých údajů máte právo předat podnět k šetření Úřadu pro ochranu osobních údajů. Více informací
Chystáte se prodat nemovitost?
Pomůžeme Vám!

Inzerát si prohlédlo 1 lidí

Prodejce

Jana Krejčí

Jana Krejčí

Hlídací pes

Chcete dostávat emailem podobné nabídky prodeje bytů 2+kk v Šlapanicích (okr. Brno-venkov)?

Podobné nemovitosti