Prodej obchodního prostoru, Hradec Králové, M. D. Rettigové, 181 m2

M. D. Rettigové, Hradec Králové

4 370 000 Kč /za nemovitost HYPOTÉKA od 19 531 Kč /za měsíc

(včetně provize, DPH a právních služeb)

Doporučené firmy v Hradci Králové

Informace k nemovitosti

Dobrý den,

prostřednictvím tohoto inzerátu vám nabízíme ke koupi nebytové prostory v obci a části obce Hradec Králové.

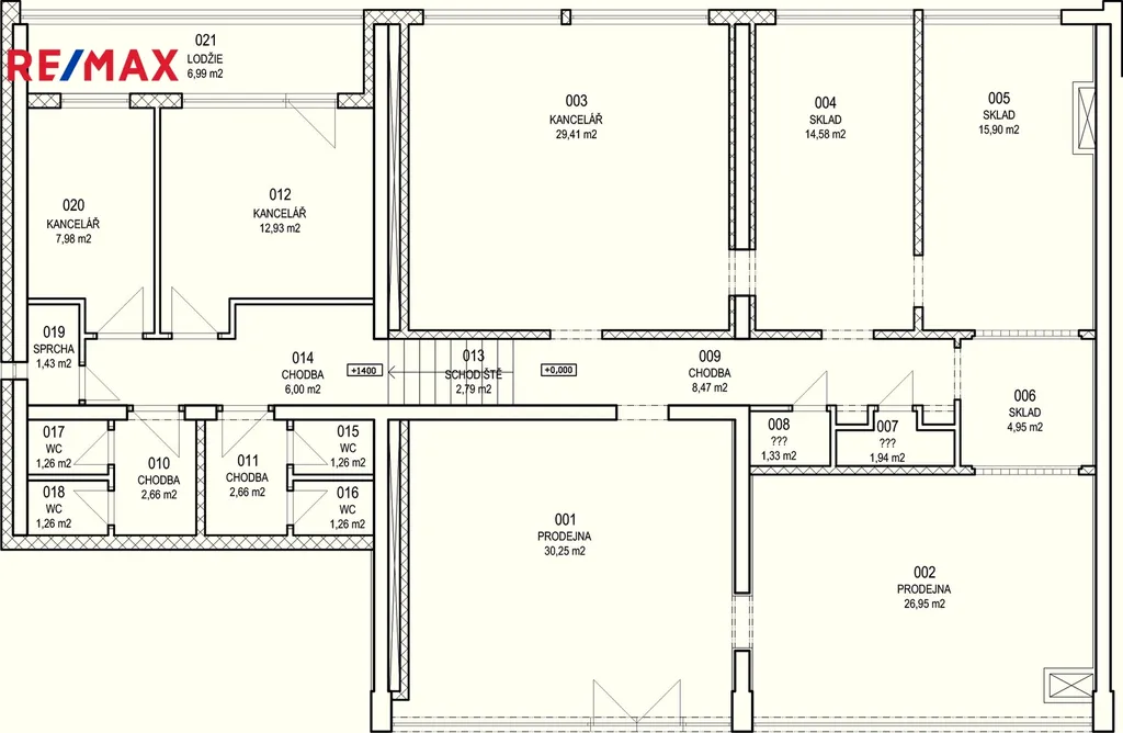
Prostory jsou situovány do 1. NP panelové budovy, a jejich celková podlahová plocha činí 175,3 m2 (bez započítané plochy lodžie, která činí 5,44 m2).

Prostory sestávají z části, která se po vstupu nachází na úrovni chodníku a části vyvýšené, do níž se lze dostat po vnitřním schodišti. V přízemní části se nachází dvě velké místnosti coby obchodní prostory, dále spojovací chodba a tři zadní místnosti, které sloužily jako kancelář a dva sklady; na konci chodby vpravo se dále nachází úklidová komora, WC s umyvadlem a příruční sklad. Vlevo se chodbou po schodišti dostaneme do vyvýšené části, sestávající ze dvou kanceláří s výstupem do prostorné lodžie, sprchového koutu a čtyř WC se dvěma umyvadly; součástí chodby je zde velká vestavěná skříň. Prostory nemají vlastní sklepní kóji.

Prostory byly dosud pronajímány, přičemž se zde vystřídalo několik nájemců. Prostory byly po celou dobu pouze provozně udržovány, a proto bude třeba v nich provést kompletní rekonstrukci. V katastru nemovitostí jsou tyto vedeny jako jiný nebytový prostor. Prodávajícím je bytové družstvo, z čehož je patrno, že zde neexistují žádné dluhy či jakékoli jiné závazky, které by bylo třeba vypořádat.

Sama budova prošla před lety určitou revitalizací, při níž došlo zejména k zateplení, opravě střechy, renovaci lodžií, výměně oken a dveří společných částí a výměně výtahu včetně šachty. Do budoucna se pak plánuje oprava fasády na západní straně budovy (čímž budou dotčeny i tyto prostory).

Prostory se nabízí df. jako vyklizené a nezařízené (pomineme-li součásti s nimi pevně spojené).

IS: dálkové topení; elektřina 230 V, rozvod studené a teplé vody, odpady svedeny do veřejné kanalizace, telefon.

Bude záležet na tom, k čemu budoucí vlastník bude chtít prostory využít. Dle kolaudace by to měla být zejména obchodní činnost (prodej zboží, služby), pokud by se však podařilo prosadit zde přestavbu na bytové jednotky, mohly by zde vzniknout tři až čtyři malé byty, s jejichž následným rentabilním prodejem či pronájmem by jistě problém nebyl.

Prostory se nacházejí v centru města a jsou dobře přístupné z ulice, nevýhodou je však jejich stávající stav včetně nemožnosti zde parkovat vozem, a to jak v ulici, tak ve vnitrobloku budovy (krátkodobé stání za účelem nakládky/vykládky či dopravní obslužnosti se nicméně toleruje).

Ihned k dispozici.

Finanční prostředky lze zajistit prostřednictvím smluvního partnera RX Finance.

Více informací u makléře.

Parametry nemovitosti

Cena
4 370 000 Kč /za nemovitost Spočítat hypotéku
Poznámka k ceně
včetně provize, DPH a právních služeb
Aktualizováno
28. 12. 2025
Adresa
M. D. Rettigové, Hradec Králové
ID
211-NP04541
Stavba
Panelová
Stav objektu
Dobrý
Patro
1. z 8
Vybaveno
Ne
Typ objektu
Patrový
Lokalita objektu
Rušná část obce
Užitná plocha
181 m2
Zastavěná plocha
399 m2
Třída energetické náročnosti
D - Méně úsporná
Elektřina
230V
Odpad
Veřejná kanalizace
Komunikace
Asfaltová
Telekomunikace
Telefon
Doprava
Vlak, Dálnice, Silnice, MHD, Autobus
Voda
Vodovod
Výtah
Převod do OV

Kontaktovat makléře

Realitní kancelář

Logo RE/MAX Future

RE/MAX Future

U Koruny 1742/16, Hradec Králové

Chystáte se prodat nemovitost?
Pomůžeme Vám!

Máte zájem o tuto nemovistost?

Tímto, v souladu s nařízením Evropského parlamentu a Rady (EU) 2016/679, v platném znění, prohlašuji, že mi je alespoň 16 let a uděluji tak svůj souhlas se zpracováním zadaných údajů (jméno, telefon, e-mail, ip adresa) společnosti B3 Technology, s.r.o., IČ: 07330600, se sídlem Novostavby 126/23, 435 11 Lom (správce dat), za účelem předání dotazu z tohoto formuláře Vámi vybranému inzerentovi a zpětného kontaktování mé osoby. Osobní údaje bude správce zpracovávat manuálně i automaticky přímo prostřednictvím svých zaměstnanců. Informace předané tímto formulářem budou uloženy v databázi správce maximálně po dobu 10 let. Odvolání souhlasu s uložením a zpracováním poskytnutých dat lze e-mailem na info@bydlisnami.cz. V případě podezření na neoprávněné použití Vámi poskytnutých údajů máte právo předat podnět k šetření Úřadu pro ochranu osobních údajů. Více informací
Chystáte se prodat nemovitost?
Pomůžeme Vám!

Inzerát si prohlédlo 0 lidí

Prodejce

Slavomír Roll

Slavomír Roll

Hlídací pes

Chcete dostávat emailem podobné nabídky prodeje obchodních prostor v Hradci Králové?

Podobné nemovitosti