Prodej rodinného domu, Kladno, Otmara Zinkeho, 106 m2 (ID: 2507563)

Otmara Zinkeho, Kladno

12 490 000 Kč /za nemovitost HYPOTÉKA od 55 823 Kč /za měsíc
Doporučené firmy v Kladně

Informace k domu

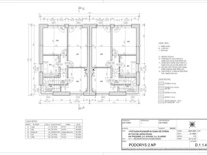
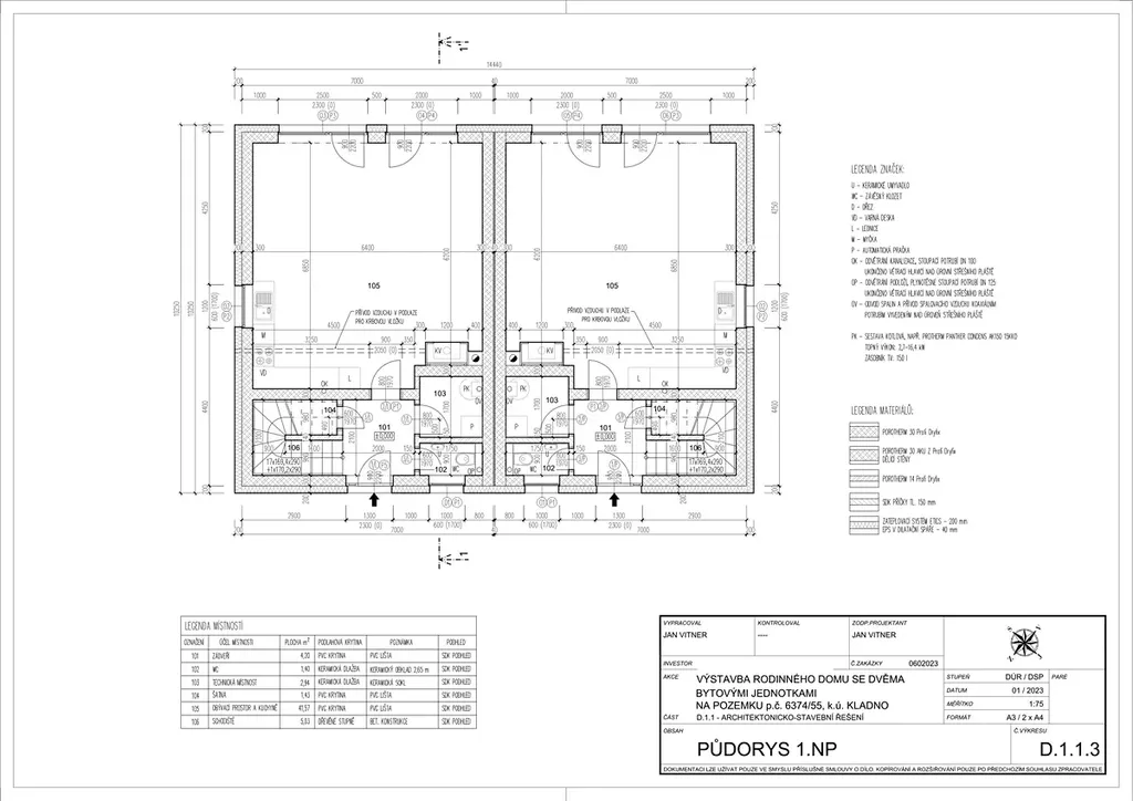
Nabízím k prodeji polovinu dvojdomu, vedenou jako bytová jednotka č. 1 v rodinném domě o dvou bytových jednotkách.

Jednotka disponuje podlahovou plochou 106 m2. V 1 NP se nachází velký obývací pokoj s kuchyňským koutem o výměře 41 m2, vstupní hala, technická místnost, toaleta s umyvadlem a šatna pod schodištěm. Kuchyně s vestavěnými spotřebiči zn. Candy je součástí prodeje. Obývací pokoj je prosvětlen velkými francouzskými okny a v jeho rohu je připravený komín na instalaci krbových kamen. V technické místnosti je umístěn centrální kotel a připravený přívod vody a odpad pro pračku se sušičkou.

Ve druhém nadzemním podlaží se nachází tři ložnice o výměrách 10,3 m2, 13,5 m2 a 15,5 m2 a prostorná koupelna v moderním stylu se sprchovým koutem i vanou. Podkroví disponuje dostatkem prostoru pro uložení všech sezonních věcí.

Stavebně technické parametry stavby:

stavba provedena z betonových tvárnic Neico a zateplena polystyrenem o tloušťce 20 cm, okna sedmikomorová s trojskly, podlahové topení v celém domě, plynový kondenzační kotel Bosch, alarm Jablotron + kamerový systém, klimatizace Fujitsu v obývacím pokoji.

Stavba provedena v energetické třídě B.

K jednotce č. 1 náleží společné užívání parkovací plochy před domem o výměře 135 m2 (plocha A v plánku) s druhou jednotkou a výhradní užívání zahrady o výměře 96 m2 (plocha B v plánku).

Lokalita patří v nejžádanějším v rámci města Kladna pro svou unikátní polohu v sousedství lesů, klidný rezidenční ráz, veškerou občanskou vybavenost v dosahu a perfektní spojení do Prahy ať už autem po D6 nebo vlakem či autobusem.

Více informací Vám ráda poskytnu kdykoliv telefonicky nebo přímo osobně na prohlídce.

Parametry domu

Cena
12 490 000 Kč /za nemovitost Spočítat hypotéku
Aktualizováno
28. 12. 2025
Adresa
Otmara Zinkeho, Kladno
Stavba
Cihlová
Stav objektu
Novostavba
Lokalita objektu
Klidná část obce
Užitná plocha
106 m2
Plocha pozemku
237 m2
Třída energetické náročnosti
B - Velmi úsporná
Ukazatel energetické náročnosti
76 kWh/m2 za rok
Elektřina
230V
Plyn
Plynovod
Odpad
Veřejná kanalizace
Komunikace
Asfaltová
Doprava
Vlak, Dálnice, Silnice, MHD, Autobus
Voda
Vodovod
Topné těleso
Podlahové vytápění
Zdroj topení
Plynový kondenzační kotel
Parkování

Kontaktovat makléře

Máte zájem o tento dům?

Tímto, v souladu s nařízením Evropského parlamentu a Rady (EU) 2016/679, v platném znění, prohlašuji, že mi je alespoň 16 let a uděluji tak svůj souhlas se zpracováním zadaných údajů (jméno, telefon, e-mail, ip adresa) společnosti B3 Technology, s.r.o., IČ: 07330600, se sídlem Novostavby 126/23, 435 11 Lom (správce dat), za účelem předání dotazu z tohoto formuláře Vámi vybranému inzerentovi a zpětného kontaktování mé osoby. Osobní údaje bude správce zpracovávat manuálně i automaticky přímo prostřednictvím svých zaměstnanců. Informace předané tímto formulářem budou uloženy v databázi správce maximálně po dobu 10 let. Odvolání souhlasu s uložením a zpracováním poskytnutých dat lze e-mailem na info@bydlisnami.cz. V případě podezření na neoprávněné použití Vámi poskytnutých údajů máte právo předat podnět k šetření Úřadu pro ochranu osobních údajů. Více informací
Chystáte se prodat nemovitost?
Pomůžeme Vám!

Inzerát si prohlédlo 6 lidí

Prodejce

Andrea Hlinková

Andrea Hlinková

Hlídací pes

Chcete dostávat emailem podobné nabídky prodeje rodinných domů v Kladně?

Podobné nemovitosti