Pronájem bytu 3+1, Hradec Králové, Ulrichovo náměstí, 101 m2

Ulrichovo náměstí, Hradec Králové

19 800 Kč /za měsíc Získejte výhodnou HYPOTÉKU
Doporučené firmy v Hradci Králové

Informace k bytu

Pronájem bytu 3+1 po rekonstrukci v Hradci Králové

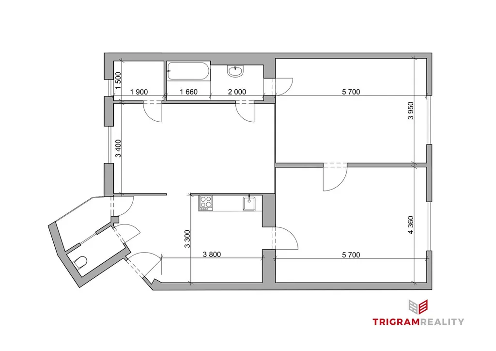
Zprostředkujeme dlouhodobý pronájem nově zrekonstruovaného bytu 3+1 o výměře cca 101 m², který se nachází ve 3. nadzemním podlaží cihlového domu bez výtahu na adrese Ulrichovo náměstí 735 v Hradci Králové.

Byt prošel kompletní rekonstrukcí a nabízí praktické a světlé dispoziční řešení. Po vstupu do bytu vás přivítá prostorná obytná místnost s kuchyňským koutem, která poskytuje dostatek místa pro jídelní stůl i další úložný nábytek. Z této místnosti je přístup na balkon, toaletu a do dalších pokojů.

Moderní kuchyňská linka je vybavena elektrickou troubou, varnou deskou, digestoří, myčkou a dřezem. Z kuchyně i ložnice je příjemný výhled do klidného vnitrobloku. Koupelna disponuje vanou a umyvadlem se skříňkou. Plynový kotel zajišťuje ohřev vody, vytápění je dálkové.

Velkou výhodou je výborná lokalita s veškerou občanskou vybaveností v docházkové vzdálenosti – obchody, restaurace, lékárny, banky, obchodní centrum Atrium, mateřská i základní škola. Zastávka MHD se nachází přímo před domem.

Nájemné: 19.800,- Kč / měsíc
Zálohy: 6.450,- (vodné, stočné, dálkové topení, elektřina společných prostor, správa, úklid). Elektřina se přepisuje na nájemce.
Kauce: 27.000,- Kč
Provize RK: 1měsíční nájem

Byt je vhodný pro rodinu, bez domácích mazlíčků, volný od 5.1. 2026.

Rád Vám byt osobně představím, neváhejte mě kontaktovat.

Parametry bytu

Cena
19 800 Kč /za měsíc
Aktualizováno
2. 1. 2026
Adresa
Ulrichovo náměstí, Hradec Králové
ID
N680
Stavba
Cihlová
Vlastnictví
Osobní
Užitná plocha
101 m2
Třída energetické náročnosti
G - Mimořádně nehospodárná

Kontaktovat makléře

Realitní kancelář

Trigramreality s.r.o.

Milady Horákové 1738/7, Hradec Králové

Chystáte se prodat nemovitost?
Pomůžeme Vám!

Máte zájem o tento byt?

Tímto, v souladu s nařízením Evropského parlamentu a Rady (EU) 2016/679, v platném znění, prohlašuji, že mi je alespoň 16 let a uděluji tak svůj souhlas se zpracováním zadaných údajů (jméno, telefon, e-mail, ip adresa) společnosti B3 Technology, s.r.o., IČ: 07330600, se sídlem Novostavby 126/23, 435 11 Lom (správce dat), za účelem předání dotazu z tohoto formuláře Vámi vybranému inzerentovi a zpětného kontaktování mé osoby. Osobní údaje bude správce zpracovávat manuálně i automaticky přímo prostřednictvím svých zaměstnanců. Informace předané tímto formulářem budou uloženy v databázi správce maximálně po dobu 10 let. Odvolání souhlasu s uložením a zpracováním poskytnutých dat lze e-mailem na info@bydlisnami.cz. V případě podezření na neoprávněné použití Vámi poskytnutých údajů máte právo předat podnět k šetření Úřadu pro ochranu osobních údajů. Více informací
Chystáte se prodat nemovitost?
Pomůžeme Vám!

Inzerát si prohlédlo 0 lidí

Prodejce

Bc. Jiří Hruška

Bc. Jiří Hruška

Hlídací pes

Chcete dostávat emailem podobné nabídky pronájmu bytů 3+1 v Hradci Králové?

Podobné nemovitosti