Prodej rodinného domu, Kuřim, Metelkova, 105 m2

Metelkova, Kuřim

14 490 000 Kč /za nemovitost HYPOTÉKA od 64 762 Kč /za měsíc
Doporučené firmy v Kuřimi

Informace k domu

Nabízíme k prodeji příjemný rodinný dům v oblíbené lokalitě města Kuřim, který je ideálním místem pro rodinný život v blízkosti přírody, a přitom s výbornou dostupností do Brna.

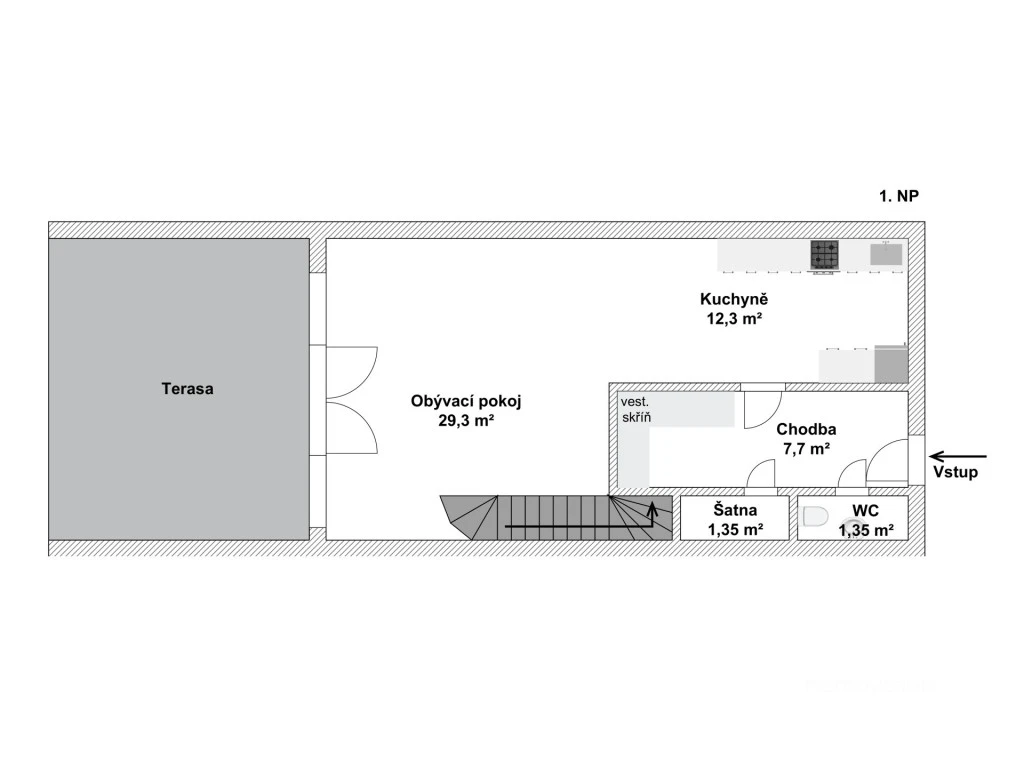
Dům o dispozici 4+kk byl zkolaudován v roce 2002 a prošel řadou modernizací. V přízemí najdete prostorný obývací pokoj propojený s kuchyňským koutem, šatnu a samostatnou toaletu. V patře se nachází tři ložnice, které poskytují dostatek prostoru a soukromí všem členům domácnosti. Celková užitná plocha domu činí 105 m² a každý detail zde byl navržen s ohledem na pohodlí a funkčnost.

Dům je pečlivě udržovaný a připravený k okamžitému nastěhování. V roce 2019 byla kompletně vyměněna okna za nová s trojskly, zateplení, fasáda a položena nová střešní krytina. O další komfort se postará nový plynový kondenzační kotel a moderní kuchyňská linka, obojí z roku 2023.

Součástí domu je příjemná terasa se zahradou, která poskytuje prostor pro relaxaci, dětské hry nebo letní grilování. Pozemek má celkovou výměru 252 m² a před domem se nachází praktické parkování na vlastním pozemku pod krytým přístřeškem.

Kuřim nabízí vynikající občanskou vybavenost – najdete zde školy, školky, obchody, zdravotnická zařízení, sportoviště i kulturní vyžití. Díky vlakovému spojení, autobusům i rychlému dojezdu autem je spojení do Brna naprosto bezproblémové.

Tento dům není jen nemovitost. Je to místo, kde budete tvořit nové vzpomínky, kam se budete rádi vracet a kde najdete opravdový domov.

Ráda Vás provedu osobně, ukážu všechny přednosti tohoto domu a zodpovím Vaše dotazy.
Neváhejte mě kontaktovat — možná právě tady začíná Váš nový příběh.

Parametry domu

Cena
14 490 000 Kč /za nemovitost Spočítat hypotéku
Aktualizováno
4. 1. 2026
Adresa
Metelkova, Kuřim
ID
132
Stavba
Cihlová
Stav objektu
Velmi dobrý
Vybaveno
Částečně
Typ objektu
Přízemní
Druh objektu
Řadový
Lokalita objektu
Klidná část obce
Užitná plocha
105 m2
Plocha pozemku
252 m2
Plyn
Plynovod
Odpad
Veřejná kanalizace
Topení
Ústřední plynové
Komunikace
Asfaltová
Voda
Vodovod
Topné těleso
Radiátory
Zdroj topení
Plynový kondenzační kotel
Zdroj teplé vody
Plynový kondenzační kotel

Kontaktovat makléře

Máte zájem o tento dům?

Tímto, v souladu s nařízením Evropského parlamentu a Rady (EU) 2016/679, v platném znění, prohlašuji, že mi je alespoň 16 let a uděluji tak svůj souhlas se zpracováním zadaných údajů (jméno, telefon, e-mail, ip adresa) společnosti B3 Technology, s.r.o., IČ: 07330600, se sídlem Novostavby 126/23, 435 11 Lom (správce dat), za účelem předání dotazu z tohoto formuláře Vámi vybranému inzerentovi a zpětného kontaktování mé osoby. Osobní údaje bude správce zpracovávat manuálně i automaticky přímo prostřednictvím svých zaměstnanců. Informace předané tímto formulářem budou uloženy v databázi správce maximálně po dobu 10 let. Odvolání souhlasu s uložením a zpracováním poskytnutých dat lze e-mailem na info@bydlisnami.cz. V případě podezření na neoprávněné použití Vámi poskytnutých údajů máte právo předat podnět k šetření Úřadu pro ochranu osobních údajů. Více informací
Chystáte se prodat nemovitost?
Pomůžeme Vám!

Inzerát si prohlédlo 6 lidí

Prodejce

Pavla Šimková

Pavla Šimková

Hlídací pes

Chcete dostávat emailem podobné nabídky prodeje rodinných domů v Kuřimi?

Podobné nemovitosti